This feature is unavailable at the moment.
We apologize, but the feature you are trying to access is currently unavailable. We are aware of this issue and our team is working hard to resolve the matter.
Please check back in a few minutes. We apologize for the inconvenience.
- LoopNet Team
1937 N Damen Ave
Chicago, IL 60647
Bucktown Retail Space For Sale · Retail Property For Sale

EXECUTIVE SUMMARY
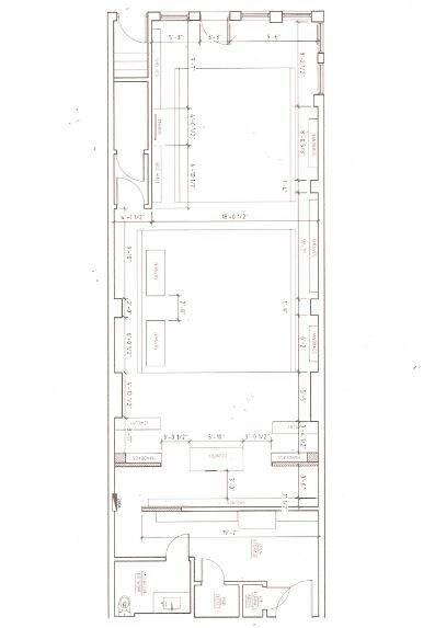
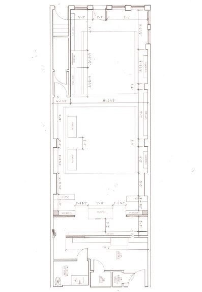
SVN Chicago Commercial is pleased to offer 1937 N. Damen FOR SALE. The Subject is a 1,483 SF Retail Storefront in the premier stretch of Damen Avenue in Bucktown. It features high ceilings, an open layout with abundant natural light, cove and LED track lighting, storage, and 1 ADA bathroom. Built in 2006, the building is of high quality and now includes a unique and impressive storefront made of Ipe. The subject is surrounded by restaurants, shopping, and nightlife in one of Chicago's most desired neighborhoods. Fixtures could also be included. Call broker for additional details. Bucktown, Chicago, IL
PROPERTY FACTS
| Property Type | Retail | No. Stories | 4 |
| Property Subtype | Storefront Retail/Office | Year Built | 2006 |
| Building Class | B | Tenancy | Single |
| Lot Size | 0.07 AC | APN / Parcel ID | 14-31-400-055-0000 |
| Gross Leasable Area | 6,800 SF | ||
| Zoning | B3-2, Chicago | ||
| Property Type | Retail |
| Property Subtype | Storefront Retail/Office |
| Building Class | B |
| Lot Size | 0.07 AC |
| Gross Leasable Area | 6,800 SF |
| No. Stories | 4 |
| Year Built | 2006 |
| Tenancy | Single |
| APN / Parcel ID | 14-31-400-055-0000 |
| Zoning | B3-2, Chicago |
Listing ID: 9071543
Date on Market: 9/7/2017
Last Updated:
Address: 1937 N Damen Ave, Chicago, IL 60647
The Bucktown Retail Property at 1937 N Damen Ave, Chicago, IL 60647 is no longer being advertised on LoopNet.com. Contact the broker for information on availability.
RETAIL PROPERTIES IN NEARBY NEIGHBORHOODS
- North Lakefront Mixed Use Properties
- Northwest Chicago Mixed Use Properties
- Downtown Chicago Mixed Use Properties
- Far North Chicago Mixed Use Properties
- Southwest Chicago Mixed Use Properties
- West Garfield Park Mixed Use Properties
- Lakeview Mixed Use Properties
- Uptown Chicago Mixed Use Properties
- Belmont Heights Mixed Use Properties
- Austin Mixed Use Properties
- Jefferson Park Mixed Use Properties
- Fulton Market Mixed Use Properties
- River North Mixed Use Properties
- DePaul Mixed Use Properties
- Lincoln Park Mixed Use Properties
NEARBY LISTINGS
- 2136-2142 W Division St, Chicago IL
- 4841 N Western Ave, Chicago IL
- 824 W Superior St, Chicago IL
- 4611-4613 N Clark St, Chicago IL
- 1659 W Chicago Ave, Chicago IL
- 3721 N Broadway, Chicago IL
- 3000 W Diversey Ave, Chicago IL
- 435 W Erie St, Chicago IL
- 4125-4129 W Lawrence Ave, Chicago IL
- 3963 W Belmont Ave, Chicago IL
- 4133-4135 W Lawrence Ave, Chicago IL
- 2900 N Sheffield Ave, Chicago IL
- 932-940 W Madison St, Chicago IL
- 1532 W Fullerton Ave, Chicago IL
- 5-9 W Division St, Chicago IL
