Enter your email to login or create a free account
This feature is unavailable at the moment.
We apologize, but the feature you are trying to access is currently unavailable. We are aware of this issue and our team is working hard to resolve the matter.
Please check back in a few minutes. We apologize for the inconvenience.
- LoopNet Team
0000 N Atlantic Ave
Daytona Beach, FL 32118
Commercial Lot on A1A in Daytona Beach · Land For Sale
·
0.70 AC

Investment Highlights
- Proximity to the World's Most Famous Beach (Daytona Beach)
Property Facts
| Property Type | Land | Proposed Use | Commercial |
| Property Subtype | Commercial | Total Lot Size | 0.70 AC |
| Zoning | T-1 - See attached descriptions for T-1 Zoning (Tourist Accommodations) | ||
| Property Type | Land |
| Property Subtype | Commercial |
| Proposed Use | Commercial |
| Total Lot Size | 0.70 AC |
| Zoning | T-1 - See attached descriptions for T-1 Zoning (Tourist Accommodations) |
Description
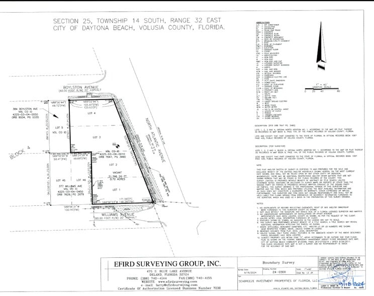
This parcel will surprise you with its versatility. As you read the T-1 zoning description (attached) you will see that this parcel could be developed in many ways (parking lot, hotel, restaurant, townhomes, residence, condos, office, gas station, attraction, school, pet-related) the choices are endless. .71 acres. There is a beach ramp at Williams Avenue, which is at the south end of this lot. The north end is bordered by Boylston Ave.
Property Taxes
| Parcel Number | 4225-03-04-0010 | Improvements Assessment | $0 |
| Land Assessment | $299,237 | Total Assessment | $299,237 |
Property Taxes
Listing ID: 33858459
Date on Market: 11/13/2024
Last Updated:
Address: 0000 N Atlantic Ave, Daytona Beach, FL 32118
The Daytona Beach Shores Land Property at 0000 N Atlantic Ave, Daytona Beach, FL 32118 is no longer being advertised on LoopNet.com. Contact the broker for information on availability.
LAND PROPERTIES IN NEARBY NEIGHBORHOODS
NEARBY LISTINGS
- Center Avenue, Holly Hill FL
- 720 W Granada Blvd, Ormond Beach FL
- Atlantic, Daytona Beach FL
- 327 Ridgewood Ave, Holly Hill FL
- 11 N Hollywood Ave, Daytona Beach FL
- 930-932 15th St, Holly Hill FL
- 745 S Nova Rd, Ormond Beach FL
- NWC Wilder Blvd & Beach St, Daytona Beach FL
- 475 3rd St, Holly Hill FL
- 945 6th St, Daytona Beach FL
- Brentwood, Daytona Beach FL
- 440 S Caroline St, Daytona Beach FL
- 670 S Yonge St, Ormond Beach FL
- 316 N Clyde Morris Blvd, Daytona Beach FL
- 124 Kingston Ave, Daytona Beach FL
