Log In/Sign Up
Your email has been sent.
1 Hines Rd 2,538 - 28,617 SF of Office Space Available in Ottawa, ON K2K 3C7



Highlights
- Surrounded by the Monk Environmental Park providing access to walking and biking trails
- Access to public transit lines
- Ample onsite parking
All Available Spaces(5)
Display Rental Rate as
- Space
- Size
- Term
- Rental Rate
- Space Use
- Build-Out
- Available
Contiguous with suite 105.
- Lease rate does not include utilities, property expenses or building services
- Mostly Open Floor Plan Layout
- Ample onsite parking
- Secure access and video surveillance
- Partially Built-Out as Standard Office
- Fits 31 - 98 People
- New building automation system
- Lease rate does not include utilities, property expenses or building services
- Mostly Open Floor Plan Layout
- Can be combined with additional space(s) for up to 11,093 SF of adjacent space
- Open area concept with excellent natural light
- Ample onsite parking
- Partially Built-Out as Standard Office
- Fits 7 - 21 People
- Natural Light
- New building automation system
- Lease rate does not include utilities, property expenses or building services
- Mostly Open Floor Plan Layout
- Can be combined with additional space(s) for up to 11,093 SF of adjacent space
- Open area concept with excellent natural light
- Ample onsite parking
- Partially Built-Out as Standard Office
- Fits 7 - 21 People
- Natural Light
- New building automation system
- Lease rate does not include utilities, property expenses or building services
- Mostly Open Floor Plan Layout
- Can be combined with additional space(s) for up to 11,093 SF of adjacent space
- Open area concept with excellent natural light
- Ample onsite parking
- Partially Built-Out as Standard Office
- Fits 16 - 49 People
- Natural Light
- New building automation system
- Lease rate does not include utilities, property expenses or building services
- Mostly Open Floor Plan Layout
- Natural Light
- New building automation system
- Partially Built-Out as Standard Office
- Fits 14 - 43 People
- Open area concept with excellent natural light
- Ample onsite parking
| Space | Size | Term | Rental Rate | Space Use | Build-Out | Available |
| 1st Floor, Ste 102 | 12,212 SF | 1-10 Years | $11.78 USD/SF/YR $0.98 USD/SF/MO $143,801 USD/YR $11,983 USD/MO | Office | Partial Build-Out | Now |
| 2nd Floor, Ste 203 | 2,538 SF | 1-10 Years | $11.78 USD/SF/YR $0.98 USD/SF/MO $29,886 USD/YR $2,490 USD/MO | Office | Partial Build-Out | Now |
| 2nd Floor, Ste 204 | 2,540 SF | 1-10 Years | $11.78 USD/SF/YR $0.98 USD/SF/MO $29,909 USD/YR $2,492 USD/MO | Office | Partial Build-Out | Now |
| 2nd Floor, Ste 205 | 6,015 SF | 1-10 Years | $11.78 USD/SF/YR $0.98 USD/SF/MO $70,829 USD/YR $5,902 USD/MO | Office | Partial Build-Out | Now |
| 3rd Floor, Ste 320 | 5,312 SF | 1-10 Years | $11.78 USD/SF/YR $0.98 USD/SF/MO $62,551 USD/YR $5,213 USD/MO | Office | Partial Build-Out | Now |
1st Floor, Ste 102
| Size |
| 12,212 SF |
| Term |
| 1-10 Years |
| Rental Rate |
| $11.78 USD/SF/YR $0.98 USD/SF/MO $143,801 USD/YR $11,983 USD/MO |
| Space Use |
| Office |
| Build-Out |
| Partial Build-Out |
| Available |
| Now |
2nd Floor, Ste 203
| Size |
| 2,538 SF |
| Term |
| 1-10 Years |
| Rental Rate |
| $11.78 USD/SF/YR $0.98 USD/SF/MO $29,886 USD/YR $2,490 USD/MO |
| Space Use |
| Office |
| Build-Out |
| Partial Build-Out |
| Available |
| Now |
2nd Floor, Ste 204
| Size |
| 2,540 SF |
| Term |
| 1-10 Years |
| Rental Rate |
| $11.78 USD/SF/YR $0.98 USD/SF/MO $29,909 USD/YR $2,492 USD/MO |
| Space Use |
| Office |
| Build-Out |
| Partial Build-Out |
| Available |
| Now |
2nd Floor, Ste 205
| Size |
| 6,015 SF |
| Term |
| 1-10 Years |
| Rental Rate |
| $11.78 USD/SF/YR $0.98 USD/SF/MO $70,829 USD/YR $5,902 USD/MO |
| Space Use |
| Office |
| Build-Out |
| Partial Build-Out |
| Available |
| Now |
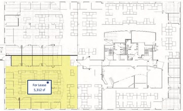
3rd Floor, Ste 320
| Size |
| 5,312 SF |
| Term |
| 1-10 Years |
| Rental Rate |
| $11.78 USD/SF/YR $0.98 USD/SF/MO $62,551 USD/YR $5,213 USD/MO |
| Space Use |
| Office |
| Build-Out |
| Partial Build-Out |
| Available |
| Now |
1 of 1
Videos
Matterport 3D Exterior
Matterport 3D Tour
Photos
Street View
Street
Map
1st Floor, Ste 102
| Size | 12,212 SF |
| Term | 1-10 Years |
| Rental Rate | $11.78 USD/SF/YR |
| Space Use | Office |
| Build-Out | Partial Build-Out |
| Available | Now |
Contiguous with suite 105.
- Lease rate does not include utilities, property expenses or building services
- Partially Built-Out as Standard Office
- Mostly Open Floor Plan Layout
- Fits 31 - 98 People
- Ample onsite parking
- New building automation system
- Secure access and video surveillance
1 of 1
Videos
Matterport 3D Exterior
Matterport 3D Tour
Photos
Street View
Street
Map
2nd Floor, Ste 203
| Size | 2,538 SF |
| Term | 1-10 Years |
| Rental Rate | $11.78 USD/SF/YR |
| Space Use | Office |
| Build-Out | Partial Build-Out |
| Available | Now |
- Lease rate does not include utilities, property expenses or building services
- Partially Built-Out as Standard Office
- Mostly Open Floor Plan Layout
- Fits 7 - 21 People
- Can be combined with additional space(s) for up to 11,093 SF of adjacent space
- Natural Light
- Open area concept with excellent natural light
- New building automation system
- Ample onsite parking
1 of 1
Videos
Matterport 3D Exterior
Matterport 3D Tour
Photos
Street View
Street
Map
2nd Floor, Ste 204
| Size | 2,540 SF |
| Term | 1-10 Years |
| Rental Rate | $11.78 USD/SF/YR |
| Space Use | Office |
| Build-Out | Partial Build-Out |
| Available | Now |
- Lease rate does not include utilities, property expenses or building services
- Partially Built-Out as Standard Office
- Mostly Open Floor Plan Layout
- Fits 7 - 21 People
- Can be combined with additional space(s) for up to 11,093 SF of adjacent space
- Natural Light
- Open area concept with excellent natural light
- New building automation system
- Ample onsite parking
1 of 1
Videos
Matterport 3D Exterior
Matterport 3D Tour
Photos
Street View
Street
Map
2nd Floor, Ste 205
| Size | 6,015 SF |
| Term | 1-10 Years |
| Rental Rate | $11.78 USD/SF/YR |
| Space Use | Office |
| Build-Out | Partial Build-Out |
| Available | Now |
- Lease rate does not include utilities, property expenses or building services
- Partially Built-Out as Standard Office
- Mostly Open Floor Plan Layout
- Fits 16 - 49 People
- Can be combined with additional space(s) for up to 11,093 SF of adjacent space
- Natural Light
- Open area concept with excellent natural light
- New building automation system
- Ample onsite parking
1 of 1
Videos
Matterport 3D Exterior
Matterport 3D Tour
Photos
Street View
Street
Map
3rd Floor, Ste 320
| Size | 5,312 SF |
| Term | 1-10 Years |
| Rental Rate | $11.78 USD/SF/YR |
| Space Use | Office |
| Build-Out | Partial Build-Out |
| Available | Now |
- Lease rate does not include utilities, property expenses or building services
- Partially Built-Out as Standard Office
- Mostly Open Floor Plan Layout
- Fits 14 - 43 People
- Natural Light
- Open area concept with excellent natural light
- New building automation system
- Ample onsite parking
Property Overview
Kanata North, 3 storey prestigious office building located on a 5 acre site surrounded by the Monk Environmental Park providing access to walking and biking trails with ample onsite parking and access to public transit (routes 60, 93 and 182).
- Bus Line
- Signage
- Wheelchair Accessible
- Accent Lighting
- Open-Plan
- Monument Signage
- Outdoor Seating
- Smoke Detector
Property Facts
Building Type
Office
Year Built
2000
Building Height
3 Stories
Building Size
68,533 SF
Building Class
B
Typical Floor Size
22,851 SF
Unfinished Ceiling Height
11’
Parking
225 Surface Parking Spaces
Somewhat walkable
30/100
Exceptionally drivable
90/100
Limited public transit
30/100
Moderately bikeable
60/100
1 of 7
Videos
Matterport 3D Exterior
Matterport 3D Tour
Photos
Street View
Street
Map
Presented by
1 Hines Rd
Already a member? Log In
Hmm, there seems to have been an error sending your message. Please try again.
Thanks! Your message was sent.











