Your email has been sent.
10 Crown Pl 6,592 - 14,166 SF of 4-Star Office Space Available in London EC2A 4FT



Sublease Highlights
- Auditorium
- 24-hour access and security
- On site cafe
All Available Spaces(2)
Display Rental Rate as
- Space
- Size
- Term
- Rental Rate
- Space Use
- Build-Out
- Available
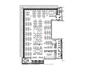
10 Crown Place provides office accommodation arranged over the lower ground, ground and six upper floors. The available accommodation is on the 4th and 5th floors, offering high quality fitted offices. The building also benefits from a ground floor meeting suite including an auditorium, and an on site café.
- Use Class: E
- Fully Built-Out as Standard Office
- Fits 17 - 53 People
- 16 Conference Rooms
- Space is in Excellent Condition
- Central Air Conditioning
- Drop Ceilings
- Metal tile suspended ceilings
- Sublease space available from current tenant
- Mostly Open Floor Plan Layout
- 2 Private Offices
- 108 Workstations
- Can be combined with additional space(s) for up to 14,166 SF of adjacent space
- Raised Floor
- Air conditioning
- LED lighting
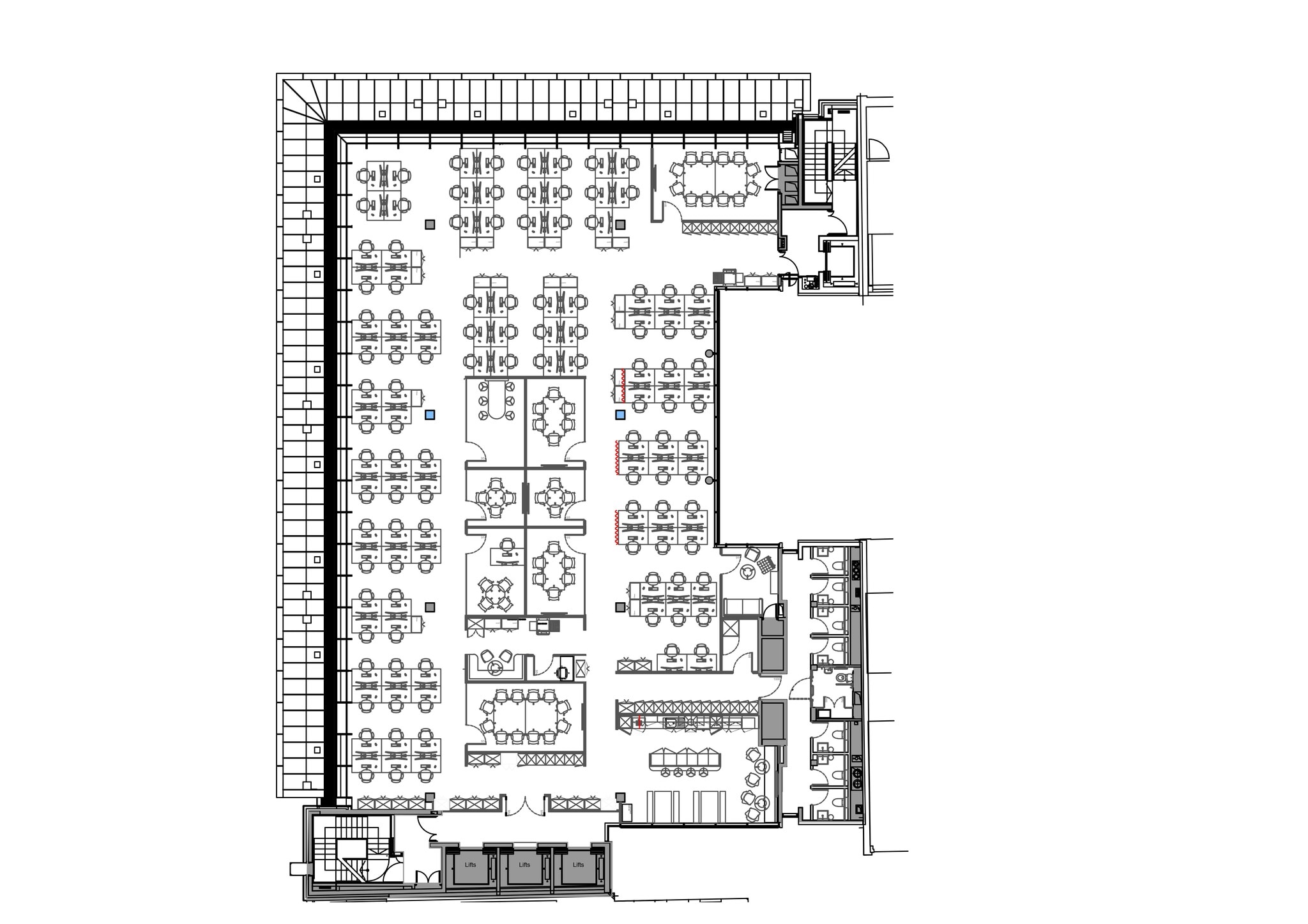
10 Crown Place provides office accommodation arranged over the lower ground, ground and six upper floors. The available accommodation is on the 4th and 5th floors, offering high quality fitted offices. The building also benefits from a ground floor meeting suite including an auditorium, and an on site café.
- Use Class: E
- Fully Built-Out as Standard Office
- Fits 19 - 61 People
- 16 Conference Rooms
- Space is in Excellent Condition
- Central Air Conditioning
- Drop Ceilings
- Metal tile suspended ceilings
- Sublease space available from current tenant
- Mostly Open Floor Plan Layout
- 2 Private Offices
- 108 Workstations
- Can be combined with additional space(s) for up to 14,166 SF of adjacent space
- Raised Floor
- Air conditioning
- LED lighting
| Space | Size | Term | Rental Rate | Space Use | Build-Out | Available |
| 4th Floor | 6,592 SF | Aug 2030 | Upon Request Upon Request Upon Request Upon Request | Office | Full Build-Out | Now |
| 5th Floor | 7,574 SF | Aug 2030 | Upon Request Upon Request Upon Request Upon Request | Office | Full Build-Out | Pending |
4th Floor
| Size |
| 6,592 SF |
| Term |
| Aug 2030 |
| Rental Rate |
| Upon Request Upon Request Upon Request Upon Request |
| Space Use |
| Office |
| Build-Out |
| Full Build-Out |
| Available |
| Now |
5th Floor
| Size |
| 7,574 SF |
| Term |
| Aug 2030 |
| Rental Rate |
| Upon Request Upon Request Upon Request Upon Request |
| Space Use |
| Office |
| Build-Out |
| Full Build-Out |
| Available |
| Pending |
4th Floor
| Size | 6,592 SF |
| Term | Aug 2030 |
| Rental Rate | Upon Request |
| Space Use | Office |
| Build-Out | Full Build-Out |
| Available | Now |
10 Crown Place provides office accommodation arranged over the lower ground, ground and six upper floors. The available accommodation is on the 4th and 5th floors, offering high quality fitted offices. The building also benefits from a ground floor meeting suite including an auditorium, and an on site café.
- Use Class: E
- Sublease space available from current tenant
- Fully Built-Out as Standard Office
- Mostly Open Floor Plan Layout
- Fits 17 - 53 People
- 2 Private Offices
- 16 Conference Rooms
- 108 Workstations
- Space is in Excellent Condition
- Can be combined with additional space(s) for up to 14,166 SF of adjacent space
- Central Air Conditioning
- Raised Floor
- Drop Ceilings
- Air conditioning
- Metal tile suspended ceilings
- LED lighting
5th Floor
| Size | 7,574 SF |
| Term | Aug 2030 |
| Rental Rate | Upon Request |
| Space Use | Office |
| Build-Out | Full Build-Out |
| Available | Pending |
10 Crown Place provides office accommodation arranged over the lower ground, ground and six upper floors. The available accommodation is on the 4th and 5th floors, offering high quality fitted offices. The building also benefits from a ground floor meeting suite including an auditorium, and an on site café.
- Use Class: E
- Sublease space available from current tenant
- Fully Built-Out as Standard Office
- Mostly Open Floor Plan Layout
- Fits 19 - 61 People
- 2 Private Offices
- 16 Conference Rooms
- 108 Workstations
- Space is in Excellent Condition
- Can be combined with additional space(s) for up to 14,166 SF of adjacent space
- Central Air Conditioning
- Raised Floor
- Drop Ceilings
- Air conditioning
- Metal tile suspended ceilings
- LED lighting
Property Overview
The property is situated on Crown Place, offering a prime central London location. It is conveniently within easy walking distance of Liverpool Street, Moorgate, and Old Street Underground Stations, providing excellent connectivity to the City and wider London transport network. The area offers a wide range of nearby amenities, including restaurants, cafés, gyms, and retail options, particularly around Broadgate and Spitalfields. It attracts a diverse mix of office occupiers, from major law to financial services, tech companies, and creative industries, making it a vibrant and well-connected business hub.
- Bus Line
Property Facts
Select Tenants
- Floor
- Tenant Name
- Industry
- Multiple
- Close Brothers Group plc
- Finance and Insurance
Presented by
10 Crown Pl
Hmm, there seems to have been an error sending your message. Please try again.
Thanks! Your message was sent.




