Your email has been sent.
10 Greycaine Rd 18,100 SF of Industrial Space Available in Watford WD24 7GG



Highlights
- Two Loading Doors.
- Gas Heating.
- Canopy Loading.
- Three Phase Power.
- Min. eaves 3.5m (11.6ft).
- M1 Motorawy within 1.5 miles.
Features
All Available Space(1)
Display Rental Rate as
- Space
- Size
- Term
- Rental Rate
- Space Use
- Build-Out
- Available
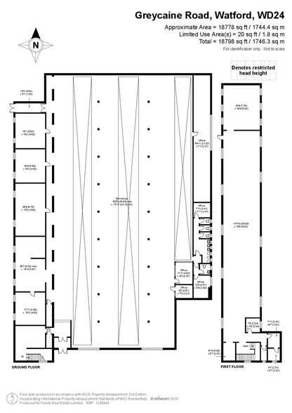
The 6 spaces in this building must be leased together, for a total size of 18,100 SF (Contiguous Area):
Warehouse
- Use Class: B2
- Energy Performance Rating - D
- Central Heating System
| Space | Size | Term | Rental Rate | Space Use | Build-Out | Available |
| Ground - Ancillary, Ground - Loading Canopy, Ground - Offices, Ground - Storage, Ground - Warehouse, 1st Floor - Storage | 18,100 SF | Negotiable | $16.28 /SF/YR $1.36 /SF/MO $294,708 /YR $24,559 /MO | Industrial | Shell Space | 30 Days |
Ground - Ancillary, Ground - Loading Canopy, Ground - Offices, Ground - Storage, Ground - Warehouse, 1st Floor - Storage
The 6 spaces in this building must be leased together, for a total size of 18,100 SF (Contiguous Area):
| Size |
|
Ground - Ancillary - 672 SF
Ground - Loading Canopy - 406 SF
Ground - Offices - 881 SF
Ground - Storage - 1,730 SF
Ground - Warehouse - 11,413 SF
1st Floor - Storage - 2,998 SF
|
| Term |
| Negotiable |
| Rental Rate |
| $16.28 /SF/YR $1.36 /SF/MO $294,708 /YR $24,559 /MO |
| Space Use |
| Industrial |
| Build-Out |
| Shell Space |
| Available |
| 30 Days |
Ground - Ancillary, Ground - Loading Canopy, Ground - Offices, Ground - Storage, Ground - Warehouse, 1st Floor - Storage
| Size |
Ground - Ancillary - 672 SF
Ground - Loading Canopy - 406 SF
Ground - Offices - 881 SF
Ground - Storage - 1,730 SF
Ground - Warehouse - 11,413 SF
1st Floor - Storage - 2,998 SF
|
| Term | Negotiable |
| Rental Rate | $16.28 /SF/YR |
| Space Use | Industrial |
| Build-Out | Shell Space |
| Available | 30 Days |
Warehouse
- Use Class: B2
- Central Heating System
- Energy Performance Rating - D
Property Overview
Situated in North Watford on the established Greycaine Trading Estate within 1.5 miles of Junction 5 of the M1 Motorway and thereby to M25 (Junctions 19, 20 and 21) with ready access to Luton, Heathrow, Stansted and Gatwick Airports. Railway access is available at North Watford Station a short walk away. This provides a connection between Watford Junction (from there to Euston in 18 minutes) and St Albans. Nearby occupiers include Booker Cash & Carry, KD Wholesale, Roy Nut Foods, Donya Foods, Décor Tiles, Herts Traffic Management, National Tyres and Gap Tool Hire.
Warehouse Facility Facts
Select Tenants
- Tenant Name
- Industry
- AFS STRUCTURAL SOLUTIONS (UK) LIMITED
- Manufacturing
- Elmcroft Services
- Health Care and Social Assistance
- Fluid Transfer Systems Ltd
- Manufacturing
- Signet
- Manufacturing
- Trailparts
- Manufacturing
Presented by
10 Greycaine Rd
Hmm, there seems to have been an error sending your message. Please try again.
Thanks! Your message was sent.
