Your email has been sent.
Century Center 100 Century Center Ct 1,663 - 16,710 SF of Office Space Available in San Jose, CA 95112



Highlights
- Brand new modern finishes.
- On-site fitness center.
- Breakroom.
- Free conference center with capacity for 10-12 people.
- Immediate freeway access to I-880, Highway 101 and Highway 87.
- Signage: Possible.
All Available Spaces(5)
Display Rental Rate as
- Space
- Size
- Term
- Rental Rate
- Space Use
- Build-Out
- Available
Suites 302, 330, and 340 can be combined for 6,815 SF. 5 private offices and break room.
- Rate includes utilities, building services and property expenses
- 5 Private Offices
- Finished Ceilings: 9’
- Central Air Conditioning
- Fully Built-Out as Standard Office
- 1 Conference Room
- Space is in Excellent Condition
- Natural Light
The suite includes three private offices, one conference room, and a dedicated server/storage room. A break area is provided for staff convenience. The layout also features a lobby and an open space suitable for workstations or collaborative use.
- Rate includes utilities, building services and property expenses
- Mostly Open Floor Plan Layout
- 1 Conference Room
- Fully Built-Out as Standard Office
- 3 Private Offices
- Space is in Excellent Condition
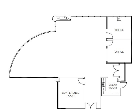
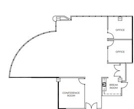
11 Private Offices, 3 Conference Rooms, Reception, Break Room, Storage Room and Server Room.
- Rate includes utilities, building services and property expenses
- 11 Private Offices
- Space is in Excellent Condition
- Secure Storage
- Fully Built-Out as Standard Office
- 3 Conference Rooms
- Reception Area
4 Private Offices, kitchenette, and open office.
- Rate includes utilities, building services and property expenses
- Mostly Open Floor Plan Layout
- Space is in Excellent Condition
- Fully Built-Out as Standard Office
- 4 Private Offices
3 private offices, 1 conference room, IT room, board room, storage room, open area, and break room.
- Rate includes utilities, building services and property expenses
- Mostly Open Floor Plan Layout
- 1 Conference Room
- Space is in Excellent Condition
- Natural Light
- Fully Built-Out as Standard Office
- 3 Private Offices
- Finished Ceilings: 9’
- Secure Storage
- Open-Plan
| Space | Size | Term | Rental Rate | Space Use | Build-Out | Available |
| 3rd Floor, Ste 330 | 1,840 SF | Negotiable | $46.20 /SF/YR $3.85 /SF/MO $85,008 /YR $7,084 /MO | Office | Full Build-Out | Now |
| 4th Floor, Ste 400 | 3,260 SF | Negotiable | $46.20 /SF/YR $3.85 /SF/MO $150,612 /YR $12,551 /MO | Office | Full Build-Out | Now |
| 5th Floor, Ste 500 | 4,900 SF | 1-5 Years | $46.20 /SF/YR $3.85 /SF/MO $226,380 /YR $18,865 /MO | Office | Full Build-Out | Now |
| 5th Floor, Ste 504 | 1,663 SF | Negotiable | $46.20 /SF/YR $3.85 /SF/MO $76,831 /YR $6,403 /MO | Office | Full Build-Out | July 01, 2026 |
| 8th Floor, Ste 850 | 5,047 SF | Negotiable | $46.20 /SF/YR $3.85 /SF/MO $233,171 /YR $19,431 /MO | Office | Full Build-Out | Now |
3rd Floor, Ste 330
| Size |
| 1,840 SF |
| Term |
| Negotiable |
| Rental Rate |
| $46.20 /SF/YR $3.85 /SF/MO $85,008 /YR $7,084 /MO |
| Space Use |
| Office |
| Build-Out |
| Full Build-Out |
| Available |
| Now |
4th Floor, Ste 400
| Size |
| 3,260 SF |
| Term |
| Negotiable |
| Rental Rate |
| $46.20 /SF/YR $3.85 /SF/MO $150,612 /YR $12,551 /MO |
| Space Use |
| Office |
| Build-Out |
| Full Build-Out |
| Available |
| Now |
5th Floor, Ste 500
| Size |
| 4,900 SF |
| Term |
| 1-5 Years |
| Rental Rate |
| $46.20 /SF/YR $3.85 /SF/MO $226,380 /YR $18,865 /MO |
| Space Use |
| Office |
| Build-Out |
| Full Build-Out |
| Available |
| Now |
5th Floor, Ste 504
| Size |
| 1,663 SF |
| Term |
| Negotiable |
| Rental Rate |
| $46.20 /SF/YR $3.85 /SF/MO $76,831 /YR $6,403 /MO |
| Space Use |
| Office |
| Build-Out |
| Full Build-Out |
| Available |
| July 01, 2026 |
8th Floor, Ste 850
| Size |
| 5,047 SF |
| Term |
| Negotiable |
| Rental Rate |
| $46.20 /SF/YR $3.85 /SF/MO $233,171 /YR $19,431 /MO |
| Space Use |
| Office |
| Build-Out |
| Full Build-Out |
| Available |
| Now |
3rd Floor, Ste 330
| Size | 1,840 SF |
| Term | Negotiable |
| Rental Rate | $46.20 /SF/YR |
| Space Use | Office |
| Build-Out | Full Build-Out |
| Available | Now |
Suites 302, 330, and 340 can be combined for 6,815 SF. 5 private offices and break room.
- Rate includes utilities, building services and property expenses
- Fully Built-Out as Standard Office
- 5 Private Offices
- 1 Conference Room
- Finished Ceilings: 9’
- Space is in Excellent Condition
- Central Air Conditioning
- Natural Light
4th Floor, Ste 400
| Size | 3,260 SF |
| Term | Negotiable |
| Rental Rate | $46.20 /SF/YR |
| Space Use | Office |
| Build-Out | Full Build-Out |
| Available | Now |
The suite includes three private offices, one conference room, and a dedicated server/storage room. A break area is provided for staff convenience. The layout also features a lobby and an open space suitable for workstations or collaborative use.
- Rate includes utilities, building services and property expenses
- Fully Built-Out as Standard Office
- Mostly Open Floor Plan Layout
- 3 Private Offices
- 1 Conference Room
- Space is in Excellent Condition
5th Floor, Ste 500
| Size | 4,900 SF |
| Term | 1-5 Years |
| Rental Rate | $46.20 /SF/YR |
| Space Use | Office |
| Build-Out | Full Build-Out |
| Available | Now |
11 Private Offices, 3 Conference Rooms, Reception, Break Room, Storage Room and Server Room.
- Rate includes utilities, building services and property expenses
- Fully Built-Out as Standard Office
- 11 Private Offices
- 3 Conference Rooms
- Space is in Excellent Condition
- Reception Area
- Secure Storage
5th Floor, Ste 504
| Size | 1,663 SF |
| Term | Negotiable |
| Rental Rate | $46.20 /SF/YR |
| Space Use | Office |
| Build-Out | Full Build-Out |
| Available | July 01, 2026 |
4 Private Offices, kitchenette, and open office.
- Rate includes utilities, building services and property expenses
- Fully Built-Out as Standard Office
- Mostly Open Floor Plan Layout
- 4 Private Offices
- Space is in Excellent Condition
8th Floor, Ste 850
| Size | 5,047 SF |
| Term | Negotiable |
| Rental Rate | $46.20 /SF/YR |
| Space Use | Office |
| Build-Out | Full Build-Out |
| Available | Now |
3 private offices, 1 conference room, IT room, board room, storage room, open area, and break room.
- Rate includes utilities, building services and property expenses
- Fully Built-Out as Standard Office
- Mostly Open Floor Plan Layout
- 3 Private Offices
- 1 Conference Room
- Finished Ceilings: 9’
- Space is in Excellent Condition
- Secure Storage
- Natural Light
- Open-Plan
Property Overview
Premier class “A” 8-story office tower. Major building and lobby upgrades just completed.
- Fitness Center
- Food Service
- Property Manager on Site
- Signage
- Energy Star Labeled
- Shower Facilities
- Outdoor Seating
Property Facts
Sustainability
Sustainability
ENERGY STAR® Energy Star is a program run by the U.S. Environmental Protection Agency (EPA) and U.S. Department of Energy (DOE) that promotes energy efficiency and provides simple, credible, and unbiased information that consumers and businesses rely on to make well-informed decisions. Thousands of industrial, commercial, utility, state, and local organizations partner with the EPA to deliver cost-saving energy efficiency solutions that protect the climate while improving air quality and protecting public health. The Energy Star score compares a building’s energy performance to similar buildings nationwide and accounts for differences in operating conditions, regional weather data, and other important considerations. Certification is given on an annual basis, so a building must maintain its high performance to be certified year to year. To be eligible for Energy Star certification, a building must earn a score of 75 or higher on EPA’s 1 – 100 scale, indicating that it performs better than at least 75 percent of similar buildings nationwide. This 1 – 100 Energy Star score is based on the actual, measured energy use of a building and is calculated within EPA’s Energy Star Portfolio Manager tool.






