Log In/Sign Up
Your email has been sent.
100 E Parrish St - Chancellor Building 1,516 SF Office Condo Unit Offered at $425,000 in Durham, NC 27701



Investment Highlights
- Central Downtown Durham Location
- 2 Entrances from Building Lobby, could be divided into 2 offices by the buyer.
- Entire First Floor Condo - two connected units
Data Room Click Here to Access
1 Unit Available
- Unit
- Unit Size
- Condo Use
- Price
- NOI
| Sale Type | Investment or Owner User |
| Sale Type | Investment or Owner User |
Description
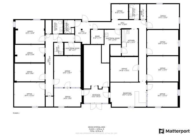
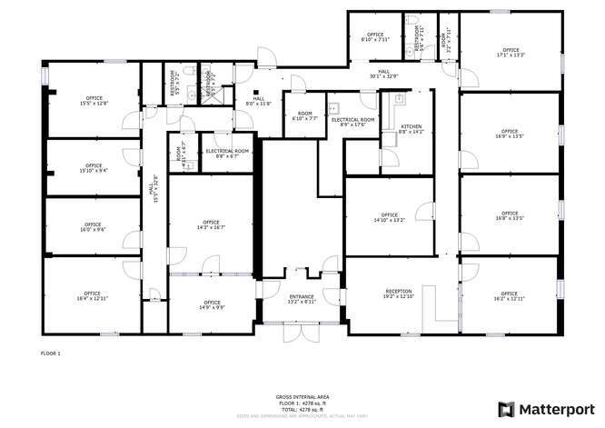
One of two first floor condos, being sold together in a central located downtown Durham building. Perfect for a professional services office, street and municipal parking options immediately available.
| Unit | Unit Size | Condo Use | Price | NOI |
| Unit 150 | 1,516 SF | Office | $425,000 ($280.34/SF) | - |
Unit 150
| Unit Size |
| 1,516 SF |
| Condo Use |
| Office |
| Price |
| $425,000 ($280.34/SF) |
| NOI |
| - |
1 of 1
Videos
Matterport 3D Exterior
Matterport 3D Tour
Photos
Street View
Street
Map
Unit 150
| Unit Size | 1,516 SF |
| Condo Use | Office |
| Price | $425,000 ($280.34/SF) |
| NOI | - |
| Sale Type | Investment or Owner User |
| Description | |
| One of two first floor condos, being sold together in a central located downtown Durham building. Perfect for a professional services office, street and municipal parking options immediately available.</li></ul> |
Property Facts
The following property facts and amenities apply to the entire building. Details for individual condo units may vary and are listed in the unit information above.
| Total Building Size | 16,812 SF | Typical Floor Size | 4,202 SF |
| Property Type | Office (Condo) | Year Built | 1983 |
| Building Class | B | Lot Size | 0.12 AC |
| Floors | 4 | ||
| Zoning | DD - Central Business District | ||
| Total Building Size | 16,812 SF |
| Property Type | Office (Condo) |
| Building Class | B |
| Floors | 4 |
| Typical Floor Size | 4,202 SF |
| Year Built | 1983 |
| Lot Size | 0.12 AC |
| Zoning | DD - Central Business District |
Amenities
- Bus Line
- Signage
1 1
Moderately walkable
70/100
Very drivable
80/100
Good public transit
60/100
Fairly bikeable
50/100
1 of 10
Videos
Matterport 3D Exterior
Matterport 3D Tour
Photos
Street View
Street
Map
1 of 1
Presented by
100 E Parrish St - Chancellor Building
Already a member? Log In
Hmm, there seems to have been an error sending your message. Please try again.
Thanks! Your message was sent.

