Your email has been sent.
100 N Central 100 N Central Expy 1 - 41,007 SF of 4-Star Space Available in Richardson, TX 75080



Highlights
- Professional office building with excellent Highway 75 visibility and access.
- Features recent renovations to common areas, elevators, mechanical systems, and the lobby.
- Onsite retail including cafe/coffee shop, restaurants, stores and apartment building
- Situated between Plano and North Dallas near the renowned Telecom Corridor.
- Less than 15 minutes from I-635 and Downtown Plano.
- Covered Parking Garage
All Available Spaces(20)
Display Rental Rate as
- Space
- Size
- Term
- Rental Rate
- Space Use
- Build-Out
- Available
- Mostly Open Floor Plan Layout
- Space In Need of Renovation
- Lease rate does not include utilities, property expenses or building services
- Mostly Open Floor Plan Layout
- Central Air and Heating
- Corner Space
- Drop Ceilings
- After Hours HVAC Available
- Common Parts WC Facilities
- Fully Built-Out as Standard Retail Space
- Can be combined with additional space(s) for up to 3,719 SF of adjacent space
- Elevator Access
- High Ceilings
- Natural Light
- Atrium
- Wheelchair Accessible
- Lease rate does not include utilities, property expenses or building services
- Mostly Open Floor Plan Layout
- Conference Rooms
- Central Air Conditioning
- Elevator Access
- High Ceilings
- After Hours HVAC Available
- Open-Plan
- Wheelchair Accessible
- Fully Built-Out as Standard Retail Space
- 3 Private Offices
- Can be combined with additional space(s) for up to 3,719 SF of adjacent space
- Reception Area
- Print/Copy Room
- Plug & Play
- Common Parts WC Facilities
- Smoke Detector
Restaurant/Deli Space Available Now! - Equipment Included - Grease Trap - Vent Hood with Fire Suppression - Dish Pit - Hot Well - Cold Well - Independent HVAC system - Independent Water Heater We can also add an exterior door to this space to make it a true retail restaurant. This space is situated right next to 350 Brand New Apartments with future Apartment development to the north. 100 NCX has approximately 350 people in the building during business hours. Highly reliable crowd with great exposure to a growing community and neighborhood.
- Lease rate does not include utilities, property expenses or building services
- Mostly Open Floor Plan Layout
- Can be combined with additional space(s) for up to 3,719 SF of adjacent space
- Elevator Access
- Drop Ceilings
- Natural Light
- Atrium
- Open-Plan
- Wheelchair Accessible
- Landlord willing to offer TI Money to renovate
- Partially Built-Out as a Restaurant or Café Space
- Space In Need of Renovation
- Central Air Conditioning
- High Ceilings
- Plug & Play
- After Hours HVAC Available
- Food Service
- Smoke Detector
- Furnished with some kitchen equipment
- Lease rate does not include utilities, property expenses or building services
- Mostly Open Floor Plan Layout
- Kitchen
- Natural Light
- Fully Built-Out as Standard Office
- 7 Private Offices
- Private Restrooms
- Lease rate does not include utilities, property expenses or building services
- Mostly Open Floor Plan Layout
- Print/Copy Room
- After Hours HVAC Available
- Fully Built-Out as Standard Office
- 6 Private Offices
- High Ceilings
- Open-Plan
- Lease rate does not include utilities, property expenses or building services
- 2 Private Offices
- Print/Copy Room
- Drop Ceilings
- Fully Built-Out as Standard Office
- 2 Conference Rooms
- High Ceilings
- After Hours HVAC Available
- Lease rate does not include utilities, property expenses or building services
- 2 Private Offices
- Can be combined with additional space(s) for up to 2,966 SF of adjacent space
- Corner Space
- Natural Light
- Open-Plan
- Partially Built-Out as Standard Office
- Plug & Play
- Central Air Conditioning
- Drop Ceilings
- After Hours HVAC Available
- Wheelchair Accessible
- Lease rate does not include utilities, property expenses or building services
- Mostly Open Floor Plan Layout
- Plug & Play
- Central Air Conditioning
- Drop Ceilings
- After Hours HVAC Available
- Wheelchair Accessible
- Partially Built-Out as Standard Office
- 2 Private Offices
- Can be combined with additional space(s) for up to 2,966 SF of adjacent space
- Corner Space
- Natural Light
- Open-Plan
- Lease rate does not include utilities, property expenses or building services
- 2 Private Offices
- Central Air Conditioning
- Drop Ceilings
- After Hours HVAC Available
- Wheelchair Accessible
- Partially Built-Out as Standard Office
- Plug & Play
- Corner Space
- Natural Light
- Open-Plan
- Lease rate does not include utilities, property expenses or building services
- 2 Private Offices
- Plug & Play
- Central Air Conditioning
- Elevator Access
- Fully Carpeted
- Natural Light
- Wheelchair Accessible
- Fully Built-Out as Standard Office
- Space is in Excellent Condition
- Can be combined with additional space(s) for up to 5,532 SF of adjacent space
- Reception Area
- Print/Copy Room
- Drop Ceilings
- After Hours HVAC Available
- Lease rate does not include utilities, property expenses or building services
- 2 Private Offices
- Space is in Excellent Condition
- Reception Area
- Natural Light
- Wheelchair Accessible
- Fully Built-Out as Standard Office
- 1 Conference Room
- Central Air Conditioning
- Drop Ceilings
- After Hours HVAC Available
- Lease rate does not include utilities, property expenses or building services
- 2 Private Offices
- Space is in Excellent Condition
- Reception Area
- Natural Light
- Wheelchair Accessible
- Fully Built-Out as Standard Office
- 1 Conference Room
- Central Air Conditioning
- Drop Ceilings
- After Hours HVAC Available
- Lease rate does not include utilities, property expenses or building services
- 2 Private Offices
- Plug & Play
- Central Air Conditioning
- Elevator Access
- Fully Carpeted
- Natural Light
- Wheelchair Accessible
- Fully Built-Out as Standard Office
- Space is in Excellent Condition
- Can be combined with additional space(s) for up to 5,532 SF of adjacent space
- Reception Area
- Print/Copy Room
- Drop Ceilings
- After Hours HVAC Available
- Lease rate does not include utilities, property expenses or building services
- 5 Private Offices
- Space is in Excellent Condition
- Central Air Conditioning
- Elevator Access
- Fully Carpeted
- Drop Ceilings
- After Hours HVAC Available
- Wheelchair Accessible
- Fully Built-Out as Law Office
- 1 Conference Room
- Plug & Play
- Reception Area
- Print/Copy Room
- Corner Space
- Natural Light
- Hardwood Floors
- Lease rate does not include utilities, property expenses or building services
- 3 Private Offices
- 2 Workstations
- Plug & Play
- Corner Space
- Natural Light
- Common Parts WC Facilities
- Wheelchair Accessible
- Fully Built-Out as Standard Office
- 1 Conference Room
- Space is in Excellent Condition
- Reception Area
- Drop Ceilings
- After Hours HVAC Available
- Smoke Detector
- Lease rate does not include utilities, property expenses or building services
- 2 Private Offices
- Space is in Excellent Condition
- Reception Area
- Natural Light
- Wheelchair Accessible
- Fully Built-Out as Standard Office
- 1 Conference Room
- Central Air Conditioning
- Drop Ceilings
- After Hours HVAC Available
- Lease rate does not include utilities, property expenses or building services
- Office intensive layout
- Fully Built-Out as Standard Office
- Lease rate does not include utilities, property expenses or building services
- Office intensive layout
- Fully Built-Out as Standard Office
- Lease rate does not include utilities, property expenses or building services
- 5 Private Offices
- Central Air Conditioning
- Corner Space
- Natural Light
- Common Parts WC Facilities
- 1st Floor Retail or Office
- Fully Built-Out as Standard Office
- 1 Conference Room
- Reception Area
- Drop Ceilings
- After Hours HVAC Available
- Wheelchair Accessible
- Lobby Exposure
| Space | Size | Term | Rental Rate | Space Use | Build-Out | Available |
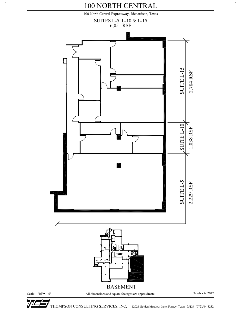
| Basement | 1 SF | Negotiable | Upon Request Upon Request Upon Request Upon Request | Office/Retail | Shell Space | Now |
| 1st Floor, Ste 102 | 826 SF | Negotiable | Upon Request Upon Request Upon Request Upon Request | Office/Retail | Full Build-Out | Now |
| 1st Floor, Ste 104 | 550-1,113 SF | Negotiable | Upon Request Upon Request Upon Request Upon Request | Office/Retail | Full Build-Out | Now |
| 1st Floor, Ste 125 | 1,780 SF | Negotiable | Upon Request Upon Request Upon Request Upon Request | Office/Retail | Partial Build-Out | Now |
| 1st Floor, Ste 150 | 6,799 SF | Negotiable | Upon Request Upon Request Upon Request Upon Request | Office/Retail | Full Build-Out | Now |
| 1st Floor, Ste 160 | 3,872 SF | Negotiable | Upon Request Upon Request Upon Request Upon Request | Office/Retail | Full Build-Out | Now |
| 1st Floor, Ste 190 | 8,311 SF | Negotiable | Upon Request Upon Request Upon Request Upon Request | Office/Retail | Full Build-Out | Now |
| 3rd Floor, Ste 360 | 503 SF | Negotiable | $20.00 /SF/YR $1.67 /SF/MO $10,060 /YR $838.33 /MO | Office | Partial Build-Out | Now |
| 3rd Floor, Ste 370 | 969-2,463 SF | Negotiable | $20.00 /SF/YR $1.67 /SF/MO $49,260 /YR $4,105 /MO | Office | Partial Build-Out | Now |
| 4th Floor, Ste 406 | 567 SF | Negotiable | $20.00 /SF/YR $1.67 /SF/MO $11,340 /YR $945.00 /MO | Office | Partial Build-Out | Now |
| 7th Floor, Ste 701 | 2,328 SF | Negotiable | $20.00 /SF/YR $1.67 /SF/MO $46,560 /YR $3,880 /MO | Office | Full Build-Out | Now |
| 7th Floor, Ste 711 | 385 SF | Negotiable | $20.00 /SF/YR $1.67 /SF/MO $7,700 /YR $641.67 /MO | Office | Full Build-Out | Now |
| 7th Floor, Ste 711 | 385 SF | Negotiable | $20.00 /SF/YR $1.67 /SF/MO $7,700 /YR $641.67 /MO | Office | Full Build-Out | Now |
| 7th Floor, Ste 714 | 3,204 SF | Negotiable | $20.00 /SF/YR $1.67 /SF/MO $64,080 /YR $5,340 /MO | Office | Full Build-Out | Now |
| 8th Floor, Ste 809 | 1,518 SF | Negotiable | $20.00 /SF/YR $1.67 /SF/MO $30,360 /YR $2,530 /MO | Office | Full Build-Out | Now |
| 8th Floor, Ste 815 | 1,590 SF | Negotiable | $20.00 /SF/YR $1.67 /SF/MO $31,800 /YR $2,650 /MO | Office | Full Build-Out | Now |
| 9th Floor, Ste 900 | 906 SF | Negotiable | $20.00 /SF/YR $1.67 /SF/MO $18,120 /YR $1,510 /MO | Office | Full Build-Out | Now |
| 10th Floor, Ste 1013 | 1,113 SF | Negotiable | $20.00 /SF/YR $1.67 /SF/MO $22,260 /YR $1,855 /MO | Office | Full Build-Out | Now |
| 10th Floor, Ste 1025 | 434 SF | Negotiable | $20.00 /SF/YR $1.67 /SF/MO $8,680 /YR $723.33 /MO | Office | Full Build-Out | Now |
| 11th Floor, Ste 1120 | 2,909 SF | Negotiable | $20.00 /SF/YR $1.67 /SF/MO $58,180 /YR $4,848 /MO | Office | Full Build-Out | Now |
Basement
| Size |
| 1 SF |
| Term |
| Negotiable |
| Rental Rate |
| Upon Request Upon Request Upon Request Upon Request |
| Space Use |
| Office/Retail |
| Build-Out |
| Shell Space |
| Available |
| Now |
1st Floor, Ste 102
| Size |
| 826 SF |
| Term |
| Negotiable |
| Rental Rate |
| Upon Request Upon Request Upon Request Upon Request |
| Space Use |
| Office/Retail |
| Build-Out |
| Full Build-Out |
| Available |
| Now |
1st Floor, Ste 104
| Size |
| 550-1,113 SF |
| Term |
| Negotiable |
| Rental Rate |
| Upon Request Upon Request Upon Request Upon Request |
| Space Use |
| Office/Retail |
| Build-Out |
| Full Build-Out |
| Available |
| Now |
1st Floor, Ste 125
| Size |
| 1,780 SF |
| Term |
| Negotiable |
| Rental Rate |
| Upon Request Upon Request Upon Request Upon Request |
| Space Use |
| Office/Retail |
| Build-Out |
| Partial Build-Out |
| Available |
| Now |
1st Floor, Ste 150
| Size |
| 6,799 SF |
| Term |
| Negotiable |
| Rental Rate |
| Upon Request Upon Request Upon Request Upon Request |
| Space Use |
| Office/Retail |
| Build-Out |
| Full Build-Out |
| Available |
| Now |
1st Floor, Ste 160
| Size |
| 3,872 SF |
| Term |
| Negotiable |
| Rental Rate |
| Upon Request Upon Request Upon Request Upon Request |
| Space Use |
| Office/Retail |
| Build-Out |
| Full Build-Out |
| Available |
| Now |
1st Floor, Ste 190
| Size |
| 8,311 SF |
| Term |
| Negotiable |
| Rental Rate |
| Upon Request Upon Request Upon Request Upon Request |
| Space Use |
| Office/Retail |
| Build-Out |
| Full Build-Out |
| Available |
| Now |
3rd Floor, Ste 360
| Size |
| 503 SF |
| Term |
| Negotiable |
| Rental Rate |
| $20.00 /SF/YR $1.67 /SF/MO $10,060 /YR $838.33 /MO |
| Space Use |
| Office |
| Build-Out |
| Partial Build-Out |
| Available |
| Now |
3rd Floor, Ste 370
| Size |
| 969-2,463 SF |
| Term |
| Negotiable |
| Rental Rate |
| $20.00 /SF/YR $1.67 /SF/MO $49,260 /YR $4,105 /MO |
| Space Use |
| Office |
| Build-Out |
| Partial Build-Out |
| Available |
| Now |
4th Floor, Ste 406
| Size |
| 567 SF |
| Term |
| Negotiable |
| Rental Rate |
| $20.00 /SF/YR $1.67 /SF/MO $11,340 /YR $945.00 /MO |
| Space Use |
| Office |
| Build-Out |
| Partial Build-Out |
| Available |
| Now |
7th Floor, Ste 701
| Size |
| 2,328 SF |
| Term |
| Negotiable |
| Rental Rate |
| $20.00 /SF/YR $1.67 /SF/MO $46,560 /YR $3,880 /MO |
| Space Use |
| Office |
| Build-Out |
| Full Build-Out |
| Available |
| Now |
7th Floor, Ste 711
| Size |
| 385 SF |
| Term |
| Negotiable |
| Rental Rate |
| $20.00 /SF/YR $1.67 /SF/MO $7,700 /YR $641.67 /MO |
| Space Use |
| Office |
| Build-Out |
| Full Build-Out |
| Available |
| Now |
7th Floor, Ste 711
| Size |
| 385 SF |
| Term |
| Negotiable |
| Rental Rate |
| $20.00 /SF/YR $1.67 /SF/MO $7,700 /YR $641.67 /MO |
| Space Use |
| Office |
| Build-Out |
| Full Build-Out |
| Available |
| Now |
7th Floor, Ste 714
| Size |
| 3,204 SF |
| Term |
| Negotiable |
| Rental Rate |
| $20.00 /SF/YR $1.67 /SF/MO $64,080 /YR $5,340 /MO |
| Space Use |
| Office |
| Build-Out |
| Full Build-Out |
| Available |
| Now |
8th Floor, Ste 809
| Size |
| 1,518 SF |
| Term |
| Negotiable |
| Rental Rate |
| $20.00 /SF/YR $1.67 /SF/MO $30,360 /YR $2,530 /MO |
| Space Use |
| Office |
| Build-Out |
| Full Build-Out |
| Available |
| Now |
8th Floor, Ste 815
| Size |
| 1,590 SF |
| Term |
| Negotiable |
| Rental Rate |
| $20.00 /SF/YR $1.67 /SF/MO $31,800 /YR $2,650 /MO |
| Space Use |
| Office |
| Build-Out |
| Full Build-Out |
| Available |
| Now |
9th Floor, Ste 900
| Size |
| 906 SF |
| Term |
| Negotiable |
| Rental Rate |
| $20.00 /SF/YR $1.67 /SF/MO $18,120 /YR $1,510 /MO |
| Space Use |
| Office |
| Build-Out |
| Full Build-Out |
| Available |
| Now |
10th Floor, Ste 1013
| Size |
| 1,113 SF |
| Term |
| Negotiable |
| Rental Rate |
| $20.00 /SF/YR $1.67 /SF/MO $22,260 /YR $1,855 /MO |
| Space Use |
| Office |
| Build-Out |
| Full Build-Out |
| Available |
| Now |
10th Floor, Ste 1025
| Size |
| 434 SF |
| Term |
| Negotiable |
| Rental Rate |
| $20.00 /SF/YR $1.67 /SF/MO $8,680 /YR $723.33 /MO |
| Space Use |
| Office |
| Build-Out |
| Full Build-Out |
| Available |
| Now |
11th Floor, Ste 1120
| Size |
| 2,909 SF |
| Term |
| Negotiable |
| Rental Rate |
| $20.00 /SF/YR $1.67 /SF/MO $58,180 /YR $4,848 /MO |
| Space Use |
| Office |
| Build-Out |
| Full Build-Out |
| Available |
| Now |
Basement
| Size | 1 SF |
| Term | Negotiable |
| Rental Rate | Upon Request |
| Space Use | Office/Retail |
| Build-Out | Shell Space |
| Available | Now |
- Mostly Open Floor Plan Layout
- Space In Need of Renovation
1st Floor, Ste 102
| Size | 826 SF |
| Term | Negotiable |
| Rental Rate | Upon Request |
| Space Use | Office/Retail |
| Build-Out | Full Build-Out |
| Available | Now |
- Lease rate does not include utilities, property expenses or building services
- Fully Built-Out as Standard Retail Space
- Mostly Open Floor Plan Layout
- Can be combined with additional space(s) for up to 3,719 SF of adjacent space
- Central Air and Heating
- Elevator Access
- Corner Space
- High Ceilings
- Drop Ceilings
- Natural Light
- After Hours HVAC Available
- Atrium
- Common Parts WC Facilities
- Wheelchair Accessible
1st Floor, Ste 104
| Size | 550-1,113 SF |
| Term | Negotiable |
| Rental Rate | Upon Request |
| Space Use | Office/Retail |
| Build-Out | Full Build-Out |
| Available | Now |
- Lease rate does not include utilities, property expenses or building services
- Fully Built-Out as Standard Retail Space
- Mostly Open Floor Plan Layout
- 3 Private Offices
- Conference Rooms
- Can be combined with additional space(s) for up to 3,719 SF of adjacent space
- Central Air Conditioning
- Reception Area
- Elevator Access
- Print/Copy Room
- High Ceilings
- Plug & Play
- After Hours HVAC Available
- Common Parts WC Facilities
- Open-Plan
- Smoke Detector
- Wheelchair Accessible
1st Floor, Ste 125
| Size | 1,780 SF |
| Term | Negotiable |
| Rental Rate | Upon Request |
| Space Use | Office/Retail |
| Build-Out | Partial Build-Out |
| Available | Now |
Restaurant/Deli Space Available Now! - Equipment Included - Grease Trap - Vent Hood with Fire Suppression - Dish Pit - Hot Well - Cold Well - Independent HVAC system - Independent Water Heater We can also add an exterior door to this space to make it a true retail restaurant. This space is situated right next to 350 Brand New Apartments with future Apartment development to the north. 100 NCX has approximately 350 people in the building during business hours. Highly reliable crowd with great exposure to a growing community and neighborhood.
- Lease rate does not include utilities, property expenses or building services
- Partially Built-Out as a Restaurant or Café Space
- Mostly Open Floor Plan Layout
- Space In Need of Renovation
- Can be combined with additional space(s) for up to 3,719 SF of adjacent space
- Central Air Conditioning
- Elevator Access
- High Ceilings
- Drop Ceilings
- Plug & Play
- Natural Light
- After Hours HVAC Available
- Atrium
- Food Service
- Open-Plan
- Smoke Detector
- Wheelchair Accessible
- Furnished with some kitchen equipment
- Landlord willing to offer TI Money to renovate
1st Floor, Ste 150
| Size | 6,799 SF |
| Term | Negotiable |
| Rental Rate | Upon Request |
| Space Use | Office/Retail |
| Build-Out | Full Build-Out |
| Available | Now |
- Lease rate does not include utilities, property expenses or building services
- Fully Built-Out as Standard Office
- Mostly Open Floor Plan Layout
- 7 Private Offices
- Kitchen
- Private Restrooms
- Natural Light
1st Floor, Ste 160
| Size | 3,872 SF |
| Term | Negotiable |
| Rental Rate | Upon Request |
| Space Use | Office/Retail |
| Build-Out | Full Build-Out |
| Available | Now |
- Lease rate does not include utilities, property expenses or building services
- Fully Built-Out as Standard Office
- Mostly Open Floor Plan Layout
- 6 Private Offices
- Print/Copy Room
- High Ceilings
- After Hours HVAC Available
- Open-Plan
1st Floor, Ste 190
| Size | 8,311 SF |
| Term | Negotiable |
| Rental Rate | Upon Request |
| Space Use | Office/Retail |
| Build-Out | Full Build-Out |
| Available | Now |
- Lease rate does not include utilities, property expenses or building services
- Fully Built-Out as Standard Office
- 2 Private Offices
- 2 Conference Rooms
- Print/Copy Room
- High Ceilings
- Drop Ceilings
- After Hours HVAC Available
3rd Floor, Ste 360
| Size | 503 SF |
| Term | Negotiable |
| Rental Rate | $20.00 /SF/YR |
| Space Use | Office |
| Build-Out | Partial Build-Out |
| Available | Now |
- Lease rate does not include utilities, property expenses or building services
- Partially Built-Out as Standard Office
- 2 Private Offices
- Plug & Play
- Can be combined with additional space(s) for up to 2,966 SF of adjacent space
- Central Air Conditioning
- Corner Space
- Drop Ceilings
- Natural Light
- After Hours HVAC Available
- Open-Plan
- Wheelchair Accessible
3rd Floor, Ste 370
| Size | 969-2,463 SF |
| Term | Negotiable |
| Rental Rate | $20.00 /SF/YR |
| Space Use | Office |
| Build-Out | Partial Build-Out |
| Available | Now |
- Lease rate does not include utilities, property expenses or building services
- Partially Built-Out as Standard Office
- Mostly Open Floor Plan Layout
- 2 Private Offices
- Plug & Play
- Can be combined with additional space(s) for up to 2,966 SF of adjacent space
- Central Air Conditioning
- Corner Space
- Drop Ceilings
- Natural Light
- After Hours HVAC Available
- Open-Plan
- Wheelchair Accessible
4th Floor, Ste 406
| Size | 567 SF |
| Term | Negotiable |
| Rental Rate | $20.00 /SF/YR |
| Space Use | Office |
| Build-Out | Partial Build-Out |
| Available | Now |
- Lease rate does not include utilities, property expenses or building services
- Partially Built-Out as Standard Office
- 2 Private Offices
- Plug & Play
- Central Air Conditioning
- Corner Space
- Drop Ceilings
- Natural Light
- After Hours HVAC Available
- Open-Plan
- Wheelchair Accessible
7th Floor, Ste 701
| Size | 2,328 SF |
| Term | Negotiable |
| Rental Rate | $20.00 /SF/YR |
| Space Use | Office |
| Build-Out | Full Build-Out |
| Available | Now |
- Lease rate does not include utilities, property expenses or building services
- Fully Built-Out as Standard Office
- 2 Private Offices
- Space is in Excellent Condition
- Plug & Play
- Can be combined with additional space(s) for up to 5,532 SF of adjacent space
- Central Air Conditioning
- Reception Area
- Elevator Access
- Print/Copy Room
- Fully Carpeted
- Drop Ceilings
- Natural Light
- After Hours HVAC Available
- Wheelchair Accessible
7th Floor, Ste 711
| Size | 385 SF |
| Term | Negotiable |
| Rental Rate | $20.00 /SF/YR |
| Space Use | Office |
| Build-Out | Full Build-Out |
| Available | Now |
- Lease rate does not include utilities, property expenses or building services
- Fully Built-Out as Standard Office
- 2 Private Offices
- 1 Conference Room
- Space is in Excellent Condition
- Central Air Conditioning
- Reception Area
- Drop Ceilings
- Natural Light
- After Hours HVAC Available
- Wheelchair Accessible
7th Floor, Ste 711
| Size | 385 SF |
| Term | Negotiable |
| Rental Rate | $20.00 /SF/YR |
| Space Use | Office |
| Build-Out | Full Build-Out |
| Available | Now |
- Lease rate does not include utilities, property expenses or building services
- Fully Built-Out as Standard Office
- 2 Private Offices
- 1 Conference Room
- Space is in Excellent Condition
- Central Air Conditioning
- Reception Area
- Drop Ceilings
- Natural Light
- After Hours HVAC Available
- Wheelchair Accessible
7th Floor, Ste 714
| Size | 3,204 SF |
| Term | Negotiable |
| Rental Rate | $20.00 /SF/YR |
| Space Use | Office |
| Build-Out | Full Build-Out |
| Available | Now |
- Lease rate does not include utilities, property expenses or building services
- Fully Built-Out as Standard Office
- 2 Private Offices
- Space is in Excellent Condition
- Plug & Play
- Can be combined with additional space(s) for up to 5,532 SF of adjacent space
- Central Air Conditioning
- Reception Area
- Elevator Access
- Print/Copy Room
- Fully Carpeted
- Drop Ceilings
- Natural Light
- After Hours HVAC Available
- Wheelchair Accessible
8th Floor, Ste 809
| Size | 1,518 SF |
| Term | Negotiable |
| Rental Rate | $20.00 /SF/YR |
| Space Use | Office |
| Build-Out | Full Build-Out |
| Available | Now |
- Lease rate does not include utilities, property expenses or building services
- Fully Built-Out as Law Office
- 5 Private Offices
- 1 Conference Room
- Space is in Excellent Condition
- Plug & Play
- Central Air Conditioning
- Reception Area
- Elevator Access
- Print/Copy Room
- Fully Carpeted
- Corner Space
- Drop Ceilings
- Natural Light
- After Hours HVAC Available
- Hardwood Floors
- Wheelchair Accessible
8th Floor, Ste 815
| Size | 1,590 SF |
| Term | Negotiable |
| Rental Rate | $20.00 /SF/YR |
| Space Use | Office |
| Build-Out | Full Build-Out |
| Available | Now |
- Lease rate does not include utilities, property expenses or building services
- Fully Built-Out as Standard Office
- 3 Private Offices
- 1 Conference Room
- 2 Workstations
- Space is in Excellent Condition
- Plug & Play
- Reception Area
- Corner Space
- Drop Ceilings
- Natural Light
- After Hours HVAC Available
- Common Parts WC Facilities
- Smoke Detector
- Wheelchair Accessible
9th Floor, Ste 900
| Size | 906 SF |
| Term | Negotiable |
| Rental Rate | $20.00 /SF/YR |
| Space Use | Office |
| Build-Out | Full Build-Out |
| Available | Now |
- Lease rate does not include utilities, property expenses or building services
- Fully Built-Out as Standard Office
- 2 Private Offices
- 1 Conference Room
- Space is in Excellent Condition
- Central Air Conditioning
- Reception Area
- Drop Ceilings
- Natural Light
- After Hours HVAC Available
- Wheelchair Accessible
10th Floor, Ste 1013
| Size | 1,113 SF |
| Term | Negotiable |
| Rental Rate | $20.00 /SF/YR |
| Space Use | Office |
| Build-Out | Full Build-Out |
| Available | Now |
- Lease rate does not include utilities, property expenses or building services
- Fully Built-Out as Standard Office
- Office intensive layout
10th Floor, Ste 1025
| Size | 434 SF |
| Term | Negotiable |
| Rental Rate | $20.00 /SF/YR |
| Space Use | Office |
| Build-Out | Full Build-Out |
| Available | Now |
- Lease rate does not include utilities, property expenses or building services
- Fully Built-Out as Standard Office
- Office intensive layout
11th Floor, Ste 1120
| Size | 2,909 SF |
| Term | Negotiable |
| Rental Rate | $20.00 /SF/YR |
| Space Use | Office |
| Build-Out | Full Build-Out |
| Available | Now |
- Lease rate does not include utilities, property expenses or building services
- Fully Built-Out as Standard Office
- 5 Private Offices
- 1 Conference Room
- Central Air Conditioning
- Reception Area
- Corner Space
- Drop Ceilings
- Natural Light
- After Hours HVAC Available
- Common Parts WC Facilities
- Wheelchair Accessible
- 1st Floor Retail or Office
- Lobby Exposure
Property Overview
100 N Central Expressway in Richardson, Texas, is a 13-story, ±199,428 square-foot office building with excellent highway visibility and proximity to Dallas’s Telecom Corridor. The property features recent renovations to the common areas, lobby, elevators and mechanical systems, on-site Chase Bank with a drive-through, and is AT&T Fiber ready with speeds up to 1 GBPS. Additional amenities include a barbershop and move-in-ready, fully furnished executive suites with flexible lease terms. Situated between Plano and North Dallas, 100 N Central offers a range of nearby retail and dining options, and given the connectivity to Highway 75, employees can reach I-635 and Downtown Plano in less than 15 minutes. For further commuting options, the Spring Valley Transit Stop is just under one mile away.
- 24 Hour Access
- Banking
- Controlled Access
- Conferencing Facility
- Courtyard
- Property Manager on Site
- Signage
- Skylights
- Wheelchair Accessible
- Storage Space
- Car Charging Station
- Outdoor Seating
- Air Conditioning
- Fiber Optic Internet
- On-Site Security Staff
Property Facts
Select Tenants
- Floor
- Tenant Name
- Industry
- 2nd
- Centre Technologies
- Professional, Scientific, and Technical Services
- Multiple
- Chase Bank
- Finance and Insurance
- 11th
- Children's Dental Specialists
- Health Care and Social Assistance
- 12th
- Durkin, Inc.
- Real Estate
- 12th
- Five Star Advisor Partners
- Finance and Insurance
- 11th
- Mills Orthodontics
- Health Care and Social Assistance
- 1st
- NuTeeth Dental Implant Center
- Health Care and Social Assistance
- 13th
- Wincorn & Associates
- Professional, Scientific, and Technical Services
Presented by
100 N Central | 100 N Central Expy
Hmm, there seems to have been an error sending your message. Please try again.
Thanks! Your message was sent.















































