Log In/Sign Up
Your email has been sent.
Mark Chesson & Sons Property 101 Chesson Dr 9,000 SF 100% Leased Industrial Building Williamston, NC 27892 $950,000 ($105.56/SF)



INVESTMENT HIGHLIGHTS
- Prime Location
EXECUTIVE SUMMARY
Williamston, NC Iconic Landmark - Mark Chesson & Son's
This rare, historic property at 101 Chesson Drive in Williamston, NC has been a vital hub for agricultural service and equipment since 1974. Known throughout Eastern North Carolina as the trusted dealership for farmers, landscapers, and weekend warriors, Mark Chesson & Son's has built a lasting legacy. Now, this 10.6-acre property offers a prime opportunity to own a piece of agricultural history.
Property Highlights:
- Prime Location: Located in the heart of Williamston, this property benefits from easy access to Highway 64 and Highway 17, offering excellent connectivity to key regional routes and surrounding areas in northeastern North Carolina.
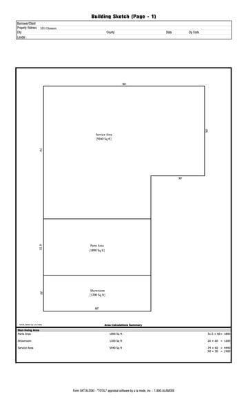
- Spacious Main Building: The 9,000-square-foot main building features an expansive parts room, upstairs storage, office space and work areas—designed to handle the diverse needs of agricultural businesses.
- Additional Building: A second building is available for extra workspace and storage, providing even more flexibility for operations.
- Large Roll-Up Doors: The main building is equipped with 3 large roll-up doors, providing easy access for large equipment and making it ideal for repairs and servicing.
- Utility Services: With sewer, water, and 3-phase electricity already in place, this property is ready for immediate use in agricultural or industrial operations.
- Expansion Opportunities: The property’s potential for growth is enhanced by its proximity to the Roberson Business Park, with additional acreage available for expansion or future development.
- Well-Known Location: Since 1974, this property has been a trusted location in the agricultural industry, serving farmers, landscapers, and hobbyists from across the East Coast. Its reputation and strategic location make it an ideal investment for anyone looking to continue or expand upon its successful legacy.
Why Choose This Property?
This iconic property offers a rare chance to own a highly functional, well-located facility with the potential for future growth. Whether you are looking to continue Mark Chesson & Son’s legacy or develop your own agricultural business, the prime location and infrastructure make this an ideal investment.Take advantage of this opportunity to own a property with decades of history, a solid reputation, and the capacity for growth. Contact Fleming Properties, Inc. to schedule a tour or request more information!
This rare, historic property at 101 Chesson Drive in Williamston, NC has been a vital hub for agricultural service and equipment since 1974. Known throughout Eastern North Carolina as the trusted dealership for farmers, landscapers, and weekend warriors, Mark Chesson & Son's has built a lasting legacy. Now, this 10.6-acre property offers a prime opportunity to own a piece of agricultural history.
Property Highlights:
- Prime Location: Located in the heart of Williamston, this property benefits from easy access to Highway 64 and Highway 17, offering excellent connectivity to key regional routes and surrounding areas in northeastern North Carolina.
- Spacious Main Building: The 9,000-square-foot main building features an expansive parts room, upstairs storage, office space and work areas—designed to handle the diverse needs of agricultural businesses.
- Additional Building: A second building is available for extra workspace and storage, providing even more flexibility for operations.
- Large Roll-Up Doors: The main building is equipped with 3 large roll-up doors, providing easy access for large equipment and making it ideal for repairs and servicing.
- Utility Services: With sewer, water, and 3-phase electricity already in place, this property is ready for immediate use in agricultural or industrial operations.
- Expansion Opportunities: The property’s potential for growth is enhanced by its proximity to the Roberson Business Park, with additional acreage available for expansion or future development.
- Well-Known Location: Since 1974, this property has been a trusted location in the agricultural industry, serving farmers, landscapers, and hobbyists from across the East Coast. Its reputation and strategic location make it an ideal investment for anyone looking to continue or expand upon its successful legacy.
Why Choose This Property?
This iconic property offers a rare chance to own a highly functional, well-located facility with the potential for future growth. Whether you are looking to continue Mark Chesson & Son’s legacy or develop your own agricultural business, the prime location and infrastructure make this an ideal investment.Take advantage of this opportunity to own a property with decades of history, a solid reputation, and the capacity for growth. Contact Fleming Properties, Inc. to schedule a tour or request more information!
PROPERTY FACTS
AMENITIES
- Air Conditioning
UTILITIES
- Lighting
- Gas
- Water
- Sewer
- Heating
1 1
PROPERTY TAXES
| Parcel Number | 0500637 | Improvements Assessment | $224,760 |
| Land Assessment | $171,250 | Total Assessment | $396,010 |
PROPERTY TAXES
Parcel Number
0500637
Land Assessment
$171,250
Improvements Assessment
$224,760
Total Assessment
$396,010
1 of 4
VIDEOS
MATTERPORT 3D EXTERIOR
MATTERPORT 3D TOUR
PHOTOS
STREET VIEW
STREET
MAP
1 of 1
Presented by
Fleming Properties, Inc.
Mark Chesson & Sons Property | 101 Chesson Dr
Already a member? Log In
Hmm, there seems to have been an error sending your message. Please try again.
Thanks! Your message was sent.
