Your email has been sent.
Greenfield Corporate Center 101 Munson St 2,538 - 15,778 SF of Office Space Available in Greenfield, MA 01301



Highlights
- Suburban office building in attractive campus-like setting
- Back-up power generator servicing entire building; elevator access
- Located at the junction of I-91 & Route 2
- Security desk, on-site management & card access system
- Fiber-optic telecom and raised floor data center available
- Attractive rental rates
All Available Spaces(4)
Display Rental Rate as
- Space
- Size
- Term
- Rental Rate
- Space Use
- Build-Out
- Available
- Fits 5 - 10 People
Development Associates is pleased to offer available space at the Greenfield Corporate Center. Available spaces suitable for service agencies, medical or professional offices. The property is located at the intersection of I-91 and Rte 2 in Greenfield, less than 30 minutes from the 5 college area and 20 minutes from Brattleboro, VT. 101 Munson Street, part of the Greenfield Corporate Center campus is a high-quality 25 acre suburban corporate campus with manicured grounds, a 1-mile wooded walking trail, ample parking and highway exposure.
- Fully Built-Out as Professional Services Office
- Fits 7 - 41 People
- Reception Area
- Office intensive layout
- Finished Ceilings: 9’
The Greenfield Corporate Center is a high quality, 25-acre suburban corporate campus with manicured grounds, a 1 mile wooded walking trail, ample parking and highway exposure. Interior features include a variey of functional, attractive spaces with plenty of natural light. Fully furnished, networked, and powered modular furniture in place for immediate occupancy. Serviced by Verizon fiber optic telecom equipment, white noise sound attenuation system, backup generator, raised floor data center, 100 seat cafeteria, security desk with reception, card access system and on-site maintenance. Located right off Interstate 91 on Route 2. 30 minutes from UMass Amherst.
- Fully Built-Out as Standard Office
- Fits 7 - 21 People
- Reception Area
- Office intensive layout
- Space is in Excellent Condition
- Food Service
Open floorplan with some offices, fully furnished and networked with perimeter windows
- Partially Built-Out as Professional Services Office
- Fits 11 - 35 People
- Office intensive layout
- Reception Area
| Space | Size | Term | Rental Rate | Space Use | Build-Out | Available |
| Ground | 3,800 SF | Negotiable | Upon Request Upon Request Upon Request Upon Request | Office | - | Now |
| 1st Floor | 5,120 SF | 2-30 Years | Upon Request Upon Request Upon Request Upon Request | Office | Full Build-Out | Now |
| 1st Floor | 2,538 SF | 2-30 Years | Upon Request Upon Request Upon Request Upon Request | Office | Full Build-Out | Now |
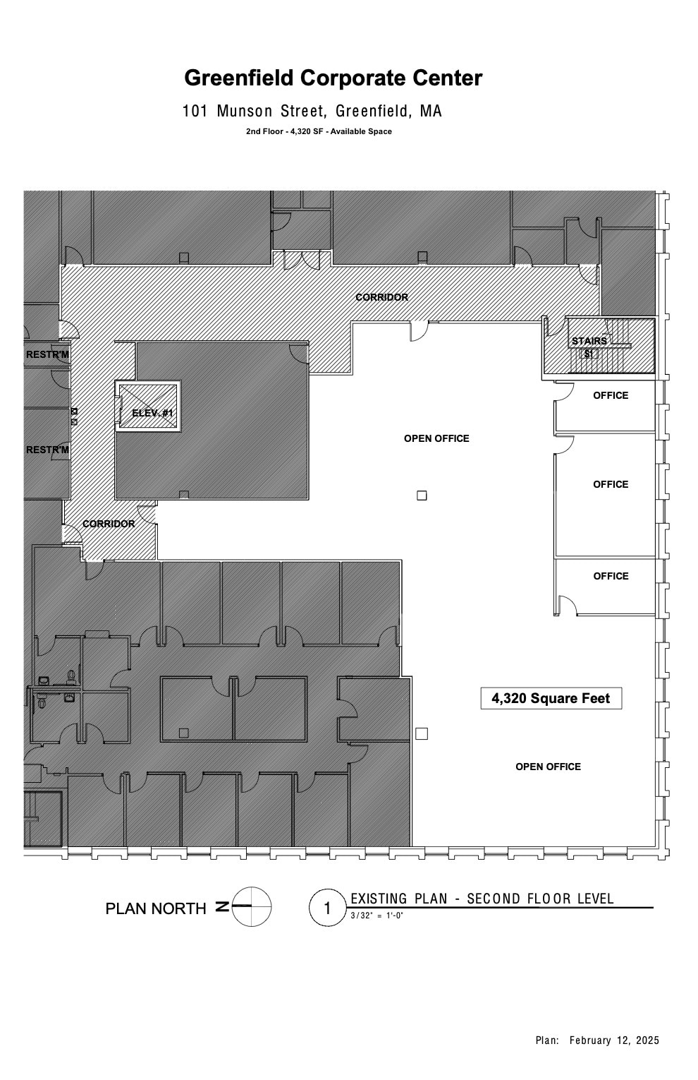
| 2nd Floor | 4,320 SF | 2-30 Years | Upon Request Upon Request Upon Request Upon Request | Office | Partial Build-Out | Now |
Ground
| Size |
| 3,800 SF |
| Term |
| Negotiable |
| Rental Rate |
| Upon Request Upon Request Upon Request Upon Request |
| Space Use |
| Office |
| Build-Out |
| - |
| Available |
| Now |
1st Floor
| Size |
| 5,120 SF |
| Term |
| 2-30 Years |
| Rental Rate |
| Upon Request Upon Request Upon Request Upon Request |
| Space Use |
| Office |
| Build-Out |
| Full Build-Out |
| Available |
| Now |
1st Floor
| Size |
| 2,538 SF |
| Term |
| 2-30 Years |
| Rental Rate |
| Upon Request Upon Request Upon Request Upon Request |
| Space Use |
| Office |
| Build-Out |
| Full Build-Out |
| Available |
| Now |
2nd Floor
| Size |
| 4,320 SF |
| Term |
| 2-30 Years |
| Rental Rate |
| Upon Request Upon Request Upon Request Upon Request |
| Space Use |
| Office |
| Build-Out |
| Partial Build-Out |
| Available |
| Now |
Ground
| Size | 3,800 SF |
| Term | Negotiable |
| Rental Rate | Upon Request |
| Space Use | Office |
| Build-Out | - |
| Available | Now |
- Fits 5 - 10 People
1st Floor
| Size | 5,120 SF |
| Term | 2-30 Years |
| Rental Rate | Upon Request |
| Space Use | Office |
| Build-Out | Full Build-Out |
| Available | Now |
Development Associates is pleased to offer available space at the Greenfield Corporate Center. Available spaces suitable for service agencies, medical or professional offices. The property is located at the intersection of I-91 and Rte 2 in Greenfield, less than 30 minutes from the 5 college area and 20 minutes from Brattleboro, VT. 101 Munson Street, part of the Greenfield Corporate Center campus is a high-quality 25 acre suburban corporate campus with manicured grounds, a 1-mile wooded walking trail, ample parking and highway exposure.
- Fully Built-Out as Professional Services Office
- Office intensive layout
- Fits 7 - 41 People
- Finished Ceilings: 9’
- Reception Area
1st Floor
| Size | 2,538 SF |
| Term | 2-30 Years |
| Rental Rate | Upon Request |
| Space Use | Office |
| Build-Out | Full Build-Out |
| Available | Now |
The Greenfield Corporate Center is a high quality, 25-acre suburban corporate campus with manicured grounds, a 1 mile wooded walking trail, ample parking and highway exposure. Interior features include a variey of functional, attractive spaces with plenty of natural light. Fully furnished, networked, and powered modular furniture in place for immediate occupancy. Serviced by Verizon fiber optic telecom equipment, white noise sound attenuation system, backup generator, raised floor data center, 100 seat cafeteria, security desk with reception, card access system and on-site maintenance. Located right off Interstate 91 on Route 2. 30 minutes from UMass Amherst.
- Fully Built-Out as Standard Office
- Office intensive layout
- Fits 7 - 21 People
- Space is in Excellent Condition
- Reception Area
- Food Service
2nd Floor
| Size | 4,320 SF |
| Term | 2-30 Years |
| Rental Rate | Upon Request |
| Space Use | Office |
| Build-Out | Partial Build-Out |
| Available | Now |
Open floorplan with some offices, fully furnished and networked with perimeter windows
- Partially Built-Out as Professional Services Office
- Office intensive layout
- Fits 11 - 35 People
- Reception Area
Property Overview
Development Associates is pleased to offer available office space at the Greenfield Corporate Center. Available spaces suitable for service agencies, medical or professional offices. The property is located at the intersection of I-91 and Rte 2 in Greenfield, less than 30 minutes from the 5 College area and 20 minutes from Brattleboro, VT. 101 Munson Street, part of The Greenfield Corporate Center campus is a high-quality 25 acre suburban corporate campus with manicured grounds, a 1-mile wooded walking trail, ample parking and highway exposure.
Property Facts
Presented by
Greenfield Corporate Center | 101 Munson St
Hmm, there seems to have been an error sending your message. Please try again.
Thanks! Your message was sent.






