Your email has been sent.
Tri-County Incentives! 101 N Washington St 109,412 SF Industrial Building Hanover, IL 61041 $3,700,000 ($33.82/SF)



Investment Highlights
- 25' Clear Heights | 1 DID | 4 Docks
- Zoning: I-1 | Incentives Apply
- Permitted Uses: Cannabis Cultivation, Extraction, Infusion, Dispensary
- 3-Phase/480 V | 5,000 Amps
- Target Uses: Farming Data Center, Bitcoin Mining, Cannabis, Manufacturing
Executive Summary
Situated in the vibrant town of Hanover, IL, this prime commercial location offers investors a coveted opportunity. Nestled in a picturesque setting, the area boasts a charming mix of local businesses, restaurants, and scenic parks. The property is within close proximity to renowned landmarks such as Apple River Canyon State Park, a popular destination for outdoor recreation, and the popular historic town of Galena, showcasing architectural treasures. With its inviting small-town atmosphere and easy access to amenities, the area attracts both visitors and professionals alike, making it an ideal choice for an office or office building investment opportunity.
Property Facts
Utilities
- Water - City
- Sewer - City
Space Availability
- Space
- Size
- Space Use
- Build-Out
- Available
Option to subdivide or lease the entire building. The lease term is negotiable. Target uses include Farming: Data Center, Bitcoin Mining, Cannabis, or Manufacturing
Option to subdivide or lease the entire building. The lease term is negotiable. Target uses include Farming: Data Center, Bitcoin Mining, Cannabis, or Manufacturing
Option to subdivide or lease the entire building. The lease term is negotiable. Target uses include Farming: Data Center, Bitcoin Mining, Cannabis, or Manufacturing
Option to subdivide or lease the entire building. The lease term is negotiable. Target uses include Farming: Data Center, Bitcoin Mining, Cannabis, or Manufacturing
Option to subdivide or lease the entire building. The lease term is negotiable. Target uses include Farming: Data Center, Bitcoin Mining, Cannabis, or Manufacturing
| Space | Size | Space Use | Build-Out | Available |
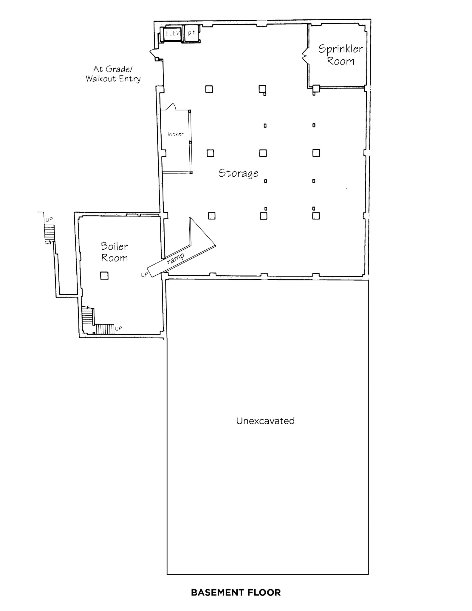
| Basement | 10,500 SF | Industrial | - | Now |
| 1st Floor | 35,192 SF | Industrial | - | Now |
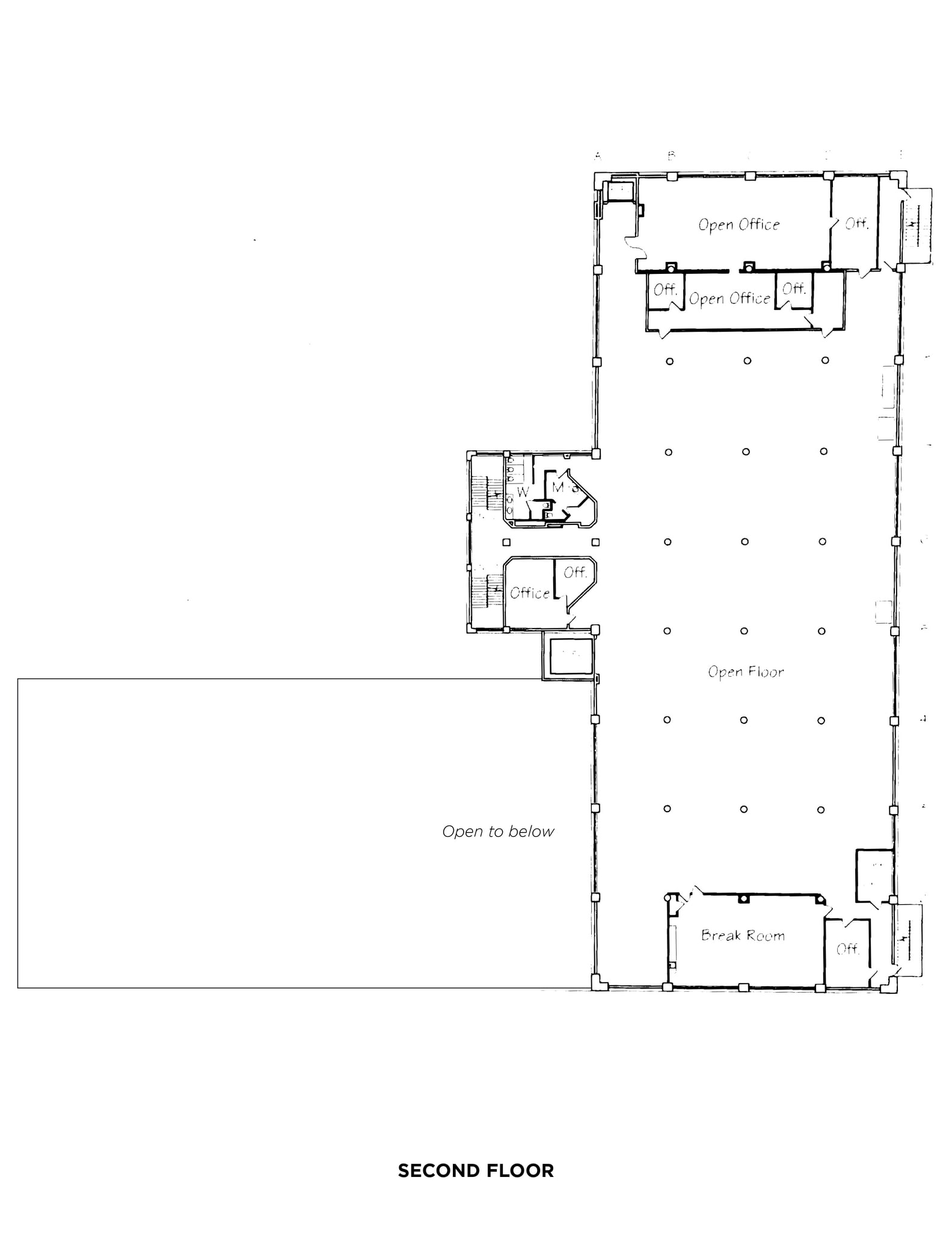
| 2nd Floor | 21,240 SF | Industrial | - | Now |
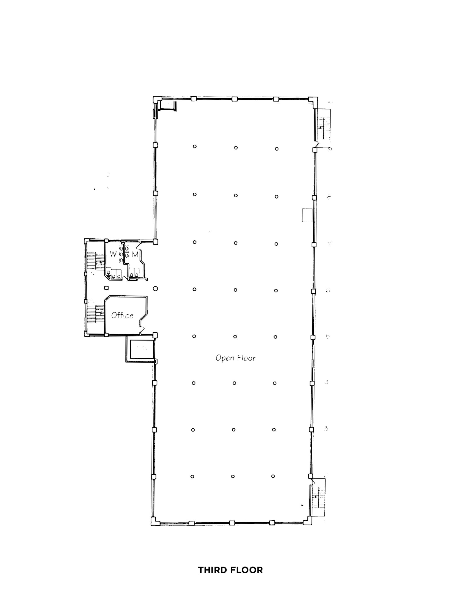
| 3rd Floor | 21,240 SF | Industrial | - | Now |
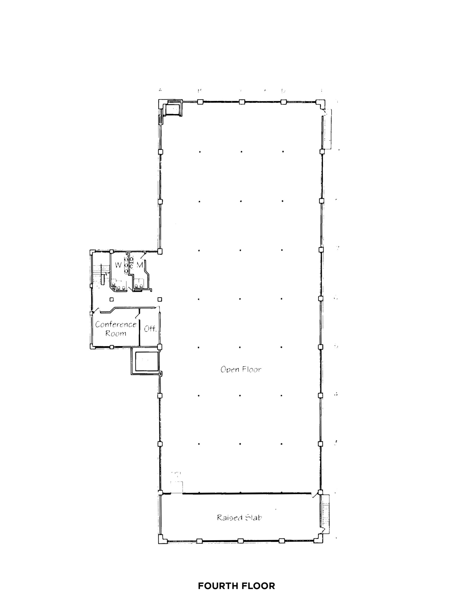
| 4th Floor | 21,240 SF | Industrial | - | Now |
Basement
| Size |
| 10,500 SF |
| Space Use |
| Industrial |
| Build-Out |
| - |
| Available |
| Now |
1st Floor
| Size |
| 35,192 SF |
| Space Use |
| Industrial |
| Build-Out |
| - |
| Available |
| Now |
2nd Floor
| Size |
| 21,240 SF |
| Space Use |
| Industrial |
| Build-Out |
| - |
| Available |
| Now |
3rd Floor
| Size |
| 21,240 SF |
| Space Use |
| Industrial |
| Build-Out |
| - |
| Available |
| Now |
4th Floor
| Size |
| 21,240 SF |
| Space Use |
| Industrial |
| Build-Out |
| - |
| Available |
| Now |
Basement
| Size | 10,500 SF |
| Space Use | Industrial |
| Build-Out | - |
| Available | Now |
Option to subdivide or lease the entire building. The lease term is negotiable. Target uses include Farming: Data Center, Bitcoin Mining, Cannabis, or Manufacturing
1st Floor
| Size | 35,192 SF |
| Space Use | Industrial |
| Build-Out | - |
| Available | Now |
Option to subdivide or lease the entire building. The lease term is negotiable. Target uses include Farming: Data Center, Bitcoin Mining, Cannabis, or Manufacturing
2nd Floor
| Size | 21,240 SF |
| Space Use | Industrial |
| Build-Out | - |
| Available | Now |
Option to subdivide or lease the entire building. The lease term is negotiable. Target uses include Farming: Data Center, Bitcoin Mining, Cannabis, or Manufacturing
3rd Floor
| Size | 21,240 SF |
| Space Use | Industrial |
| Build-Out | - |
| Available | Now |
Option to subdivide or lease the entire building. The lease term is negotiable. Target uses include Farming: Data Center, Bitcoin Mining, Cannabis, or Manufacturing
4th Floor
| Size | 21,240 SF |
| Space Use | Industrial |
| Build-Out | - |
| Available | Now |
Option to subdivide or lease the entire building. The lease term is negotiable. Target uses include Farming: Data Center, Bitcoin Mining, Cannabis, or Manufacturing
Property Taxes
| Parcel Numbers | Improvements Assessment | $153,403 | |
| Land Assessment | $35,463 | Total Assessment | $188,866 |
Property Taxes
Presented by
Tri-County Incentives! | 101 N Washington St
Hmm, there seems to have been an error sending your message. Please try again.
Thanks! Your message was sent.











