Enter your email to login or create a free account
This feature is unavailable at the moment.
We apologize, but the feature you are trying to access is currently unavailable. We are aware of this issue and our team is working hard to resolve the matter.
Please check back in a few minutes. We apologize for the inconvenience.
- LoopNet Team
1014 Broadway
Columbus, GA 31901
Formerly Barberitos — Prime Restaurant Space · Property For Lease

Highlights
- Formerly home to Barberitos — prime turn-key restaurant opportunity
- Exceptional foot traffic from a variety of community events, including Market Days and Spring & Fall Friday Night Concert Series
- Equipped with grease trap, vent hood, and walk-in cooler
- Located in highly active Uptown Columbus on Broadway
- Fully built-out restaurant space with a commercial kitchen
- Ideal for a seamless transition into your restaurant concept
Property Facts
| Property Type | Retail | Gross Leasable Area | 2,600 SF |
| Property Subtype | Storefront Retail/Residential | Year Built/Renovated | 1900/1995 |
| Property Type | Retail |
| Property Subtype | Storefront Retail/Residential |
| Gross Leasable Area | 2,600 SF |
| Year Built/Renovated | 1900/1995 |
About the Property
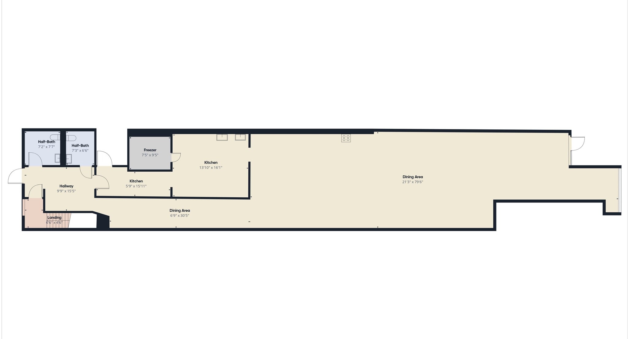
Formerly home to Barberitos, this is a prime opportunity to open a turn-key restaurant in one of Columbus’s most active and sought-after locations. Situated in vibrant Uptown Columbus on Broadway, the property benefits from exceptional foot traffic and a variety of community events, including Market Days and the popular Spring and Fall Friday Night Concert Series. The location is also just steps from Columbus State University’s Uptown campus, the RiverCenter for the Performing Arts, the historic Springer Opera House, as well as surrounding retail, shopping, and residential districts. This fully built-out restaurant space features a functional commercial kitchen, efficient service line, and dedicated dining area. The kitchen is fully equipped with a grease trap, vent hood, and walk-in cooler—offering a seamless transition for your restaurant concept.
- Restaurant
Attachments
| 1014 Broadway _Former Barberitos_ |
Listing ID: 39617380
Date on Market: 2/28/2026
Last Updated:
Address: 1014 Broadway, Columbus, GA 31901
The Uptown Columbus Retail Property at 1014 Broadway, Columbus, GA 31901 is no longer being advertised on LoopNet.com. Contact the broker for information on availability.
RETAIL PROPERTIES IN NEARBY NEIGHBORHOODS
- North Columbus Commercial Real Estate Properties
- Uptown Columbus Commercial Real Estate Properties
- Midtown Columbus Commercial Real Estate Properties
- East Columbus Commercial Real Estate Properties
- Southeast Columbus Commercial Real Estate Properties
- Old Town Commercial Real Estate Properties
- Downtown Columbus Commercial Real Estate Properties
NEARBY LISTINGS
- 233 12th St, Columbus GA
- 1523 Veterans Pky, Columbus GA
- 1334 13th St, Columbus GA
- 2085 Phillips St, Columbus GA
- 3615 S Railroad St, Phenix City AL
- 3700 Victory Dr, Columbus GA
- 1041 Highway 280/431 Byp, Phenix City AL
- 5624 Whitesville Rd, Columbus GA
- 1714 Manchester Expy, Columbus GA
- 911 15th St, Columbus GA
- 1200 13th St, Columbus GA
- 1607 S Lumpkin Rd, Columbus GA
- 309 14th St, Columbus GA
- 5900 River Rd, Columbus GA
- 2421 Brookstone Centre Pky, Columbus GA
