Log In/Sign Up
Your email has been sent.
1046 Mar Walt Dr 25,120 SF Vacant Office Building Fort Walton Beach, FL 32547 $9,500,000 ($378.18/SF)



Executive Summary
25,120sf of New Construction, Class "A" Medical Space located adjacent to Fort Walton Beach Medical Center Campus in Fort Walton Beach, FL. This 4 story office setting has tremendous curb appeal and overall superior quality. This state of the art facility has large windows throughout creating the opportunity for amazing office environments for so many different uses. The open floor plans give opportunity to create the space envisioned, and this building also offers over 90 parking spaces to include a Tesla charging station. This facility is almost complete and ready for interior finishes
Property Facts
Sale Type
Investment or Owner User
Property Type
Office
Property Subtype
Medical
Building Size
25,120 SF
Building Class
B
Year Built
2020
Price
$9,500,000
Price Per SF
$378.18
Percent Leased
Vacant
Tenancy
Multiple
Building Height
4 Stories
Typical Floor Size
6,280 SF
Building FAR
0.36
Lot Size
1.58 AC
Zoning
COM - Commercial
Parking
90 Spaces (3.58 Spaces per 1,000 SF Leased)
Amenities
- Conferencing Facility
- Reception
- Car Charging Station
- Natural Light
- Open-Plan
- Wi-Fi
- Air Conditioning
Space Availability
- Space
- Size
- Space Use
- Condition
- Available
- 1st Floor
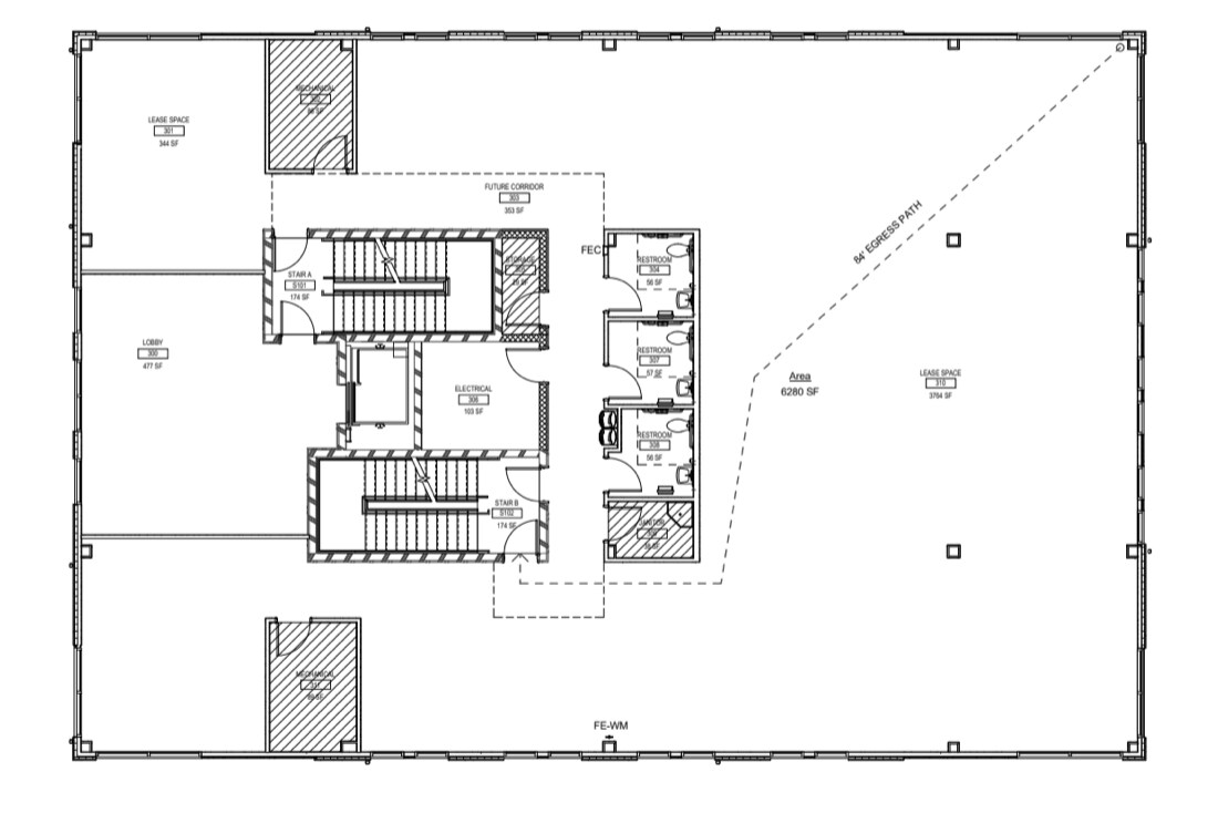
- 6,280 SF
- Office
- Shell Space
- Now
| Space | Size | Space Use | Condition | Available |
| 1st Floor | 6,280 SF | Office | Shell Space | Now |
| 2nd Floor | 6,280 SF | Office | Shell Space | Now |
| 3rd Floor | 6,280 SF | Office | Shell Space | Now |
| 4th Floor | 6,280 SF | Office | Shell Space | Now |
1st Floor
| Size |
| 6,280 SF |
| Space Use |
| Office |
| Condition |
| Shell Space |
| Available |
| Now |
2nd Floor
| Size |
| 6,280 SF |
| Space Use |
| Office |
| Condition |
| Shell Space |
| Available |
| Now |
3rd Floor
| Size |
| 6,280 SF |
| Space Use |
| Office |
| Condition |
| Shell Space |
| Available |
| Now |
4th Floor
| Size |
| 6,280 SF |
| Space Use |
| Office |
| Condition |
| Shell Space |
| Available |
| Now |
1 of 4
Videos
Matterport 3D Exterior
Matterport 3D Tour
Photos
Street View
Street
Map
2nd Floor
| Size | 6,280 SF |
| Space Use | Office |
| Condition | Shell Space |
| Available | Now |
1 of 1
Videos
Matterport 3D Exterior
Matterport 3D Tour
Photos
Street View
Street
Map
3rd Floor
| Size | 6,280 SF |
| Space Use | Office |
| Condition | Shell Space |
| Available | Now |
1 of 1
Videos
Matterport 3D Exterior
Matterport 3D Tour
Photos
Street View
Street
Map
4th Floor
| Size | 6,280 SF |
| Space Use | Office |
| Condition | Shell Space |
| Available | Now |
1 1
Moderately walkable
60/100
Moderately drivable
70/100
Limited public transit
30/100
Moderately bikeable
60/100
Property Taxes
| Parcel Numbers | Improvements Assessment | $3,272,008 | |
| Land Assessment | $216,259 | Total Assessment | $3,488,267 |
Property Taxes
Parcel Numbers
Land Assessment
$216,259
Improvements Assessment
$3,272,008
Total Assessment
$3,488,267
1 of 10
Videos
Matterport 3D Exterior
Matterport 3D Tour
Photos
Street View
Street
Map
1 of 1
Presented by
1046 Mar Walt Dr
Already a member? Log In
Hmm, there seems to have been an error sending your message. Please try again.
Thanks! Your message was sent.







