Your email has been sent.
SUBLEASE HIGHLIGHTS
- 12,665 SF Available for Sublease
- 18' Clear Height
- Sublease Thru May 31st, 2028
- 2,781 SF of Office with 2 Dock High Doors and 2 Ramps
- Available as Separate of Contiguous Suites
FEATURES
ALL AVAILABLE SPACES(2)
Display Rental Rate as
- SPACE
- SIZE
- TERM
- RENTAL RATE
- SPACE USE
- CONDITION
- AVAILABLE
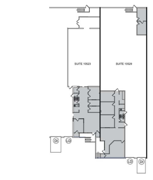
Available as Separate or Contiguous Suites Front Park and Front Loading Quick Access to I-35 Sublease Thru May 31st, 2028
- Sublease space available from current tenant
- Space is in Excellent Condition
- 1 Dock High Door
- 18’ Clear
- Includes 1,133 SF of dedicated office space
- 1,133 SF of Office
- 1 Ramp
Available as Separate or Contiguous Suites Front Park and Front Loading Quick Access to I-35 Sublease Thru May 31st, 2028
- Sublease space available from current tenant
- Space is in Excellent Condition
- 1 Loading Dock
- 1 Dock High Door
- 18’ Clear
- Includes 1,648 SF of dedicated office space
- 1 Drive Bay
- 1,648 SF of Office
- 1 Ramp
| Space | Size | Term | Rental Rate | Space Use | Condition | Available |
| 1st Floor - 10523 | 6,188 SF | Negotiable | $9.95 /SF/YR $0.83 /SF/MO $61,571 /YR $5,131 /MO | Flex | Full Build-Out | Now |
| 1st Floor - 10529 | 6,477 SF | May 2028 | $9.95 /SF/YR $0.83 /SF/MO $64,446 /YR $5,371 /MO | Flex | Full Build-Out | Now |
1st Floor - 10523
| Size |
| 6,188 SF |
| Term |
| Negotiable |
| Rental Rate |
| $9.95 /SF/YR $0.83 /SF/MO $61,571 /YR $5,131 /MO |
| Space Use |
| Flex |
| Condition |
| Full Build-Out |
| Available |
| Now |
1st Floor - 10529
| Size |
| 6,477 SF |
| Term |
| May 2028 |
| Rental Rate |
| $9.95 /SF/YR $0.83 /SF/MO $64,446 /YR $5,371 /MO |
| Space Use |
| Flex |
| Condition |
| Full Build-Out |
| Available |
| Now |
1st Floor - 10523
| Size | 6,188 SF |
| Term | Negotiable |
| Rental Rate | $9.95 /SF/YR |
| Space Use | Flex |
| Condition | Full Build-Out |
| Available | Now |
Available as Separate or Contiguous Suites Front Park and Front Loading Quick Access to I-35 Sublease Thru May 31st, 2028
- Sublease space available from current tenant
- Includes 1,133 SF of dedicated office space
- Space is in Excellent Condition
- 1,133 SF of Office
- 1 Dock High Door
- 1 Ramp
- 18’ Clear
1st Floor - 10529
| Size | 6,477 SF |
| Term | May 2028 |
| Rental Rate | $9.95 /SF/YR |
| Space Use | Flex |
| Condition | Full Build-Out |
| Available | Now |
Available as Separate or Contiguous Suites Front Park and Front Loading Quick Access to I-35 Sublease Thru May 31st, 2028
- Sublease space available from current tenant
- Includes 1,648 SF of dedicated office space
- Space is in Excellent Condition
- 1 Drive Bay
- 1 Loading Dock
- 1,648 SF of Office
- 1 Dock High Door
- 1 Ramp
- 18’ Clear
PROPERTY OVERVIEW
12,665 SF available for Sublease starting on 11/1/2025 thru 5/31/2028. 2 dock high doors, 2 ramps with 18' clear height and immediate access to major highways.



