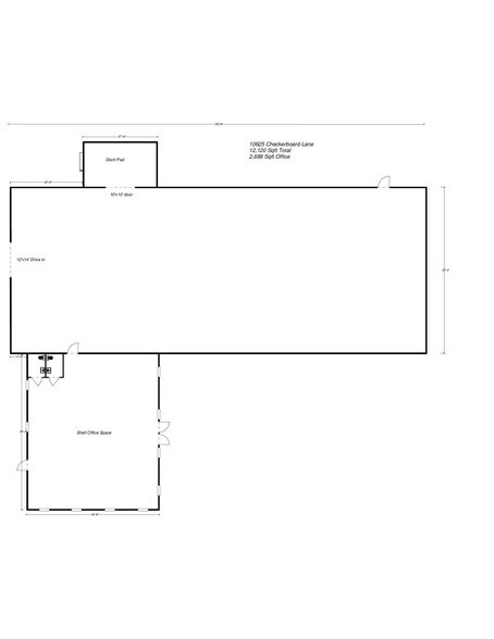
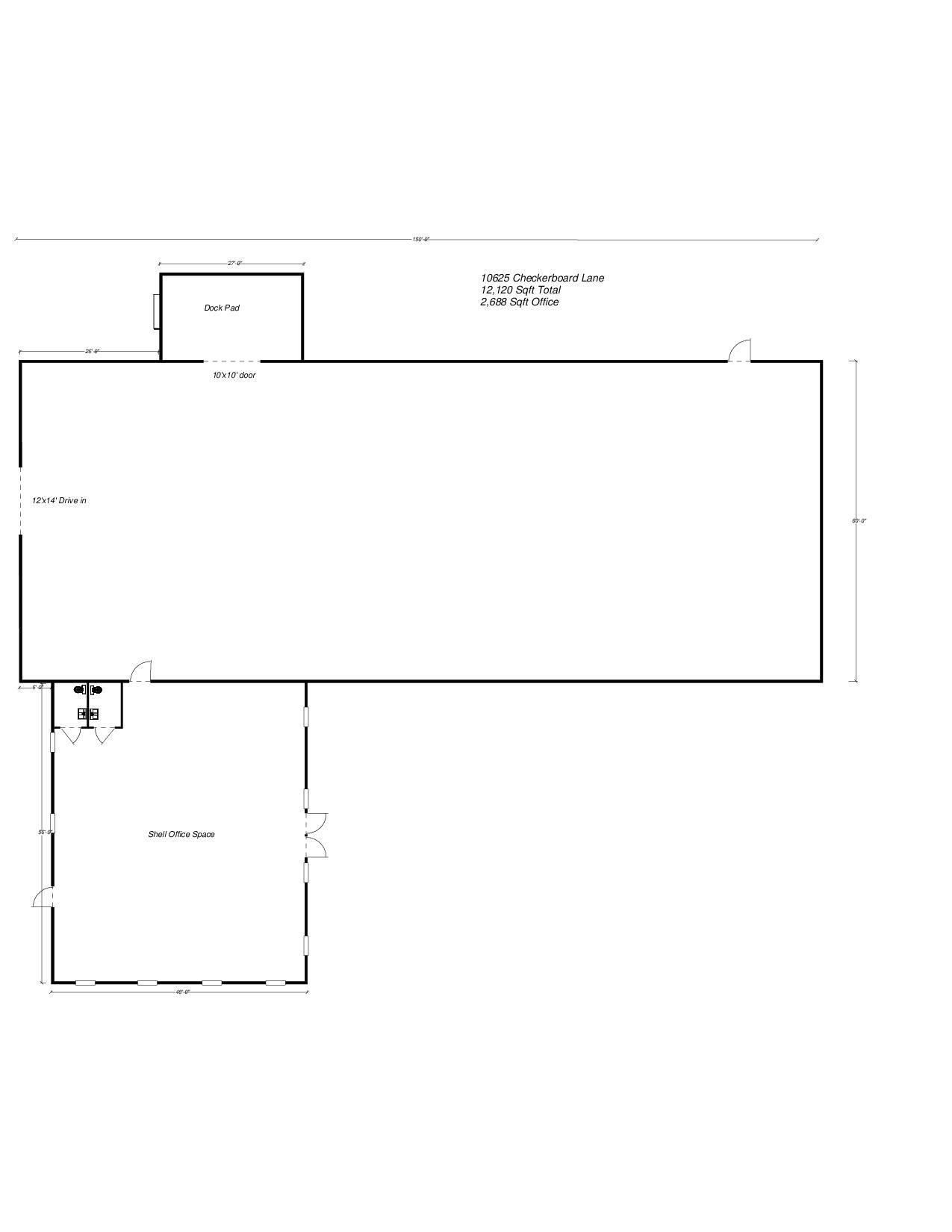
10625 Checkerboard Ln | Knoxville, TN 37932
This feature is unavailable at the moment.
We apologize, but the feature you are trying to access is currently unavailable. We are aware of this issue and our team is working hard to resolve the matter.
Please check back in a few minutes. We apologize for the inconvenience.
- LoopNet Team
This Property is no longer advertised on LoopNet.com.
10625 Checkerboard Ln
Knoxville, TN 37932
Property For Lease

PROPERTY OVERVIEW
12,120 sf total space including 2,688 sf office. Warehouse includes 12’ x 14 drive-in door, a 48” dock, 17’ – 22’ eaves, three phase electric. Office to be built out. Modified Gross Lease.
PROPERTY FACTS
| Property Type | Industrial | Year Built | 2021 |
| Rentable Building Area | 10,871 SF |
| Property Type | Industrial |
| Rentable Building Area | 10,871 SF |
| Year Built | 2021 |
Listing ID: 21332042
Date on Market: 10/26/2020
Last Updated:
Address: 10625 Checkerboard Ln, Knoxville, TN 37932
The Industrial Property at 10625 Checkerboard Ln, Knoxville, TN 37932 is no longer being advertised on LoopNet.com. Contact the broker for information on availability.
INDUSTRIAL PROPERTIES IN NEARBY NEIGHBORHOODS
- Uptown Knoxville Commercial Real Estate
- Marble City Commercial Real Estate
- The Strip Commercial Real Estate
- Emory Place Commercial Real Estate
- Fourth & Gill Commercial Real Estate
- Fort Sanders Commercial Real Estate
- South Waterfront Commercial Real Estate
- Mechanicsville Commercial Real Estate
- Old City Commercial Real Estate
- Morningside Commercial Real Estate
- Old North Knoxville Commercial Real Estate
- West Knoxville Commercial Real Estate
- North Knoxville Commercial Real Estate
- Downtown Knoxville Commercial Real Estate
- South Knoxville Commercial Real Estate
NEARBY LISTINGS
- 150 Lovell Rd, Knoxville TN
- 8373 Kingston Pike, Knoxville TN
- 8609 Kingston Pike, Knoxville TN
- 10427 Cogdill Rd, Knoxville TN
- 10201 Parkside Dr, Knoxville TN
- 255 N Peters Rd, Knoxville TN
- 10821-10852 Hardin Valley Rd, Knoxville TN
- 110 Perimeter Park Rd, Knoxville TN
- 0 Corridor Park Blvd, Knoxville TN
- 0 Corridor Park Blvd, Knoxville TN
- 8320 E Walker Springs Ln, Knoxville TN
- 109-297 N Seven Oaks Dr, Knoxville TN
- 8930 Cross Park Dr, Knoxville TN
- 9220 Park West Blvd, Knoxville TN
- 9724 Kingston Pike, Knoxville TN
1 of 1
VIDEOS
MATTERPORT 3D EXTERIOR
MATTERPORT 3D TOUR
PHOTOS
STREET VIEW
STREET
MAP

Link copied
Your LoopNet account has been created!
Thank you for your feedback.
Please Share Your Feedback
We welcome any feedback on how we can improve LoopNet to better serve your needs.X
{{ getErrorText(feedbackForm.starRating, "rating") }}
255 character limit ({{ remainingChars() }} charactercharacters remainingover)
{{ getErrorText(feedbackForm.msg, "rating") }}
{{ getErrorText(feedbackForm.fname, "first name") }}
{{ getErrorText(feedbackForm.lname, "last name") }}
{{ getErrorText(feedbackForm.phone, "phone number") }}
{{ getErrorText(feedbackForm.phonex, "phone extension") }}
{{ getErrorText(feedbackForm.email, "email address") }}
You can provide feedback any time using the Help button at the top of the page.