Log In/Sign Up
Your email has been sent.
HIGHLIGHTS
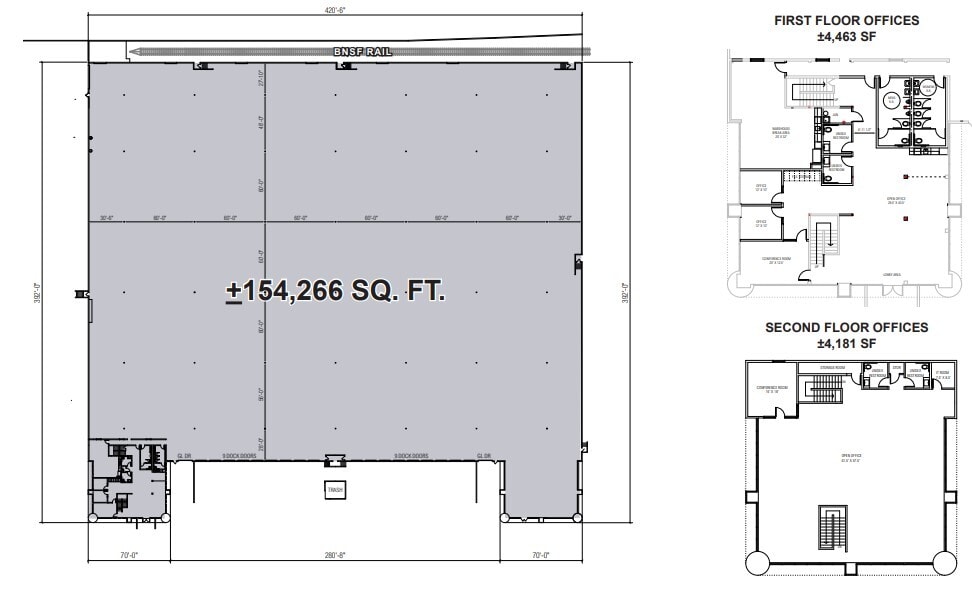
- ±154,266 SF Building on ±6.34 acres
- 3 Ply Roof
- 114 Auto Parking Spaces
- 2 Silos - 85,000 lb. and 125,000 lb. capacity
FEATURES
Clear Height
24’
Drive In Bays
2
Exterior Dock Doors
18
Levelers
18
Standard Parking Spaces
114
ALL AVAILABLE SPACE(1)
Display Rental Rate as
- SPACE
- SIZE
- TERM
- RENTAL RATE
- SPACE USE
- CONDITION
- AVAILABLE
Available Q3 2025. Call to show.
- Includes 8,644 SF of dedicated office space
- 18 Loading Docks
| Space | Size | Term | Rental Rate | Space Use | Condition | Available |
| 1st Floor | 154,266 SF | Negotiable | Upon Request Upon Request Upon Request Upon Request | Industrial | Full Build-Out | Now |
1st Floor
| Size |
| 154,266 SF |
| Term |
| Negotiable |
| Rental Rate |
| Upon Request Upon Request Upon Request Upon Request |
| Space Use |
| Industrial |
| Condition |
| Full Build-Out |
| Available |
| Now |
1 of 1
VIDEOS
MATTERPORT 3D EXTERIOR
MATTERPORT 3D TOUR
PHOTOS
STREET VIEW
STREET
MAP
1st Floor
| Size | 154,266 SF |
| Term | Negotiable |
| Rental Rate | Upon Request |
| Space Use | Industrial |
| Condition | Full Build-Out |
| Available | Now |
Available Q3 2025. Call to show.
- Includes 8,644 SF of dedicated office space
- 18 Loading Docks
MANUFACTURING FACILITY FACTS
Building Size
154,266 SF
Lot Size
6.34 AC
Year Built
1984
Construction
Reinforced Concrete
Lighting
LED
Power Supply
Amps: 4,000
Zoning
IP - Industrial Park
SELECT TENANTS
- FLOOR
- TENANT NAME
- INDUSTRY
- 1st
- Elite Logistic and Fulfillment
- Professional, Scientific, and Technical Services
1 1
1 of 4
VIDEOS
MATTERPORT 3D EXTERIOR
MATTERPORT 3D TOUR
PHOTOS
STREET VIEW
STREET
MAP
1 of 1
Presented by
10660 Acacia St
Already a member? Log In
Hmm, there seems to have been an error sending your message. Please try again.
Thanks! Your message was sent.





