Log In/Sign Up
Enter your email to login or create a free account
This feature is unavailable at the moment.
We apologize, but the feature you are trying to access is currently unavailable. We are aware of this issue and our team is working hard to resolve the matter.
Please check back in a few minutes. We apologize for the inconvenience.
- LoopNet Team
This Office Property is no longer advertised on LoopNet.com.
1070 S Main St
Holly Springs, NC 27540
Office Property For Sale

Investment Highlights
- Location: Holly Springs' proximity to the Research Triangle Park (RTP) and major cities like Raleigh and Durham makes it a strategic location.
- Collaborative Environment: Proximity to other medical facilities and practices fosters a collaborative atmosphere.
- Local Support and Amenities: Access to nearby amenities like pharmacies, hospitals, dining options, retail spaces can add value to the medical office
- Growing Community: The town's population growth translates to increased demand for healthcare services.
- Modern Facilities: Up-to-date infrastructure and modern amenities can be a significant draw for medical professionals
- The availability of different-sized units within the building allows for flexibility in accommodating various medical specialties.
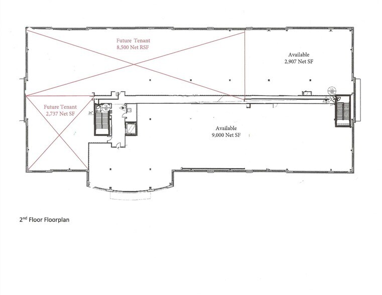
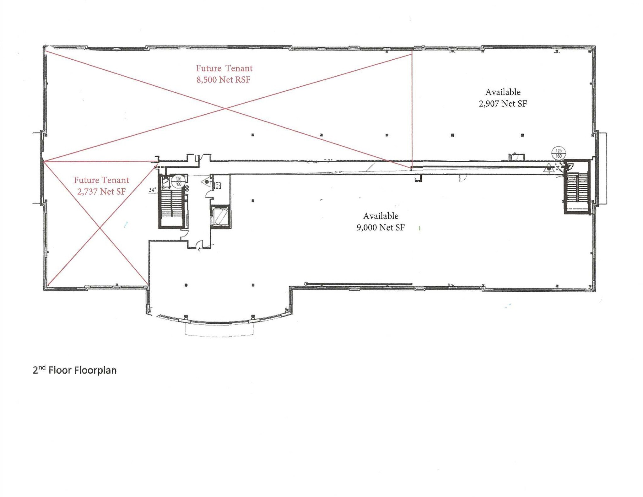
Property Facts
Property Type
Office
Property Subtype
Medical
Building Size
48,000 SF
Building Class
B
Year Built
2024
Tenancy
Multiple
Building Height
2 Stories
Typical Floor Size
24,000 SF
Slab To Slab
15’
Building FAR
0.31
Lot Size
3.54 AC
Zoning
CB - Commercial Business
Parking
240 Spaces (5 Spaces per 1,000 SF Leased)
Amenities
- 24 Hour Access
- Signage
- Wheelchair Accessible
- Fiber Optic Internet
Property Taxes
| Parcel Number | 0648.12-86-1024-000 | Improvements Assessment | $2,554,762 |
| Land Assessment | $20 | Total Assessment | $2,554,782 |
Property Taxes
Parcel Number
0648.12-86-1024-000
Land Assessment
$20
Improvements Assessment
$2,554,762
Total Assessment
$2,554,782
Listing ID: 30161331
Date on Market: 11/24/2023
Last Updated:
Address: 1070 S Main St, Holly Springs, NC 27540
The Office Property at 1070 S Main St, Holly Springs, NC 27540 is no longer being advertised on LoopNet.com. Contact the broker for information on availability.
OFFICE PROPERTIES IN NEARBY NEIGHBORHOODS
NEARBY LISTINGS
1 of 1
Videos
Matterport 3D Exterior
Matterport 3D Tour
Photos
Street View
Street
Map

Link copied
Your LoopNet account has been created!
Thank you for your feedback.
Please Share Your Feedback
We welcome any feedback on how we can improve LoopNet to better serve your needs.X
{{ getErrorText(feedbackForm.starRating, "rating") }}
255 character limit ({{ remainingChars() }} charactercharacters remainingover)
{{ getErrorText(feedbackForm.msg, "rating") }}
{{ getErrorText(feedbackForm.fname, "first name") }}
{{ getErrorText(feedbackForm.lname, "last name") }}
{{ getErrorText(feedbackForm.phone, "phone number") }}
{{ getErrorText(feedbackForm.phonex, "phone extension") }}
{{ getErrorText(feedbackForm.email, "email address") }}
You can provide feedback any time using the Help button at the top of the page.