Log In/Sign Up
Your email has been sent.
HIGHLIGHTS
- Inland Empire West market availability
- Two dock-high doors
- Warehouse skylights
- 24’ Building clear height
- Sprinkler system (0.45 GPM/3,000 SF)
- Immediate access to I-15 and I-10 freeways
FEATURES
Clear Height
24’
Drive In Bays
8
Interior Dock Doors
16
Exterior Dock Doors
8
Levelers
16
Standard Parking Spaces
260
ALL AVAILABLE SPACE(1)
Display Rental Rate as
- SPACE
- SIZE
- TERM
- RENTAL RATE
- SPACE USE
- CONDITION
- AVAILABLE
24' Clear Height
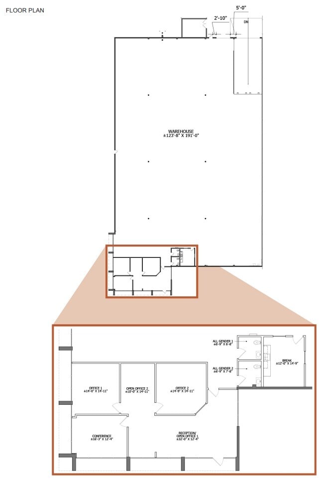
- Includes 1,985 SF of dedicated office space
- 2 Loading Docks
- 1 Drive Bay
| Space | Size | Term | Rental Rate | Space Use | Condition | Available |
| 1st Floor - H | 25,406 SF | Negotiable | Upon Request Upon Request Upon Request Upon Request | Industrial | Full Build-Out | Now |
1st Floor - H
| Size |
| 25,406 SF |
| Term |
| Negotiable |
| Rental Rate |
| Upon Request Upon Request Upon Request Upon Request |
| Space Use |
| Industrial |
| Condition |
| Full Build-Out |
| Available |
| Now |
1 of 1
VIDEOS
MATTERPORT 3D EXTERIOR
MATTERPORT 3D TOUR
PHOTOS
STREET VIEW
STREET
MAP
1st Floor - H
| Size | 25,406 SF |
| Term | Negotiable |
| Rental Rate | Upon Request |
| Space Use | Industrial |
| Condition | Full Build-Out |
| Available | Now |
24' Clear Height
- Includes 1,985 SF of dedicated office space
- 1 Drive Bay
- 2 Loading Docks
WAREHOUSE FACILITY FACTS
Building Size
122,320 SF
Lot Size
6.06 AC
Year Built
1986
Energy Star
77
Construction
Masonry
Sprinkler System
Wet
Power Supply
Amps: 200 Volts: 277-480 Phase: 3 Wire: 3
Zoning
IP - Distribution Warehouse
1 of 9
VIDEOS
MATTERPORT 3D EXTERIOR
MATTERPORT 3D TOUR
PHOTOS
STREET VIEW
STREET
MAP
Presented by
10825 7th St
Already a member? Log In
Hmm, there seems to have been an error sending your message. Please try again.
Thanks! Your message was sent.






