Your email has been sent.
Highlights
- Spacious Private Offices with Lots of Natural Light
- Two Reserved Executive Parking Spaces Per Floor in Attached, Covered Parking Garage
- Full Floor Condo With 360 Degree Windows
- New Laminate Flooring or Carpet with 5 Year Lease
- Window Wall Conference Room
All Available Spaces(2)
Display Rental Rate as
- Space
- Size
- Term
- Rental Rate
- Space Use
- Build-Out
- Available
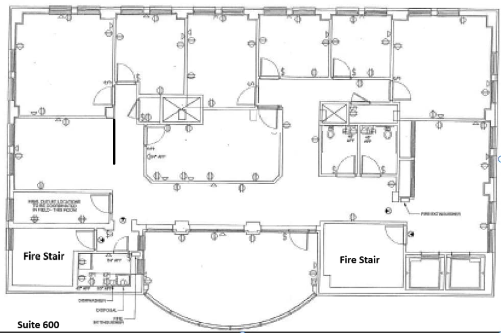
Discover a prime opportunity to lease the entire 6th floor at 109 Capitol Street, Suite 600. This private, single-tenant floor offers a secure and spacious layout with large windows that provide abundant natural light. A highlight of the suite is the stunning window-wall conference room overlooking downtown Charleston, perfect for hosting clients and inspiring productivity. New flooring will be installed with a five-year lease. Two executive parking spaces included in attached, covered parking garage. Other parking arrangements can be made at an additional monthly cost. Available as Residential pre-sale. Co-listed with Margo Teeter: https://www.exprealty.com/charleston-wv-real-estate/ste-600-109-capitol-st
- Rate includes utilities, building services and property expenses
- 7 Private Offices
- Space is in Excellent Condition
- Reception Area
- Print/Copy Room
- Drop Ceilings
- After Hours HVAC Available
- Accent Lighting
- Wheelchair Accessible
- Located in the heart of downtown Charleston
- Window wall conference room
- Fully Built-Out as Standard Office
- 1 Conference Room
- Central Air and Heating
- Elevator Access
- Private Restrooms
- Natural Light
- Shower Facilities
- Smoke Detector
- New laminate flooring or carpet with 5 year lease
- Ten minutes from Yeager Airport
- Two executive parking spaces in attached garage
Exclusive Office Space for Lease: 10th Floor, 109 Capitol Street Discover a prime opportunity to lease the entire 10th floor at 109 Capitol Street, Suite 1000. This private, single-tenant space offers a secure and spacious layout with large 360 degree windows that provide abundant natural light in every office. A standout feature is the window-wall conference room overlooking the city—an inspiring setting for board meetings, client presentations, or collaborative sessions. The suite combines prestige, functionality, and modern finishes, making it an ideal choice for corporate headquarters, professional firms, tech startups, or creative agencies. Two reserved parking spaces in the attached garage. Additional parking arrangements can be included in the lease. New flooring with 5-year lease. Available as Residential pre-sale. Co-listed with Margo Teeter: https://www.exprealty.com/charleston-wv-real-estate/ste-1000-109-capitol-st
- Rate includes utilities, building services and property expenses
- 7 Private Offices
- Space is in Excellent Condition
- Reception Area
- Print/Copy Room
- Drop Ceilings
- After Hours HVAC Available
- Smoke Detector
- Stunning city views from every office
- Two executive parking spaces in the attached garag
- Fully Built-Out as Standard Office
- 1 Conference Room
- Central Air and Heating
- Elevator Access
- Private Restrooms
- Natural Light
- Emergency Lighting
- New Flooring with 5 Year Leaes
- Window wall conference room
- Full floor suite with 360 degree windows
| Space | Size | Term | Rental Rate | Space Use | Build-Out | Available |
| 6th Floor, Ste 600 | 3,500 SF | Negotiable | $20.00 /SF/YR $1.67 /SF/MO $70,000 /YR $5,833 /MO | Office | Full Build-Out | Now |
| 10th Floor, Ste 1000 | 3,500 SF | Negotiable | $21.00 /SF/YR $1.75 /SF/MO $73,500 /YR $6,125 /MO | Office | Full Build-Out | Now |
6th Floor, Ste 600
| Size |
| 3,500 SF |
| Term |
| Negotiable |
| Rental Rate |
| $20.00 /SF/YR $1.67 /SF/MO $70,000 /YR $5,833 /MO |
| Space Use |
| Office |
| Build-Out |
| Full Build-Out |
| Available |
| Now |
10th Floor, Ste 1000
| Size |
| 3,500 SF |
| Term |
| Negotiable |
| Rental Rate |
| $21.00 /SF/YR $1.75 /SF/MO $73,500 /YR $6,125 /MO |
| Space Use |
| Office |
| Build-Out |
| Full Build-Out |
| Available |
| Now |
6th Floor, Ste 600
| Size | 3,500 SF |
| Term | Negotiable |
| Rental Rate | $20.00 /SF/YR |
| Space Use | Office |
| Build-Out | Full Build-Out |
| Available | Now |
Discover a prime opportunity to lease the entire 6th floor at 109 Capitol Street, Suite 600. This private, single-tenant floor offers a secure and spacious layout with large windows that provide abundant natural light. A highlight of the suite is the stunning window-wall conference room overlooking downtown Charleston, perfect for hosting clients and inspiring productivity. New flooring will be installed with a five-year lease. Two executive parking spaces included in attached, covered parking garage. Other parking arrangements can be made at an additional monthly cost. Available as Residential pre-sale. Co-listed with Margo Teeter: https://www.exprealty.com/charleston-wv-real-estate/ste-600-109-capitol-st
- Rate includes utilities, building services and property expenses
- Fully Built-Out as Standard Office
- 7 Private Offices
- 1 Conference Room
- Space is in Excellent Condition
- Central Air and Heating
- Reception Area
- Elevator Access
- Print/Copy Room
- Private Restrooms
- Drop Ceilings
- Natural Light
- After Hours HVAC Available
- Shower Facilities
- Accent Lighting
- Smoke Detector
- Wheelchair Accessible
- New laminate flooring or carpet with 5 year lease
- Located in the heart of downtown Charleston
- Ten minutes from Yeager Airport
- Window wall conference room
- Two executive parking spaces in attached garage
10th Floor, Ste 1000
| Size | 3,500 SF |
| Term | Negotiable |
| Rental Rate | $21.00 /SF/YR |
| Space Use | Office |
| Build-Out | Full Build-Out |
| Available | Now |
Exclusive Office Space for Lease: 10th Floor, 109 Capitol Street Discover a prime opportunity to lease the entire 10th floor at 109 Capitol Street, Suite 1000. This private, single-tenant space offers a secure and spacious layout with large 360 degree windows that provide abundant natural light in every office. A standout feature is the window-wall conference room overlooking the city—an inspiring setting for board meetings, client presentations, or collaborative sessions. The suite combines prestige, functionality, and modern finishes, making it an ideal choice for corporate headquarters, professional firms, tech startups, or creative agencies. Two reserved parking spaces in the attached garage. Additional parking arrangements can be included in the lease. New flooring with 5-year lease. Available as Residential pre-sale. Co-listed with Margo Teeter: https://www.exprealty.com/charleston-wv-real-estate/ste-1000-109-capitol-st
- Rate includes utilities, building services and property expenses
- Fully Built-Out as Standard Office
- 7 Private Offices
- 1 Conference Room
- Space is in Excellent Condition
- Central Air and Heating
- Reception Area
- Elevator Access
- Print/Copy Room
- Private Restrooms
- Drop Ceilings
- Natural Light
- After Hours HVAC Available
- Emergency Lighting
- Smoke Detector
- New Flooring with 5 Year Leaes
- Stunning city views from every office
- Window wall conference room
- Two executive parking spaces in the attached garag
- Full floor suite with 360 degree windows
Property Facts
Select Tenants
- Floor
- Tenant Name
- Industry
- 7th
- Ray Winton & Kelley
- Professional, Scientific, and Technical Services
- 1st
- West Virginia State University
- Educational Services
Presented by
Renaissance Tower | 109 Capitol St
Hmm, there seems to have been an error sending your message. Please try again.
Thanks! Your message was sent.









