Your email has been sent.
1120 Park Ave - Co-Op DOCTORS /MEDICAL OFFICE for SALE 1,575 SF Office/Medical Condo Unit Offered at $600,000 in New York, NY 10128



Investment Highlights
- This is a Co-Op Sale Listing.
Executive Summary
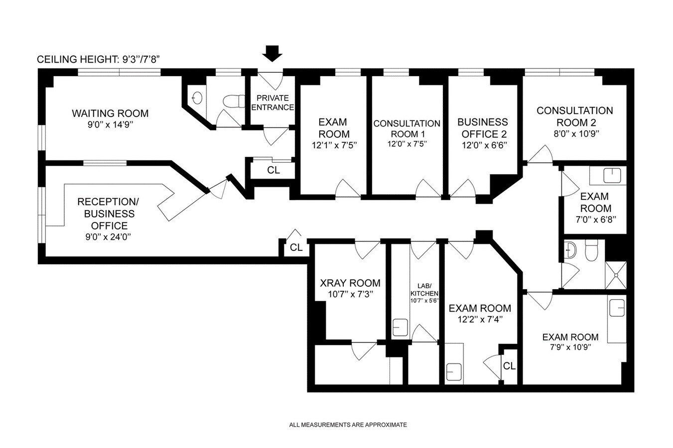
Wonderful Park Avenue Medical Office (1120 Park Ave. @ East 90th Street) For Sale in Excellent Condition.There is a spacious windowed waiting/reception/business area with powder room off of the private street entrance. There are 4 exam rooms, additional private business office, 2 consultation offices, lab/kitchen, X-Ray Room, and 2nd bathroom with stall shower in the rear of the office. Perfect office for large medical practice. Outstanding Features: Many Windows facing Park Ave. and East 90th Street affording excellent natural light, Central A/C, Prestigious Park Ave. Co-op, Private Street Entrance, and Great Location.
1 Unit Available
Unit 1C
| Unit Size | 1,575 SF | Condo Use | Office/Medical |
| Price | $600,000 | Sale Type | Owner User |
| Price Per SF | $380.95 |
| Unit Size | 1,575 SF |
| Price | $600,000 |
| Price Per SF | $380.95 |
| Condo Use | Office/Medical |
| Sale Type | Owner User |
Description
Wonderful Park Avenue Medical Office (1120 Park Ave. @ East 90th Street) For Sale in Excellent Condition.There is a spacious windowed waiting/reception/business area with powder room off of the private street entrance. There are 4 exam rooms, additional private business office, 2 consultation offices, lab/kitchen, X-Ray Room, and 2nd bathroom with stall shower in the rear of the office. Perfect office for large medical practice. Outstanding Features: Many Windows facing Park Ave. and East 90th Street affording excellent natural light, Central A/C, Prestigious Park Ave. Co-op, Private Street Entrance, and Great Location.
Sale Notes
DOCTORS OFFICE SUITE on Park Avenue @90th Street
1120 floor plan
1120 reception
1120 park
1120 hallway
1120 park exam
Property Facts
| Total Building Size | 213,729 SF | Floors | 21 |
| Property Type | Multifamily (Condo) | Typical Floor Size | 10,178 SF |
| Property Subtype | Apartment | Year Built | 1930 |
| Building Class | B | Lot Size | 0.33 AC |
| Zoning | R10 - High Density Residential District | ||
| Total Building Size | 213,729 SF |
| Property Type | Multifamily (Condo) |
| Property Subtype | Apartment |
| Building Class | B |
| Floors | 21 |
| Typical Floor Size | 10,178 SF |
| Year Built | 1930 |
| Lot Size | 0.33 AC |
| Zoning | R10 - High Density Residential District |
Amenities
Site Amenities
- 24 Hour Access
- Concierge
- Fitness Center
- Property Manager on Site
- Doorman
- Storage Space
- Elevator
- Green Community
Unit Mix Information
| Description | No. Units | Avg. Rent/Mo | SF |
|---|---|---|---|
| Studios | 68 | - | - |
Presented by
1120 Park Ave - Co-Op DOCTORS /MEDICAL OFFICE for SALE
Hmm, there seems to have been an error sending your message. Please try again.
Thanks! Your message was sent.

