Your email has been sent.
Highlights
- Experience fully rehabbed, modern loft office space featuring beautiful timber construction, exposed brick, and refinished hardwood floors.
- Premium tenant conveniences include private restrooms, a kitchenette, and passenger and freight elevators with direct access.
- Prime South Loop location centrally positioned near Roosevelt CTA for seamless commutes, with easy access to downtown and River North.
- Flexible space options with a range of move-in-ready suites and customizable spaces ideal for both creative professionals & professional office users.
- Take a break on the spacious rooftop deck with comfy outdoor seating for a relaxing lunch spot and capturing scenic skyline views.
- Walkable to several neighborhood amenities, including Trader Joe’s and Jewel-Osco grocery stores, top restaurants, coffee shops, and shopping.
All Available Spaces(3)
Display Rental Rate as
- Space
- Size
- Term
- Rental Rate
- Space Use
- Build-Out
- Available
Private office suite with direct natural lighting and elevator/ stairwell.
- Rate includes utilities, building services and property expenses
- Open Floor Plan Layout
- Space is in Excellent Condition
- Fully Built-Out as Standard Office
- 1 Private Office
- Natural Light
Office suite with direct natural lighting and convenient access to shared breakroom.
- Rate includes utilities, building services and property expenses
- Mostly Open Floor Plan Layout
- Natural Light
- Fully Built-Out as Standard Office
- 2 Private Offices
Private office suite available for lease with access to communal break area and conference room.
- Rate includes utilities, building services and property expenses
- 1 Private Office
- Fully Built-Out as Standard Office
- 1 Conference Room
| Space | Size | Term | Rental Rate | Space Use | Build-Out | Available |
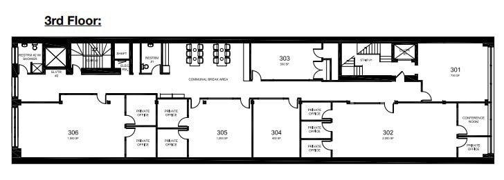
| 3rd Floor, Ste 301 | 750 SF | Negotiable | $40.00 /SF/YR $3.33 /SF/MO $30,000 /YR $2,500 /MO | Office | Full Build-Out | 30 Days |
| 3rd Floor, Ste 306 | 1,500 SF | Negotiable | $34.00 /SF/YR $2.83 /SF/MO $51,000 /YR $4,250 /MO | Office | Full Build-Out | 30 Days |
| 5th Floor, Ste 503 | 1,000 SF | Negotiable | $36.00 /SF/YR $3.00 /SF/MO $36,000 /YR $3,000 /MO | Office | Full Build-Out | 30 Days |
3rd Floor, Ste 301
| Size |
| 750 SF |
| Term |
| Negotiable |
| Rental Rate |
| $40.00 /SF/YR $3.33 /SF/MO $30,000 /YR $2,500 /MO |
| Space Use |
| Office |
| Build-Out |
| Full Build-Out |
| Available |
| 30 Days |
3rd Floor, Ste 306
| Size |
| 1,500 SF |
| Term |
| Negotiable |
| Rental Rate |
| $34.00 /SF/YR $2.83 /SF/MO $51,000 /YR $4,250 /MO |
| Space Use |
| Office |
| Build-Out |
| Full Build-Out |
| Available |
| 30 Days |
5th Floor, Ste 503
| Size |
| 1,000 SF |
| Term |
| Negotiable |
| Rental Rate |
| $36.00 /SF/YR $3.00 /SF/MO $36,000 /YR $3,000 /MO |
| Space Use |
| Office |
| Build-Out |
| Full Build-Out |
| Available |
| 30 Days |
3rd Floor, Ste 301
| Size | 750 SF |
| Term | Negotiable |
| Rental Rate | $40.00 /SF/YR |
| Space Use | Office |
| Build-Out | Full Build-Out |
| Available | 30 Days |
Private office suite with direct natural lighting and elevator/ stairwell.
- Rate includes utilities, building services and property expenses
- Fully Built-Out as Standard Office
- Open Floor Plan Layout
- 1 Private Office
- Space is in Excellent Condition
- Natural Light
3rd Floor, Ste 306
| Size | 1,500 SF |
| Term | Negotiable |
| Rental Rate | $34.00 /SF/YR |
| Space Use | Office |
| Build-Out | Full Build-Out |
| Available | 30 Days |
Office suite with direct natural lighting and convenient access to shared breakroom.
- Rate includes utilities, building services and property expenses
- Fully Built-Out as Standard Office
- Mostly Open Floor Plan Layout
- 2 Private Offices
- Natural Light
5th Floor, Ste 503
| Size | 1,000 SF |
| Term | Negotiable |
| Rental Rate | $36.00 /SF/YR |
| Space Use | Office |
| Build-Out | Full Build-Out |
| Available | 30 Days |
Private office suite available for lease with access to communal break area and conference room.
- Rate includes utilities, building services and property expenses
- Fully Built-Out as Standard Office
- 1 Private Office
- 1 Conference Room
Matterport 3D Tour
Property Overview
1132 S Wabash Avenue is a fully rehabbed building offering contemporary office space in the heart of the bustling South Loop Chicago neighborhood. This brand-new loft office redevelopment comprises 39,810 square feet across six floors, sprawling with natural light and high-end finishes. Each level is lined with timber construction and refinished hardwood floors, accentuated by exposed brick to provide a timelessly modern feel. A variety of space offerings for creative professionals and professional office users are available, including individual suites and move-in-ready opportunities. Tenants benefit from recent upgrades, including private restrooms, a shower, a kitchenette, two new HVAC units per floor, and passenger and freight elevators with direct access. 1132 S Wabash Avenue also features a spacious rooftop deck with outdoor seating, perfect for a change of scenery or a breath of fresh air throughout the work day. Ideally located in Chicago's South Loop, 1132 S Wabash Avenue is at the core of one of the most exciting areas to eat, drink, and experience the city's best. This revamped area provides unbeatable views of the river and the city skyline. South Loop's convenient central location puts occupiers and visitors within walking distance of Downtown, Little Italy, and the Medical District. 1132 S Wabash Avenue sits just one block from Roosevelt CTA Station, Trader Joe's, Jewel-Osco, coffee shops, restaurants, and shopping. Numerous bus and rail lines passing through make it easy to commute anywhere in the city.
- 24 Hour Access
- Commuter Rail
- Conferencing Facility
- Security System
- Signage
- Kitchen
- High Ceilings
- Partitioned Offices
- Plug & Play
- Reception
- Secure Storage
- Shower Facilities
- Wi-Fi
- Hardwood Floors
- Air Conditioning
Property Facts
Select Tenants
- Edward Jones
- Provider of investment, retirement, banking, and wealth strategy services.
- KBKG
- Tax consulting firm providing R&D credits, cost segregation, and incentives.
- Law Office of Ernest B. Fenton P.C.
- Consumer Advocacy Law Firm founded by Ernest B. Fenton.
- Lumity
- STEM program located in Chicago, IL.
- Swap-O-Rama
- Flea market brand dedicated to creating dynamic spaces where commerce and community intersect.
- ZSW Architects
- Architectural firm located in Chicago, IL.
Marketing Brochure
Nearby Amenities
Restaurants |
|||
|---|---|---|---|
| Lowcountry | Seafood | $$ | In Building |
| Chipotle | - | - | 1 min walk |
| Eleven City Diner | Diner | $$$ | 1 min walk |
| Potbelly | - | - | 2 min walk |
| Jet's Pizza | - | - | 1 min walk |
| Five Guys | - | - | 1 min walk |
| Fruve' Xpress Juicery | American | - | 4 min walk |
| Paris Baguette | Cafe | $ | 3 min walk |
| Aurelio's Pizza South Loop | Pizza | $$$ | 4 min walk |
| Dunkin' | Cafe | - | 3 min walk |
Retail |
||
|---|---|---|
| Trader Joe's | Supermarket | 2 min walk |
| Rosin Eye Care | Optical | 1 min walk |
| Kriser's Natural Pet | Pet Shop/Supplies | 4 min walk |
| Walgreens | Drug Store | 4 min walk |
| Snap Fitness 24/7 | Fitness | 4 min walk |
| Orangetheory Fitness | Fitness | 4 min walk |
| The UPS Store | Business/Copy/Postal Services | 5 min walk |
| Pure Barre | Fitness | 6 min walk |
| Target | Dept Store | 7 min walk |
| ULTA Beauty | Health & Beauty Aids | 10 min walk |
Hotels |
|
|---|---|
| Homewood Suites by Hilton |
196 rooms
3 min walk
|
| Hilton Garden Inn |
147 rooms
2 min walk
|
| Best Western |
172 rooms
3 min walk
|
| Hilton |
1,544 rooms
8 min walk
|
| Autograph Collection |
335 rooms
8 min walk
|
Leasing Agent
Dave Schraufnagel, President
Contact the Leasing Agent
1132 S Wabash Ave







