Your email has been sent.
115 McClung Rd - 2.10AC Commercial Lot High Traffic Athens 3.39 Acres of Commercial Land Offered at $1,350,000 in Athens, GA 30601



Investment Highlights
- Prime Location
- High Traffic Volume – The property is located near a major shopping center, which includes a well-known supermarket, ensuring high drive-by visibility
- Strong Demand for Self-Storage
Property Facts
1 Lot Available
Lot
| Price | $1,350,000 | Lot Size | 3.39 AC |
| Price Per AC | $398,230.09 |
| Price | $1,350,000 |
| Price Per AC | $398,230.09 |
| Lot Size | 3.39 AC |
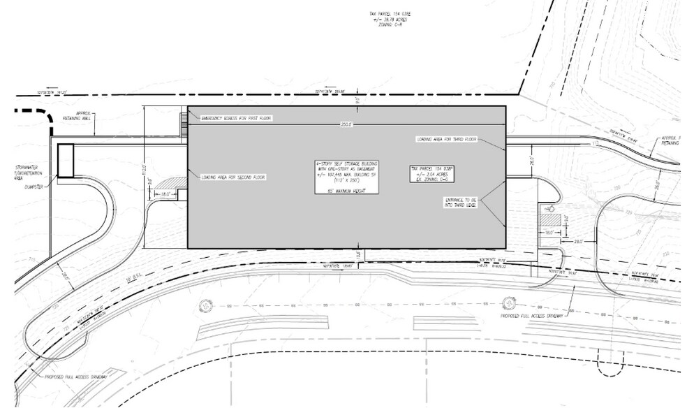
Property spans over 3.39 acres and boasts 100,000+ gross square feet, offering immense potential for development in a high-growth area. With visibility from Hwy 29, the property presents a prime location for maximum exposure and accessibility.
Description
115 McClung Dr presents a rare entitled self-storage development opportunity in Athens, Georgia, one of the most dynamic and supply-constrained markets in the Southeast. This 3.39-acre site is fully zoned and approved for self-storage development, significantly reducing entitlement risk and providing a clear, executable path toward permitting and construction. Strategically located just off U.S. Highway 29, the property benefits from strong daily traffic counts, excellent visibility, and direct access to surrounding residential and retail corridors. The site is positioned near a major shopping center anchored by a national grocery tenant, ensuring consistent drive-by exposure and long-term brand visibility for a future storage facility. The Athens self-storage market demonstrates strong and sustained demand, with existing facilities operating at 85%+ occupancy, signaling favorable supply-and-demand fundamentals. Demand is further accelerated by over 2,000 residential units either approved or under development within a one-mile radius, including multifamily apartments, senior housing, and new single-family communities. This rapid population growth creates a deep and diverse customer base for both climate-controlled and non-climate-controlled storage units. Athens is anchored by the University of Georgia, driving consistent storage demand from students, faculty, and transient populations, while also benefiting from a growing healthcare, technology, and manufacturing employment base. Limited modern self-storage inventory in the immediate trade area enhances the opportunity to deliver a next-generation facility with climate control, security, and efficient unit mix. With zoning approval in place, strong demographics, limited new competition, and proven market absorption, 115 McClung Dr stands out as a premier self-storage development site in Athens, GA for developers seeking speed to market and long-term value creation
Presented by
115 McClung Rd - 2.10AC Commercial Lot High Traffic Athens
Hmm, there seems to have been an error sending your message. Please try again.
Thanks! Your message was sent.
