Your email has been sent.
HIGHLIGHTS
- Located at a signalized intersection with 284 feet of frontage
- Over 29,000 vehicles per day along Route 611
- Surrounded by affluent households averaging $160K+ income
- Proposed 9,200 SF across two buildings on 1.92 acres
- Zoned BZ in Warrington Township with utility access
- One of the last development sites on Easton Road corridor
SPACE AVAILABILITY (2)
Display Rental Rate as
- SPACE
- SIZE
- TERM
- RENTAL RATE
- RENT TYPE
| Space | Size | Term | Rental Rate | Rent Type | ||
| 1st Floor | 6,400 SF | Negotiable | Upon Request Upon Request Upon Request Upon Request | TBD | ||
| 1st Floor | 2,800 SF | Negotiable | Upon Request Upon Request Upon Request Upon Request | TBD |
1198 Easton Rd - 1st Floor
1198 Easton Rd - 1st Floor
- Fully Built-Out as a Restaurant or Café Space
Rent Types
The rent amount and type that the tenant (lessee) will be responsible to pay to the landlord (lessor) throughout the lease term is negotiated prior to both parties signing a lease agreement. The rent type will vary depending upon the services provided. For example, triple net rents are typically lower than full service rents due to additional expenses the tenant is required to pay in addition to the base rent. Contact the listing broker for a full understanding of any associated costs or additional expenses for each rent type.
1. Full Service: A rental rate that includes normal building standard services as provided by the landlord within a base year rental.
2. Double Net (NN): Tenant pays for only two of the building expenses; the landlord and tenant determine the specific expenses prior to signing the lease agreement.
3. Triple Net (NNN): A lease in which the tenant is responsible for all expenses associated with their proportional share of occupancy of the building.
4. Modified Gross: Modified Gross is a general type of lease rate where typically the tenant will be responsible for their proportional share of one or more of the expenses. The landlord will pay the remaining expenses. See the below list of common Modified Gross rental rate structures: 4. Plus All Utilities: A type of Modified Gross Lease where the tenant is responsible for their proportional share of utilities in addition to the rent. 4. Plus Cleaning: A type of Modified Gross Lease where the tenant is responsible for their proportional share of cleaning in addition to the rent. 4. Plus Electric: A type of Modified Gross Lease where the tenant is responsible for their proportional share of the electrical cost in addition to the rent. 4. Plus Electric & Cleaning: A type of Modified Gross Lease where the tenant is responsible for their proportional share of the electrical and cleaning cost in addition to the rent. 4. Plus Utilities and Char: A type of Modified Gross Lease where the tenant is responsible for their proportional share of the utilities and cleaning cost in addition to the rent. 4. Industrial Gross: A type of Modified Gross lease where the tenant pays one or more of the expenses in addition to the rent. The landlord and tenant determine these prior to signing the lease agreement.
5. Tenant Electric: The landlord pays for all services and the tenant is responsible for their usage of lights and electrical outlets in the space they occupy.
6. Negotiable or Upon Request: Used when the leasing contact does not provide the rent or service type.
7. TBD: To be determined; used for buildings for which no rent or service type is known, commonly utilized when the buildings are not yet built.
PROPERTY FACTS
| Total Space Available | 9,200 SF | Frontage | |
| Center Type | Strip Center | Gross Leasable Area | 9,200 SF |
| Stores | 2 | Total Land Area | 3.84 AC |
| Center Properties | 2 | Year Built | 2027 |
| Total Space Available | 9,200 SF |
| Center Type | Strip Center |
| Stores | 2 |
| Center Properties | 2 |
| Frontage | |
| Gross Leasable Area | 9,200 SF |
| Total Land Area | 3.84 AC |
| Year Built | 2027 |
ABOUT THE PROPERTY
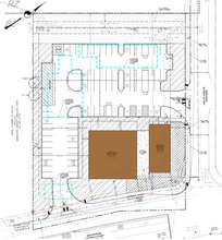
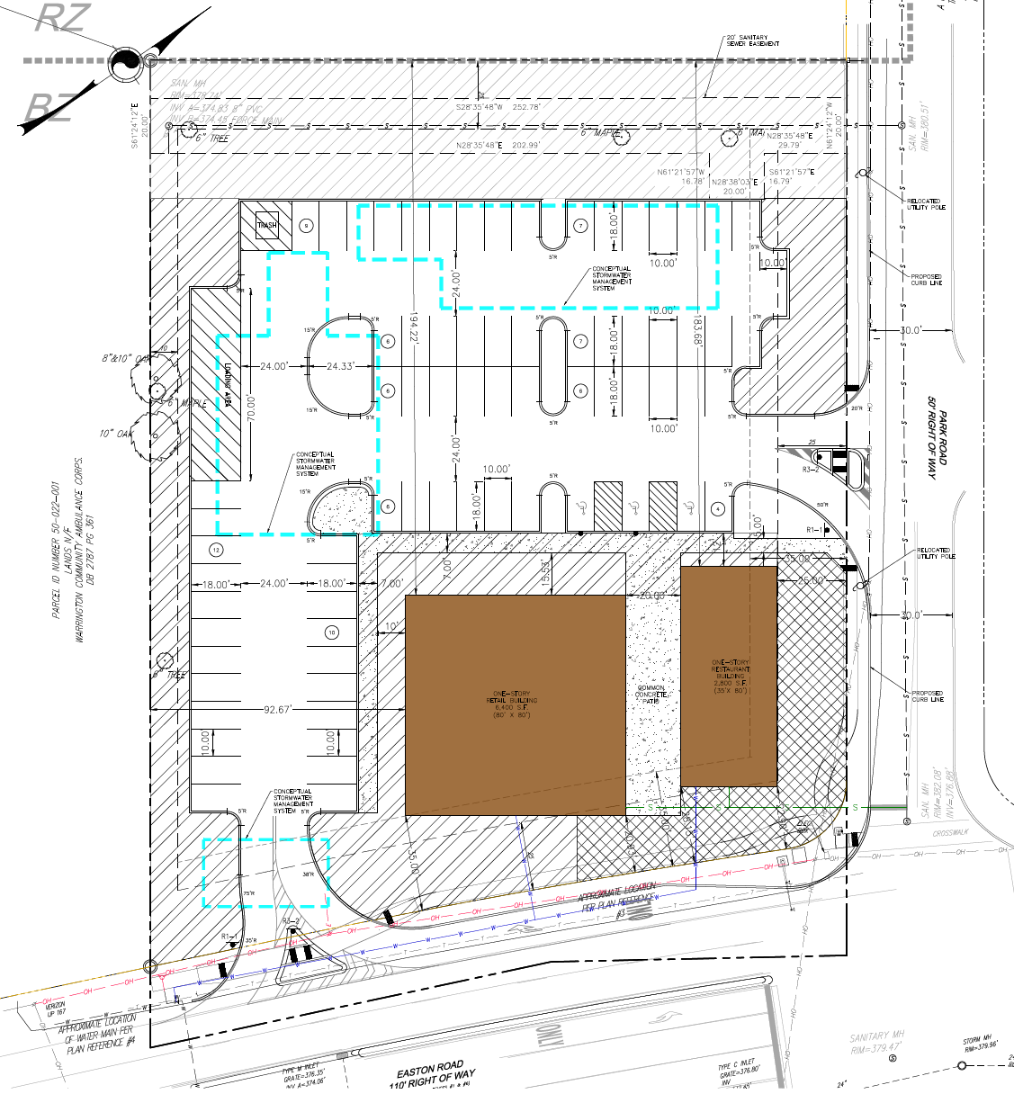
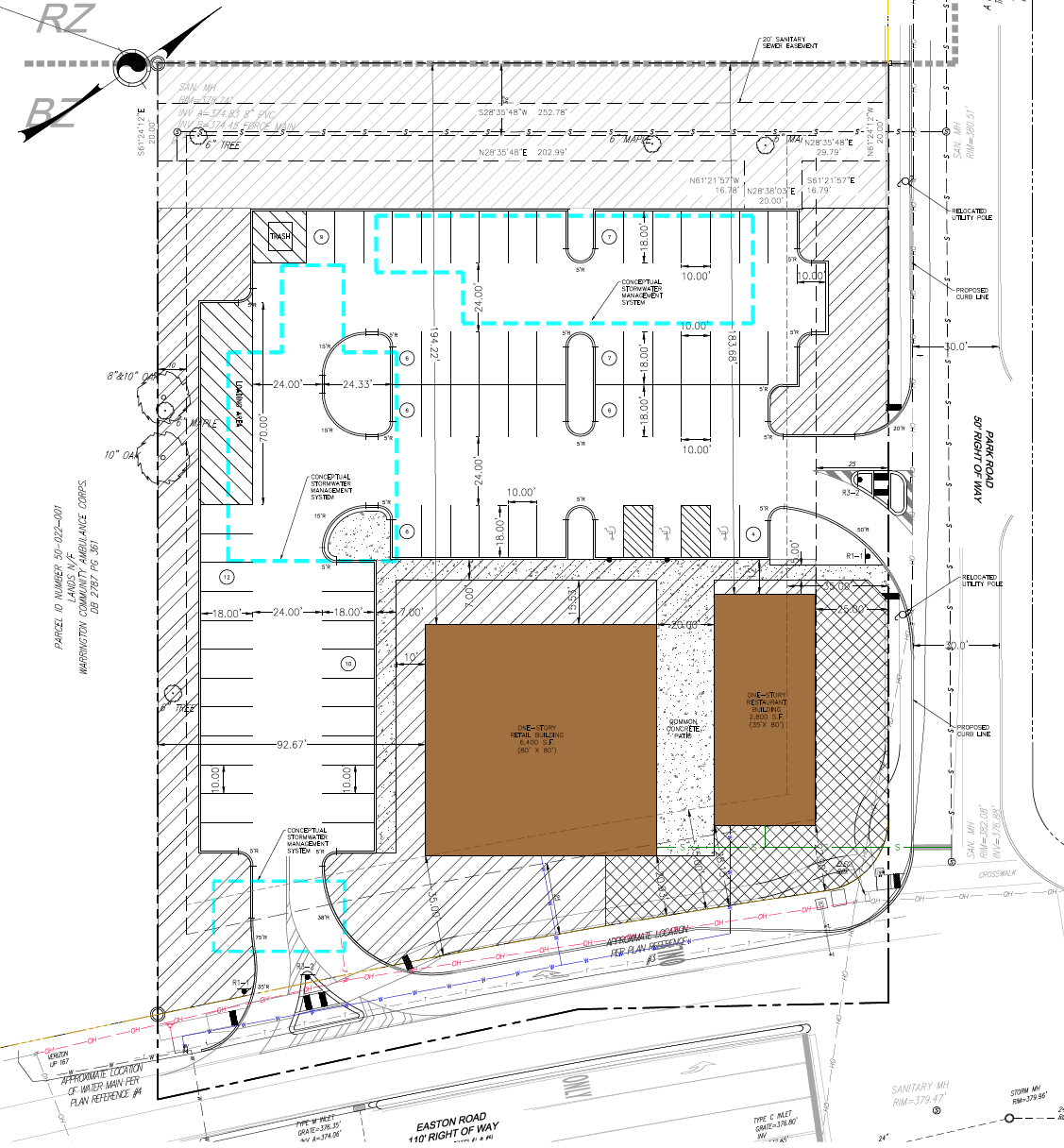
Positioned at a high-visibility, signalized intersection along Route 611 in Warrington Township, this proposed retail development offers a rare opportunity to lease space in one of Bucks County’s most sought-after corridors. The site features two buildings totaling 9,200 SF: a 6,400 SF divisible retail structure and a 2,800 SF freestanding restaurant pad. With 284 feet of frontage and 73 dedicated parking spaces, the property is designed for optimal customer access and brand exposure. The location benefits from strong traffic counts—over 29,000 vehicles per day—and proximity to major highways including Route 202 and I-276, connecting tenants to affluent residential communities and regional destinations like Doylestown, King of Prussia, and Philadelphia. The surrounding area boasts an average household income exceeding $160,000 within a 5-mile radius, making it ideal for upscale retail, dining, or service-oriented tenants. This is one of the final developable parcels along this stretch of Easton Road, offering a strategic foothold in a thriving retail corridor. Concept plans include stormwater management systems and utility access, ensuring readiness for build-out.
- Signage
- Signalized Intersection
NEARBY MAJOR RETAILERS
Presented by
Easton Rd | 1198 Easton Rd
Hmm, there seems to have been an error sending your message. Please try again.
Thanks! Your message was sent.









