Your email has been sent.
NEW WAREHOUSE-GAINESVIlLLE/MANASSAS 11982 Wilton Meadows Ct 4,030 - 16,120 SF of Industrial Space Available in Manassas, VA 20109



Features
All Available Spaces(2)
Display Rental Rate as
- Space
- Size
- Term
- Rental Rate
- Space Use
- Build-Out
- Available
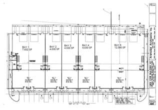
12,090 SF new warehouse unit for lease in Manassas off Wellington Road near Gainesville. Building complete and ready for immediate occupancy. 11954 Wilton Meadows Drive: 12,090 SF unit includes three 14'x14' drive in door and two shared loading docks. Space comprises of 9,090 SF on the ground floor and 3,000 SF on a mezzanine. Can be combined with 11962 Wilton Meadows to create a 16,090 SF space. -Two shared loading docks and three 14'x14' drive-in doors. -Up to 16,090 SF available -18’-22’ ceiling heights. -18 parking spaces -Each bay has 200 amps of 3 phase electrical power. -Zoned M-2 in Prince William County. -Located off Wellington Road near Jiffy Lube Live. -Vacant and ready for immediate occupancy.
- Lease rate does not include utilities, property expenses or building services
- Can be combined with additional space(s) for up to 16,120 SF of adjacent space
- 3 Drive Ins
- 2 Loading Docks
4,030 SF new warehouse unit for lease in Manassas off Wellington Road near Gainesville. Building complete and ready for immediate occupancy. -Two shared loading docks and one 14'x14' drive-in doors. -Up to 16,090 SF available -18’-22’ ceiling heights. -Six parking spaces -Each bay has 200 amps of 3 phase electrical power. -Zoned M-2 in Prince William County. -Located off Wellington Road near Jiffy Lube Live. -Vacant and available now
- Lease rate does not include utilities, property expenses or building services
- Can be combined with additional space(s) for up to 16,120 SF of adjacent space
- 1 Drive Bay
- 2 Loading Docks
| Space | Size | Term | Rental Rate | Space Use | Build-Out | Available |
| 1st Floor - 11954 | 12,090 SF | 5-10 Years | $15.75 /SF/YR $1.31 /SF/MO $190,418 /YR $15,868 /MO | Industrial | Full Build-Out | Now |
| 1st Floor - 11962 | 4,030 SF | 5-10 Years | $15.75 /SF/YR $1.31 /SF/MO $63,473 /YR $5,289 /MO | Industrial | Full Build-Out | Now |
1st Floor - 11954
| Size |
| 12,090 SF |
| Term |
| 5-10 Years |
| Rental Rate |
| $15.75 /SF/YR $1.31 /SF/MO $190,418 /YR $15,868 /MO |
| Space Use |
| Industrial |
| Build-Out |
| Full Build-Out |
| Available |
| Now |
1st Floor - 11962
| Size |
| 4,030 SF |
| Term |
| 5-10 Years |
| Rental Rate |
| $15.75 /SF/YR $1.31 /SF/MO $63,473 /YR $5,289 /MO |
| Space Use |
| Industrial |
| Build-Out |
| Full Build-Out |
| Available |
| Now |
1st Floor - 11954
| Size | 12,090 SF |
| Term | 5-10 Years |
| Rental Rate | $15.75 /SF/YR |
| Space Use | Industrial |
| Build-Out | Full Build-Out |
| Available | Now |
12,090 SF new warehouse unit for lease in Manassas off Wellington Road near Gainesville. Building complete and ready for immediate occupancy. 11954 Wilton Meadows Drive: 12,090 SF unit includes three 14'x14' drive in door and two shared loading docks. Space comprises of 9,090 SF on the ground floor and 3,000 SF on a mezzanine. Can be combined with 11962 Wilton Meadows to create a 16,090 SF space. -Two shared loading docks and three 14'x14' drive-in doors. -Up to 16,090 SF available -18’-22’ ceiling heights. -18 parking spaces -Each bay has 200 amps of 3 phase electrical power. -Zoned M-2 in Prince William County. -Located off Wellington Road near Jiffy Lube Live. -Vacant and ready for immediate occupancy.
- Lease rate does not include utilities, property expenses or building services
- 3 Drive Ins
- Can be combined with additional space(s) for up to 16,120 SF of adjacent space
- 2 Loading Docks
1st Floor - 11962
| Size | 4,030 SF |
| Term | 5-10 Years |
| Rental Rate | $15.75 /SF/YR |
| Space Use | Industrial |
| Build-Out | Full Build-Out |
| Available | Now |
4,030 SF new warehouse unit for lease in Manassas off Wellington Road near Gainesville. Building complete and ready for immediate occupancy. -Two shared loading docks and one 14'x14' drive-in doors. -Up to 16,090 SF available -18’-22’ ceiling heights. -Six parking spaces -Each bay has 200 amps of 3 phase electrical power. -Zoned M-2 in Prince William County. -Located off Wellington Road near Jiffy Lube Live. -Vacant and available now
- Lease rate does not include utilities, property expenses or building services
- 1 Drive Bay
- Can be combined with additional space(s) for up to 16,120 SF of adjacent space
- 2 Loading Docks
Property Overview
16,120 SF of new warehouse building for lease in Manassas off Wellington Road near Gainesville. Building complete and ready for immediate occupancy. -Unit 11954 is delivered with 2 bathrooms and unit 11962 has 1 bathroom. 200 amp/3phase electrical panel, gas heater, and mop sink. -Two shared loading docks, six 14'x14' drive-in doors and tractor trailer access. -Subdividable to 4,030 SF bays (3,030 SF warehouse with 1000 SF mezzanine). -18’-22’ ceiling heights. -1600 Amps of 3 phase power servicing the building. 200 amps of 3 phase power serves each of the 4000 SF bays. Services can be increased -Gas: Natural gas available via Washington Gas. -Fiber optic internet is available. -Zoned M-2 in Prince William County and located off Wellington Road near Jiffy Lube Live. -Available December 2025.
Warehouse Facility Facts
Presented by
NEW WAREHOUSE-GAINESVIlLLE/MANASSAS | 11982 Wilton Meadows Ct
Hmm, there seems to have been an error sending your message. Please try again.
Thanks! Your message was sent.






