Log In/Sign Up
Your email has been sent.
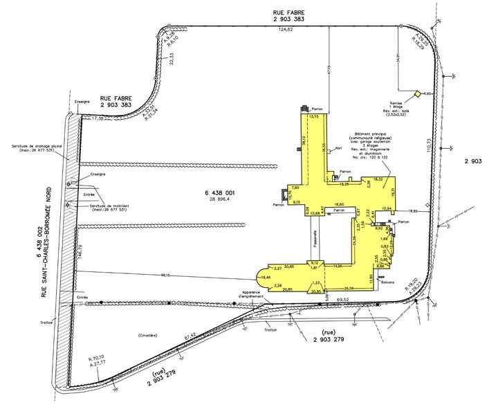
120-132 Rue Saint-Charles-Borromée N 92,110 SF Specialty Building Offered For Sale in Joliette, QC J6E 4R2



Investment Highlights
- As a heritage-designated building, any major changes require prior approval from Quebec’s Ministry of Culture.
- Walls/Ceilings: Plaster, drywall, exposed structure, acoustic tiles, wood, painted concrete
- Flooring: Hardwood, concrete, ceramic, laminate, vinyl, carpet, terrazzo, linoleum
- Electrical: 400 amps, 600 volts, fuses and breakers
Executive Summary
Savills presents a unique opportunity to acquire an institutional property with a land area of 311,039 sq ft (7.14 acres), including a set of religious buildings totaling 92,110 sq ft. The chapel and provincial house of the Clerics of Saint-Viateur of Canada are designated heritage buildings.
Located in the heart of Joliette, just 10 minutes from Highway 40 via Highway 31, and near the regional CEGEP and Joliette train station (Via Rail).
The seller wishes to retain approximately 30 retired religious residents currently housed on the property. Alternative relocation solutions may be considered, but maintaining the current situation is preferred.
Located in the heart of Joliette, just 10 minutes from Highway 40 via Highway 31, and near the regional CEGEP and Joliette train station (Via Rail).
The seller wishes to retain approximately 30 retired religious residents currently housed on the property. Alternative relocation solutions may be considered, but maintaining the current situation is preferred.
Property Facts
| Sale Type | Investment | Building Size | 92,110 SF |
| Sale Condition | Redevelopment Project | No. Stories | 4 |
| Property Type | Specialty | Year Built | 1941 |
| Building Class | B | Parking Ratio | 1.09/1,000 SF |
| Lot Size | 7.14 AC | ||
| Zoning | P-023-023 - Institutional, administrative, park, recreation | ||
| Sale Type | Investment |
| Sale Condition | Redevelopment Project |
| Property Type | Specialty |
| Building Class | B |
| Lot Size | 7.14 AC |
| Building Size | 92,110 SF |
| No. Stories | 4 |
| Year Built | 1941 |
| Parking Ratio | 1.09/1,000 SF |
| Zoning | P-023-023 - Institutional, administrative, park, recreation |
Walk Score®
Walker's Paradise (93)
Bike Score®
Biker's Paradise (90)
1 of 7
Videos
Matterport 3D Exterior
Matterport 3D Tour
Photos
Street View
Street
Map
Presented by
120-132 Rue Saint-Charles-Borromée N
Already a member? Log In
Hmm, there seems to have been an error sending your message. Please try again.
Thanks! Your message was sent.
Your message has been sent!
Activate your LoopNet account now to track properties, get real-time alerts, save time on future inquiries, and more.

