Your email has been sent.
Highlights
- Easy access, just minutes from I-40
- Cold dark shell offering flexible build-out options
- Lots of nearby amenities, restaurants, and retail shops
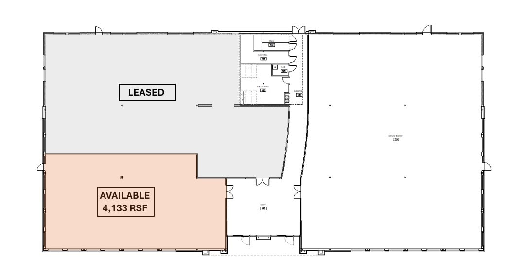
Space Availability (1)
Display Rental Rate as
- Space
- Size
- Ceiling
- Term
- Rental Rate
- Rent Type
| Space | Size | Ceiling | Term | Rental Rate | Rent Type | |
| 1st Floor, Ste 1 | 4,133 SF | 22’ | Negotiable | $32.00 /SF/YR $2.67 /SF/MO $132,256 /YR $11,021 /MO | Triple Net (NNN) |
1st Floor, Ste 1
Prime commercial space available near Tymberline Shopping Center. Located in a high-traffic residential area with excellent visibility, this shell space offers full build-out flexibility to suit your needs. The property features 22’ ceilings and abundant natural light, creating a bright and inviting environment. With ample parking and a diverse mix of surrounding businesses and amenities, this is the perfect spot for retail, office, medical, fitness, and more. Conveniently located just minutes from I-40, offering easy access to Durham and surrounding areas. Highlights: -Zoning: Retail, office, medical, fitness, daycare, church & more -Ceiling Height: 22’ with abundant natural light -Parking: Ample on-site parking -Location: High-visibility spot in a busy residential area -Access: Minutes from I-40, easy access to Durham & surrounding areas
- Lease rate does not include utilities, property expenses or building services
- Located in-line with other retail
- Space is in Excellent Condition
- Corner Space
- High Ceilings
- Finished Ceilings: 22’
- Wheelchair Accessible
Rent Types
The rent amount and type that the tenant (lessee) will be responsible to pay to the landlord (lessor) throughout the lease term is negotiated prior to both parties signing a lease agreement. The rent type will vary depending upon the services provided. For example, triple net rents are typically lower than full service rents due to additional expenses the tenant is required to pay in addition to the base rent. Contact the listing broker for a full understanding of any associated costs or additional expenses for each rent type.
1. Full Service: A rental rate that includes normal building standard services as provided by the landlord within a base year rental.
2. Double Net (NN): Tenant pays for only two of the building expenses; the landlord and tenant determine the specific expenses prior to signing the lease agreement.
3. Triple Net (NNN): A lease in which the tenant is responsible for all expenses associated with their proportional share of occupancy of the building.
4. Modified Gross: Modified Gross is a general type of lease rate where typically the tenant will be responsible for their proportional share of one or more of the expenses. The landlord will pay the remaining expenses. See the below list of common Modified Gross rental rate structures: 4. Plus All Utilities: A type of Modified Gross Lease where the tenant is responsible for their proportional share of utilities in addition to the rent. 4. Plus Cleaning: A type of Modified Gross Lease where the tenant is responsible for their proportional share of cleaning in addition to the rent. 4. Plus Electric: A type of Modified Gross Lease where the tenant is responsible for their proportional share of the electrical cost in addition to the rent. 4. Plus Electric & Cleaning: A type of Modified Gross Lease where the tenant is responsible for their proportional share of the electrical and cleaning cost in addition to the rent. 4. Plus Utilities and Char: A type of Modified Gross Lease where the tenant is responsible for their proportional share of the utilities and cleaning cost in addition to the rent. 4. Industrial Gross: A type of Modified Gross lease where the tenant pays one or more of the expenses in addition to the rent. The landlord and tenant determine these prior to signing the lease agreement.
5. Tenant Electric: The landlord pays for all services and the tenant is responsible for their usage of lights and electrical outlets in the space they occupy.
6. Negotiable or Upon Request: Used when the leasing contact does not provide the rent or service type.
7. TBD: To be determined; used for buildings for which no rent or service type is known, commonly utilized when the buildings are not yet built.
Select Tenants at 120 Banks Dr, Chapel Hill, NC 27514
- Tenant
- Description
- US Locations
- Reach
- Raleigh Radiology
- Health Care and Social Assistance
- -
- -
| Tenant | Description | US Locations | Reach |
| Raleigh Radiology | Health Care and Social Assistance | - | - |
Property Facts
| Total Space Available | 4,133 SF | Gross Leasable Area | 20,000 SF |
| Property Type | Retail | Year Built/Renovated | 1990/2023 |
| Property Subtype | Storefront Retail/Office | Parking Ratio | 4.25/1,000 SF |
| Total Space Available | 4,133 SF |
| Property Type | Retail |
| Property Subtype | Storefront Retail/Office |
| Gross Leasable Area | 20,000 SF |
| Year Built/Renovated | 1990/2023 |
| Parking Ratio | 4.25/1,000 SF |
About the Property
Completely renovated property (renovation completed in 2024) ideal for a variety of businesses. Located in a high traffic area opposite the busy Tymberline Shopping Center and in close proximity to numerous other retailers and I-40.
Nearby Major Retailers
Presented by
120 Banks Dr
Hmm, there seems to have been an error sending your message. Please try again.
Thanks! Your message was sent.





