Your email has been sent.
1200-1206 White St - 3 Commercial Condos in Old Town 892 - 1,319 SF Office/Retail Condo Units Offered at $689,000 - $799,999 Per Unit in Key West, FL 33040



Investment Highlights
- High Traffic Street
- Great Visibility
- X Flood Zone
Executive Summary
New condo conversion - 3 commercial condos on the 1st floor available, located on a busy street in Old Town Key West! Building was renovated from 2016-2019 and features all hurricane rated impact doors/windows & is located in the X Flood Zone. White Street is the fastest growing commercial corridor in Key West, acting as a border of Old Town & New Town Key West. Within a short bike or walking to distance to many of Key West popular restaurants, beaches, museums, hotels & B&B's. Condo docs available. HNC-1 zoning uses include professional offices, retail sales & services, specialty shops, restaurants. 1200 White Street - 1,169sf corner unit $789,999 1202 White Street - 982sf $799,000 1206 White Street - 1,389sf $810,000
Data Room Click Here to Access
Property Facts
Amenities
- 24 Hour Access
- Corner Lot
- Tenant Controlled HVAC
- Air Conditioning
3 Units Available
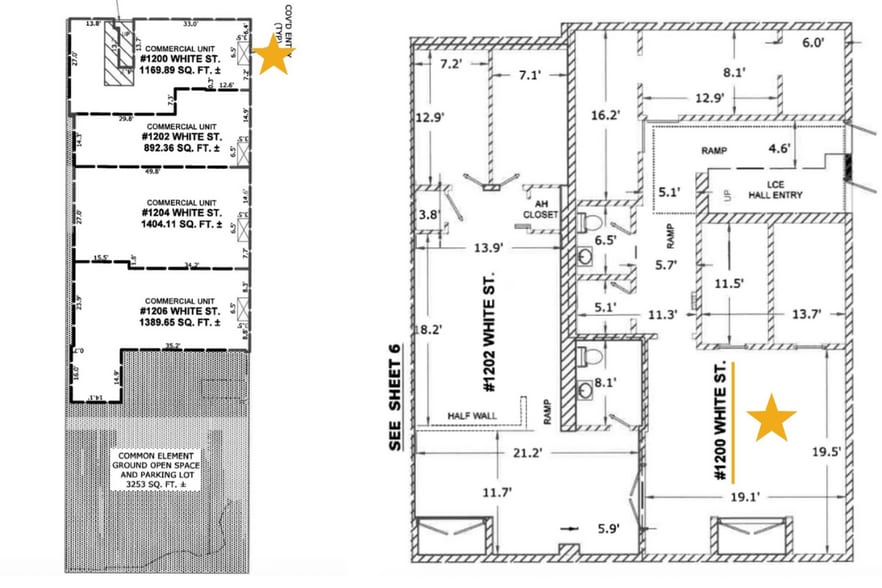
Unit 1200 White
| Unit Size | 1,169 SF | Sale Type | Investment or Owner User |
| Price | $770,000 | No. Parking Spaces | 1 |
| Price Per SF | $658.68 | APN/Parcel ID | 00033011-000101 |
| Condo Use | Office/Retail |
| Unit Size | 1,169 SF |
| Price | $770,000 |
| Price Per SF | $658.68 |
| Condo Use | Office/Retail |
| Sale Type | Investment or Owner User |
| No. Parking Spaces | 1 |
| APN/Parcel ID | 00033011-000101 |
Description
Newly formed commercial condo now available for sale on White Street in X Flood Zone! This 1,169sf 1st floor corner unit with half bath has been extensively updated and renovated with hurricane rated impact windows & doors and comes with 1 assigned parking spot. Entrances on both White St. & Catherine St. The monthly condo fee includes windstorm and liability insurance. HNC-1 zoning uses include professional offices, retail sales & services, specialty shops, restaurants. *3 other commercial condos also available in building.
Floor Plan
Unit 1202 White
| Unit Size | 892 SF | Sale Type | Investment or Owner User |
| Price | $689,000 | No. Parking Spaces | 1 |
| Price Per SF | $772.42 | APN/Parcel ID | 00033011-000102 |
| Condo Use | Office/Retail |
| Unit Size | 892 SF |
| Price | $689,000 |
| Price Per SF | $772.42 |
| Condo Use | Office/Retail |
| Sale Type | Investment or Owner User |
| No. Parking Spaces | 1 |
| APN/Parcel ID | 00033011-000102 |
Description
Newly formed commercial condo now available for sale on White Street in X Flood Zone! This 892sf 1st floor unit with a half bath has been extensively updated and renovated with hurricane rated impact windows & doors and comes with 1 assigned parking spot. The monthly condo fee includes windstorm and liability insurance. Condo docs available. HNC-1 zoning uses include professional offices, retail sales & services, specialty shops, restaurants. *3 other commercial condos also available.
1202 White St. - 892sf
Unit 1206 White
| Unit Size | 1,319 SF | Condo Use | Office/Retail |
| Price | $799,999 | Sale Type | Investment or Owner User |
| Price Per SF | $606.52 | No. Parking Spaces | 1 |
| Unit Size | 1,319 SF |
| Price | $799,999 |
| Price Per SF | $606.52 |
| Condo Use | Office/Retail |
| Sale Type | Investment or Owner User |
| No. Parking Spaces | 1 |
Description
Newly formed commercial condo now available for sale on White Street in X Flood Zone! This 1,319sf 1st floor corner condo is the largest unit in the building and has been extensively updated and renovated with hurricane rated impact windows & doors. Comes with 1 assigned parking spot and has a half bath. Entrances on White St. and a side entrance from parking lot. The monthly condo fee includes windstorm and liability insurance. Condo docs available. HNC-1 zoning uses include professional offices, retail sales & services, specialty shops, restaurants. *3 other commercial condos also available in building.
Floor Plan
1,319 SF
Nearby Major Retailers
Presented by
1200-1206 White St - 3 Commercial Condos in Old Town
Hmm, there seems to have been an error sending your message. Please try again.
Thanks! Your message was sent.



