Log In/Sign Up
Your email has been sent.
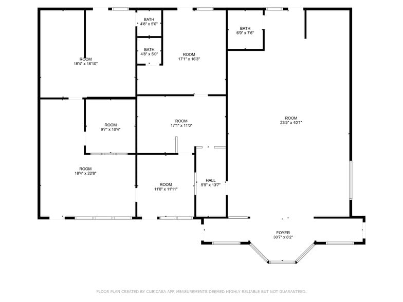
El Trovatore Hill Building 1200 E Andy Devine Ave 2,726 SF Office Building Kingman, AZ 86401 $595,000 ($218.27/SF)



Executive Summary
This 2,726 square foot Commercial Building is located right on main drag of Route 66 and the edge of downtown Kingman. This building has been remodeled with a new roof, new floors, new paint and new interior blinds. There is a large gated back patio as well as a separate gated yard attached with covered parking/storage area. This building is ready for any new or growing business to bring it new life!
Property Facts
Sale Type
Investment or Owner User
Property Type
Office
Building Size
2,726 SF
Building Class
C
Year Built
1987
Price
$595,000
Price Per SF
$218.27
Tenancy
Single
Building Height
1 Story
Typical Floor Size
2,726 SF
Building FAR
0.17
Lot Size
0.38 AC
Parking
10 Spaces
1 1
Property Taxes
| Parcel Number | 321-10-024 | Improvements Assessment | $263,070 |
| Land Assessment | $100,352 | Total Assessment | $363,422 |
Property Taxes
Parcel Number
321-10-024
Land Assessment
$100,352
Improvements Assessment
$263,070
Total Assessment
$363,422
1 of 48
Videos
Matterport 3D Exterior
Matterport 3D Tour
Photos
Street View
Street
Map
1 of 1
Presented by
El Trovatore Hill Building | 1200 E Andy Devine Ave
Already a member? Log In
Hmm, there seems to have been an error sending your message. Please try again.
Thanks! Your message was sent.
Your message has been sent!
Activate your LoopNet account now to track properties, get real-time alerts, save time on future inquiries, and more.

