Log In/Sign Up
Enter your email to login or create a free account
This feature is unavailable at the moment.
We apologize, but the feature you are trying to access is currently unavailable. We are aware of this issue and our team is working hard to resolve the matter.
Please check back in a few minutes. We apologize for the inconvenience.
- LoopNet Team
This Property is no longer advertised on LoopNet.com.
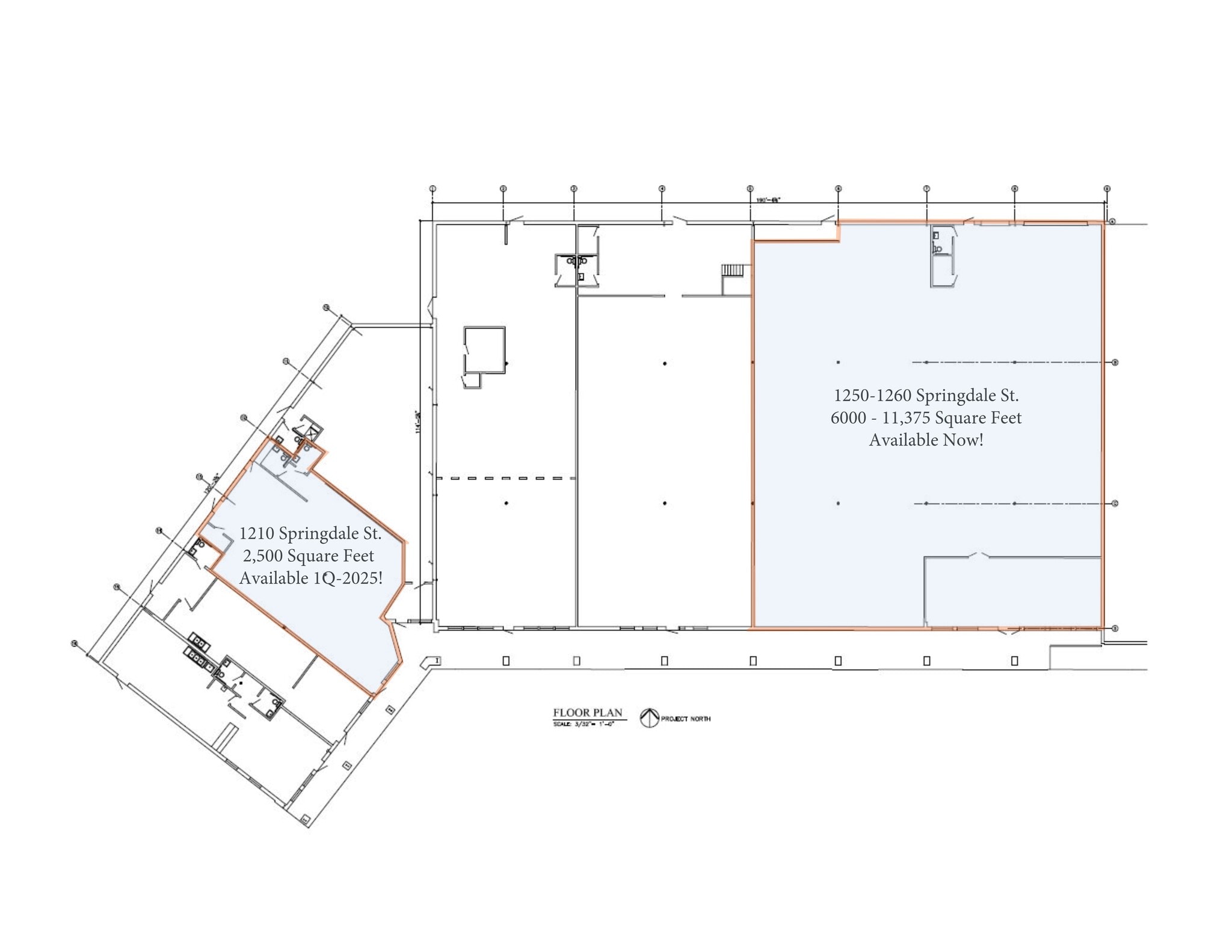
1200 Springdale St
Mount Horeb, WI 53572
Viking Plaza · Property For Lease

Property Facts
| Property Type | Retail | Year Built | 1970 |
| Property Subtype | Storefront | Parking Ratio | 3.43/1,000 SF |
| Gross Leasable Area | 29,100 SF |
| Property Type | Retail |
| Property Subtype | Storefront |
| Gross Leasable Area | 29,100 SF |
| Year Built | 1970 |
| Parking Ratio | 3.43/1,000 SF |
Features and Amenities
- Monument Signage
Attachments
| 1200 Springdale Street_Colliers |
| Site Plan |
Listing ID: 30670722
Date on Market: 1/16/2024
Last Updated:
Address: 1200 Springdale St, Mount Horeb, WI 53572
The Retail Property at 1200 Springdale St, Mount Horeb, WI 53572 is no longer being advertised on LoopNet.com. Contact the broker for information on availability.
RETAIL PROPERTIES IN NEARBY NEIGHBORHOODS
- Outer Verona Commercial Real Estate Properties
- Downtown Middleton Commercial Real Estate Properties
- Midvale Heights Commercial Real Estate Properties
- Fox Ridge Commercial Real Estate Properties
- Meadows Commercial Real Estate Properties
- Amherst Commercial Real Estate Properties
- Middleton Hills Commercial Real Estate Properties
- Orchard Ridge Commercial Real Estate Properties
- West Madison Commercial Real Estate Properties
- Downtown Madison Commercial Real Estate Properties
NEARBY LISTINGS
1 of 1
Videos
Matterport 3D Exterior
Matterport 3D Tour
Photos
Street View
Street
Map

Link copied
Your LoopNet account has been created!
Thank you for your feedback.
Please Share Your Feedback
We welcome any feedback on how we can improve LoopNet to better serve your needs.X
{{ getErrorText(feedbackForm.starRating, "rating") }}
255 character limit ({{ remainingChars() }} charactercharacters remainingover)
{{ getErrorText(feedbackForm.msg, "rating") }}
{{ getErrorText(feedbackForm.fname, "first name") }}
{{ getErrorText(feedbackForm.lname, "last name") }}
{{ getErrorText(feedbackForm.phone, "phone number") }}
{{ getErrorText(feedbackForm.phonex, "phone extension") }}
{{ getErrorText(feedbackForm.email, "email address") }}
You can provide feedback any time using the Help button at the top of the page.