Log In/Sign Up
Your email has been sent.
1232 Mineral Spring Ave 4,207 SF Vacant Retail Building North Providence, RI 02904 $900,000 ($213.93/SF)



Investment Highlights
- Minutes from the highways and seconds within walking distance of retail stores, restaurants, banks lumberyards.
Executive Summary
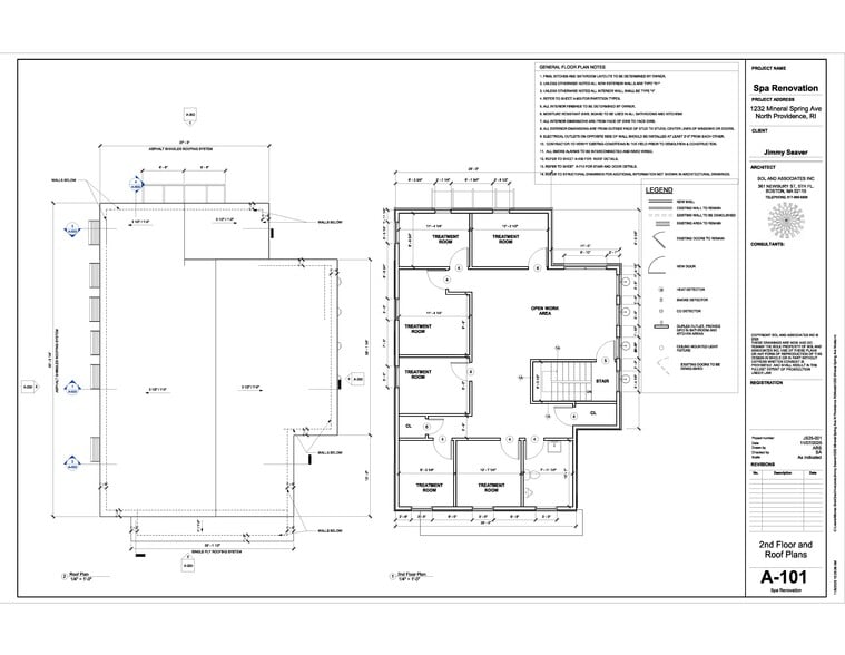
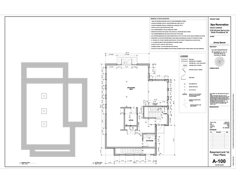
We've excited to announce that we have officially received our demolition and construction permits for the new building. Demolition is finishing up and we are getting ready to start the foundation work. We have started ordering the materials including the storefront windows and doors. We've have added another 200 sq. ft. to the basement making the building around 4500 now. With that we can make a new stairway to the basement from the first floor adding more office or retail space to first floor. We are open to leasing to a single tenant or three separate tenants. The floor plans are conceptual and can be customized and framed to suit your specific business requirements. This will be a completely new building, and unlike many commercial properties, there are no triple-net (NNN) lease requirements. Opportunities like this are rare. If you're thinking about relocating or expanding your business, now is the perfect time to secure space in a brand-new building designed around your needs. Please feel free to reach out with your ideas. I've added a photo of the existing locating of where the building stood, now you can see the Providence Skyline will be visible from the rear of the building.
Property Facts
Sale Type
Investment or Owner User
Sale Conditions
Property Type
Retail
Property Subtype
Freestanding
Building Size
4,207 SF
Building Class
C
Year Built/Renovated
1890/2026
Price
$900,000
Price Per SF
$213.93
Percent Leased
Vacant
Tenancy
Multiple
Building Height
2 Stories
Building FAR
0.42
Lot Size
0.23 AC
Opportunity Zone
Yes
Zoning
CP - Brand New Medical & Wellness Building designed specifically for medical professional office and treatment rooms.
Parking
15 Spaces (3.57 Spaces per 1,000 SF Leased)
Frontage
25’ on Mineral Spring Ave
Amenities
- 24 Hour Access
- Banking
- Dedicated Turn Lane
- Fenced Lot
- Restaurant
- Signage
- Wheelchair Accessible
- Air Conditioning
Space Availability
- Space
- Size
- Space Use
- Position
- Available
- Basement
- 963 SF
- Office/Retail
- -
- Now
| Space | Size | Space Use | Position | Available |
| Basement | 963 SF | Office/Retail | - | Now |
| 1st Floor | 1,569 SF | Office/Retail | - | Now |
| 2nd Floor | 1,675 SF | Office/Retail | - | Now |
Basement
| Size |
| 963 SF |
| Space Use |
| Office/Retail |
| Position |
| - |
| Available |
| Now |
1st Floor
| Size |
| 1,569 SF |
| Space Use |
| Office/Retail |
| Position |
| - |
| Available |
| Now |
2nd Floor
| Size |
| 1,675 SF |
| Space Use |
| Office/Retail |
| Position |
| - |
| Available |
| Now |
1 of 2
Videos
Matterport 3D Exterior
Matterport 3D Tour
Photos
Street View
Street
Map
1st Floor
| Size | 1,569 SF |
| Space Use | Office/Retail |
| Position | - |
| Available | Now |
1 of 3
Videos
Matterport 3D Exterior
Matterport 3D Tour
Photos
Street View
Street
Map
2nd Floor
| Size | 1,675 SF |
| Space Use | Office/Retail |
| Position | - |
| Available | Now |
Moderately walkable
60/100
Exceptionally drivable
100/100
Limited public transit
30/100
Fairly bikeable
40/100
Nearby Major Retailers
Property Taxes
| Parcel Number | NPRO-000003-000000-000110 | Improvements Assessment | $208,000 |
| Land Assessment | $173,100 | Total Assessment | $381,100 |
Property Taxes
Parcel Number
NPRO-000003-000000-000110
Land Assessment
$173,100
Improvements Assessment
$208,000
Total Assessment
$381,100
1 of 8
Videos
Matterport 3D Exterior
Matterport 3D Tour
Photos
Street View
Street
Map
Presented by
JJ Realty LLC
1232 Mineral Spring Ave
Already a member? Log In
Hmm, there seems to have been an error sending your message. Please try again.
Thanks! Your message was sent.






