Your email has been sent.
River Crossing Offices 12427 S Pasture Rd 2,294 - 7,664 SF of Office/Medical Space Available in Riverton, UT 84096



HIGHLIGHTS
- Parking ration 4/1000, Class A Lobby and Building Finishing, Fully built out, High end finishes, 3 minutes away from new Intermountain
- 1/2 block to 12600 South and Bangerter FWY. AVAILABLE 02/01/2025
- Healthcare Riverton Hospital, Close proximity to many retail amenities, Monument sign, Incredible views of Wasatch Mountains,
ALL AVAILABLE SPACES(3)
Display Rental Rate as
- SPACE
- SIZE
- TERM
- RENTAL RATE
- SPACE USE
- CONDITION
- AVAILABLE
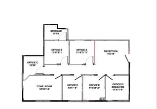
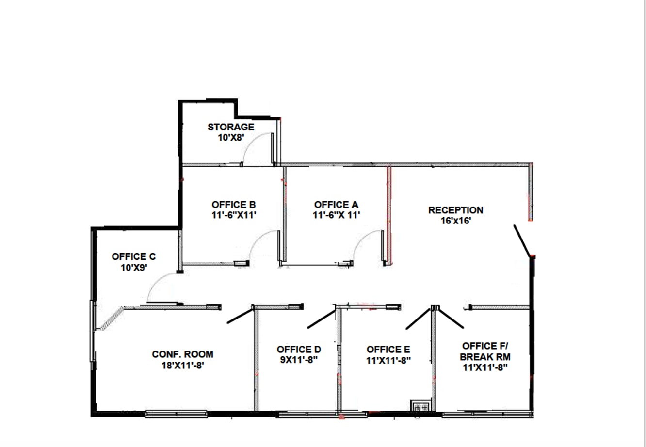
Prestigious Medical Space on First Floor, Suite 101, has been used as a Medical Office by Valley Spring Health for about 10 years. Great Set up for Medical Doctor, psychologist, healthcare, CPA, attorney or any office user. Great floor plan with 10 offices, Conference Room, receptionist room, Break room, and storage area. Quality Medical/Office Space, Fully Built out with great floor plan, Elevator/ ADA accessible, Walking Distance to restaurants, coffee shop, Low's and various other Amenities. This office has been used for medical for about 10 years. First floor, has 6 offices, conference room, receptionist room, bathroom in the suite. * Space: 2,825 SF * NNN Lease * Prime Riverton Location * Beautiful, Exceptional, Rare and Prestige Medical/Office * Parking ratio: 4/1000 * Class B , Fully Built out, High End Suites Finished * Close Proximity to Many Retail Amenities * 2-3 minutes from Intermountain Healthcare Riverton Hospital * Monument sign * Incredible Views of Wasatch Mountains * Easy Access to and from 12600 S and Bangerter Fwy * Class B , Fully Built out, High End Suites Finished * Prime Riverton's Location * Rare Commercial Office in Riverton
- Lease rate does not include utilities, property expenses or building services
- 1 Conference Room
- 10 Private Offices
- Space is in Excellent Condition
Quality Medical/Office Space, Fully Built out with great floor plan, Elevator/ ADA accessible, Walking Distance to restaurants, coffee shop, Low's and various other Amenities. This office has been used for medical for about 10 years. First floor, has 6 offices, conference room, receptionist room, bathroom in the suite. * Space: 2,524 SF * NNN Lease- Call for rate * Prime Riverton Location * Beautiful, Exceptional, Rare and Prestige Medical/Office * Parking ratio: 4/1000 * Class B , Fully Built out, High End Suites Finished * Close Proximity to Many Retail Amenities * 2-3 minutes from Intermountain Healthcare Riverton Hospital * Monument sign * Incredible Views of Wasatch Mountains * Easy Access to and from 12600 S and Bangerter Fwy * Class B , Fully Built out, High End Suites Finished * Prime Riverton's Location * Rare Commercial Office in Riverton
- Lease rate does not include utilities, property expenses or building services
- Space is in Excellent Condition
- 1 Conference Room
* Space: 2,524 SF * NNN Lease- Call for rate * Prime Riverton Location * Beautiful, Exceptional, Rare and Prestige Medical/Office * Parking ratio: 4/1000 * Class B , Fully Built out, High End Suites Finished * Close Proximity to Many Retail Amenities * 2-3 minutes from Intermountain Healthcare Riverton Hospital * Monument sign * Incredible Views of Wasatch Mountains * Easy Access to and from 12600 S and Bangerter Fwy 801-473-8326 * Class B , Fully Built out, High End Suites Finished * Prime Riverton's Location * Rare Commercial Office in Riverton
- Lease rate does not include utilities, property expenses or building services
- 6 Private Offices
- 10 Workstations
- Space is in Excellent Condition
- Fully Built-Out as Standard Office
- 1 Conference Room
- Finished Ceilings: 10’
- Great location for medical office .
| Space | Size | Term | Rental Rate | Space Use | Condition | Available |
| 1st Floor, Ste 101 | 2,825 SF | Negotiable | $19.80 /SF/YR $1.65 /SF/MO $55,935 /YR $4,661 /MO | Office/Medical | - | Now |
| 1st Floor, Ste 104 | 2,294 SF | Negotiable | $19.80 /SF/YR $1.65 /SF/MO $45,421 /YR $3,785 /MO | Office/Medical | - | 90 Days |
| 2nd Floor, Ste 203 | 2,545 SF | 1-10 Years | $19.95 /SF/YR $1.66 /SF/MO $50,773 /YR $4,231 /MO | Office/Medical | Full Build-Out | 120 Days |
1st Floor, Ste 101
| Size |
| 2,825 SF |
| Term |
| Negotiable |
| Rental Rate |
| $19.80 /SF/YR $1.65 /SF/MO $55,935 /YR $4,661 /MO |
| Space Use |
| Office/Medical |
| Condition |
| - |
| Available |
| Now |
1st Floor, Ste 104
| Size |
| 2,294 SF |
| Term |
| Negotiable |
| Rental Rate |
| $19.80 /SF/YR $1.65 /SF/MO $45,421 /YR $3,785 /MO |
| Space Use |
| Office/Medical |
| Condition |
| - |
| Available |
| 90 Days |
2nd Floor, Ste 203
| Size |
| 2,545 SF |
| Term |
| 1-10 Years |
| Rental Rate |
| $19.95 /SF/YR $1.66 /SF/MO $50,773 /YR $4,231 /MO |
| Space Use |
| Office/Medical |
| Condition |
| Full Build-Out |
| Available |
| 120 Days |
1st Floor, Ste 101
| Size | 2,825 SF |
| Term | Negotiable |
| Rental Rate | $19.80 /SF/YR |
| Space Use | Office/Medical |
| Condition | - |
| Available | Now |
Prestigious Medical Space on First Floor, Suite 101, has been used as a Medical Office by Valley Spring Health for about 10 years. Great Set up for Medical Doctor, psychologist, healthcare, CPA, attorney or any office user. Great floor plan with 10 offices, Conference Room, receptionist room, Break room, and storage area. Quality Medical/Office Space, Fully Built out with great floor plan, Elevator/ ADA accessible, Walking Distance to restaurants, coffee shop, Low's and various other Amenities. This office has been used for medical for about 10 years. First floor, has 6 offices, conference room, receptionist room, bathroom in the suite. * Space: 2,825 SF * NNN Lease * Prime Riverton Location * Beautiful, Exceptional, Rare and Prestige Medical/Office * Parking ratio: 4/1000 * Class B , Fully Built out, High End Suites Finished * Close Proximity to Many Retail Amenities * 2-3 minutes from Intermountain Healthcare Riverton Hospital * Monument sign * Incredible Views of Wasatch Mountains * Easy Access to and from 12600 S and Bangerter Fwy * Class B , Fully Built out, High End Suites Finished * Prime Riverton's Location * Rare Commercial Office in Riverton
- Lease rate does not include utilities, property expenses or building services
- 10 Private Offices
- 1 Conference Room
- Space is in Excellent Condition
1st Floor, Ste 104
| Size | 2,294 SF |
| Term | Negotiable |
| Rental Rate | $19.80 /SF/YR |
| Space Use | Office/Medical |
| Condition | - |
| Available | 90 Days |
Quality Medical/Office Space, Fully Built out with great floor plan, Elevator/ ADA accessible, Walking Distance to restaurants, coffee shop, Low's and various other Amenities. This office has been used for medical for about 10 years. First floor, has 6 offices, conference room, receptionist room, bathroom in the suite. * Space: 2,524 SF * NNN Lease- Call for rate * Prime Riverton Location * Beautiful, Exceptional, Rare and Prestige Medical/Office * Parking ratio: 4/1000 * Class B , Fully Built out, High End Suites Finished * Close Proximity to Many Retail Amenities * 2-3 minutes from Intermountain Healthcare Riverton Hospital * Monument sign * Incredible Views of Wasatch Mountains * Easy Access to and from 12600 S and Bangerter Fwy * Class B , Fully Built out, High End Suites Finished * Prime Riverton's Location * Rare Commercial Office in Riverton
- Lease rate does not include utilities, property expenses or building services
- 1 Conference Room
- Space is in Excellent Condition
2nd Floor, Ste 203
| Size | 2,545 SF |
| Term | 1-10 Years |
| Rental Rate | $19.95 /SF/YR |
| Space Use | Office/Medical |
| Condition | Full Build-Out |
| Available | 120 Days |
* Space: 2,524 SF * NNN Lease- Call for rate * Prime Riverton Location * Beautiful, Exceptional, Rare and Prestige Medical/Office * Parking ratio: 4/1000 * Class B , Fully Built out, High End Suites Finished * Close Proximity to Many Retail Amenities * 2-3 minutes from Intermountain Healthcare Riverton Hospital * Monument sign * Incredible Views of Wasatch Mountains * Easy Access to and from 12600 S and Bangerter Fwy 801-473-8326 * Class B , Fully Built out, High End Suites Finished * Prime Riverton's Location * Rare Commercial Office in Riverton
- Lease rate does not include utilities, property expenses or building services
- Fully Built-Out as Standard Office
- 6 Private Offices
- 1 Conference Room
- 10 Workstations
- Finished Ceilings: 10’
- Space is in Excellent Condition
- Great location for medical office .
PROPERTY OVERVIEW
* Beautiful, Exceptional, Rare and Prestige Medical/Office * Prime Riverton Location * Parking ratio: 4/1000 * Existing Tenant move in the bigger space in the same building * Class B Building, Fully Built out, High End Suite Finishes (Class A) * Close Proximity to Many Retail Amenities * 2-3 minutes from Intermountain Healthcare Riverton Hospital * Monument sign * Incredible Views of Wasatch Mountains * Easy Access to and from 12600 S and Bangerter FWY * NNN Lease rate
- Signage
- Central Heating
- Fully Carpeted
- High Ceilings
- Air Conditioning
PROPERTY FACTS
SELECT TENANTS
- FLOOR
- TENANT NAME
- INDUSTRY
- Multiple
- Aspire Psychology
- Health Care and Social Assistance
- 2nd
- CPA Financial
- Finance and Insurance
- 2nd
- DR Fry, DDS
- Health Care and Social Assistance
- 1st
- Erickson Insurance
- Finance and Insurance
- 1st
- Farmer Insurance
- Finance and Insurance
- 1st
- Greenhouse Center
- Health Care and Social Assistance
- 1st
- Highland Springs A Valley Specialty Clinic
- Health Care and Social Assistance
- 1st
- Teresa Goodner and Kerrie King
- Health Care and Social Assistance
Presented by
ARM Realty
River Crossing Offices | 12427 S Pasture Rd
Hmm, there seems to have been an error sending your message. Please try again.
Thanks! Your message was sent.






