Your email has been sent.
1250 Venables St
Vancouver, BC V6A 3X7
Industrial Property For Lease
·
9,452 SF


Highlights
- Prime location in False Creek Flats with excellent connectivity to downtown Vancouver and major highways.
- Fully air-conditioned office/showroom featuring open plan, boardroom, and four private offices.
- Ten secured parking stalls and three-phase power to support diverse business needs.
- Flexible configuration with office, showroom, and warehouse space plus mezzanine storage.
- Large grade-level loading door, clear span warehouse, and 18’9” ceiling height for efficient operations.
- Close proximity to Port of Vancouver, new St. Paul’s Hospital, and major entertainment venues.
Features
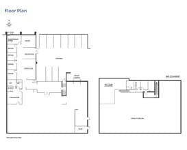
Property Overview
The property features a flexible layout with 2,380 SF of office/showroom space and 7,072 SF of warehouse, plus an additional 1,300 SF mezzanine for storage and office use. The office/showroom area includes an open plan, boardroom, four private offices, a lunchroom, and two washrooms, all fully air-conditioned for comfort. The warehouse boasts a clear span design, 18’9” ceiling height, and a large grade-level loading door for efficient operations. Ten secured parking stalls and three-phase power further support operational needs. Located at the intersection of Venables Street and Vernon Drive, this property offers unparalleled access to downtown Vancouver and major transportation routes, making it an ideal choice for businesses requiring visibility, accessibility, and functional space in a thriving commercial corridor.
