Your email has been sent.
Sublease Highlights
- Located in Aurora with quick access to I-480 and I-80 (Ohio Turnpike) giving access to skilled workforce.
Features
All Available Space(1)
Display Rental Rate as
- Space
- Size
- Term
- Rental Rate
- Space Use
- Build-Out
- Available
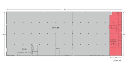
7,200 SF of affordable office space available in Aurora—ideal for contractors, engineers, and other professional users. The property offers quick access to I-480 and I-80 (Ohio Turnpike), connecting to a skilled regional workforce. Surrounded by major industrial neighbors like McMaster-Carr, Trelleborg, and Ashley Furniture, the location benefits from a strong business ecosystem. Ample on-site parking, excellent visibility along State Route 43, and proximity to great dining, lodging, and local services make this a smart choice for growing businesses.
- Sublease space available from current tenant
- Fully Built-Out as Standard Office
- Rate includes utilities, building services and property expenses
- Mostly Open Floor Plan Layout
| Space | Size | Term | Rental Rate | Space Use | Build-Out | Available |
| 1st Floor | 7,200 SF | Mar 2028 | $10.00 /SF/YR $0.83 /SF/MO $72,000 /YR $6,000 /MO | Office | Full Build-Out | Now |
1st Floor
| Size |
| 7,200 SF |
| Term |
| Mar 2028 |
| Rental Rate |
| $10.00 /SF/YR $0.83 /SF/MO $72,000 /YR $6,000 /MO |
| Space Use |
| Office |
| Build-Out |
| Full Build-Out |
| Available |
| Now |
1st Floor
| Size | 7,200 SF |
| Term | Mar 2028 |
| Rental Rate | $10.00 /SF/YR |
| Space Use | Office |
| Build-Out | Full Build-Out |
| Available | Now |
7,200 SF of affordable office space available in Aurora—ideal for contractors, engineers, and other professional users. The property offers quick access to I-480 and I-80 (Ohio Turnpike), connecting to a skilled regional workforce. Surrounded by major industrial neighbors like McMaster-Carr, Trelleborg, and Ashley Furniture, the location benefits from a strong business ecosystem. Ample on-site parking, excellent visibility along State Route 43, and proximity to great dining, lodging, and local services make this a smart choice for growing businesses.
- Sublease space available from current tenant
- Rate includes utilities, building services and property expenses
- Fully Built-Out as Standard Office
- Mostly Open Floor Plan Layout
Property Overview
Positioned in the heart of Aurora’s thriving industrial corridor, 1263 S. Chillicothe Road offers a rare opportunity to sublease 7,200 SF of affordable office space within a dynamic business environment. This well-maintained property is ideal for contractors, engineers, and service-oriented firms seeking proximity to major industrial players and seamless regional connectivity. Built in 1967 and renovated in 2018 with ongoing improvements, the building spans 67,620 SF on 6.444 acres and features ample on-site parking and prominent signage visibility along State Route 43.
Warehouse Facility Facts
Select Tenants
- Floor
- Tenant Name
- Industry
- 1st
- Advanced Innovative Manufacturer
- Manufacturing
- 1st
- Advanced Manufacturers
- Manufacturing
- 1st
- Digital Commerce USA
- Public Administration
- 1st
- Jeff Minnick
- -
- 1st
- Reality Recess Holdings Inc.
- Services
Presented by
1263 S Chillicothe Rd
Hmm, there seems to have been an error sending your message. Please try again.
Thanks! Your message was sent.





