Your email has been sent.
Whitaker Way Industrial Park Portland, OR 97230 1,153 - 16,048 SF of Industrial Space Available



Park Highlights
- Heavy Day Time Traffic
Park Facts
Features and Amenities
- 24 Hour Access
- Signage
- Smoke Detector
All Available Spaces(4)
Display Rental Rate as
- Space
- Size
- Term
- Rental Rate
- Space Use
- Condition
- Available
Warehouse w/ Office and Mezzanine Space – 3,972 Square Feet – Portland, OR Ideal for production, warehousing, or manufacturing use. Industrial warehouse with office space available for lease in Portland, Oregon, right off of I-205 and I-84. The property underwent recent site renovations. Renovations include a full exterior repaint, updated exterior lighting, and a parking lot repair/re-coat. This suite is located in an industrial park with several additional tenants. The suite is in a Butler-style metal-skinned insulated building with a pitched roof. The suite is 3,972 square feet in total. The main warehouse space is 3,000 sqft. with 972 sqft. of office and storage mezzanine build-out. The suite has high interior clearance, one (1) 14’ high roll-up door, and one (1) standard entry door. The mezzanine area is a finished space with a multiple-room build-out. The suite has ample power, ample lighting, and gas heat. Lease Highlights • Base Rent: $12.25/SF/year or $4,054.75/month • NNN Charges: $2.75/SF/year or $910.25/month • All-In Rent: $4,965.00/month • Annual Increase: 5% Increase in Base Rent Move-In Special Details • Sign a lease for at least 24 Months • Get FREE base rent for months 4 and 8 (save $8,109.50 in year one) • Effective All-In Rent for Year 1 is $4,289.21/month after we apply the 2 months FREE base rent • This is a limited-time offer for new tenants only and may end at any time. • Tenants will still pay the standard all-in rent of $4,965.00/month in all months except 4 and 8, when base rent is waived. The savings in those two months reduce your total annual cost—resulting in an average or effective monthly rent of $4,289.21 in Year 1. Tenants will also pay for their own electricity, gas, and garbage. Serious inquiries only. Courtesy to brokers.
- Lease rate does not include utilities, property expenses or building services
- Private Restrooms
LOCATION 12683 NE Whitaker Way, Suite 12687, Portland, OR 97230 Located right off I-205 and I-84 in NE Portland, the Whitaker Way Industrial Park offers excellent freeway access and central positioning within the metro area. Ideal for production, automotive, warehousing, or manufacturing businesses that need both workspace and office under one roof. PROPERTY OVERVIEW The Whitaker Way Industrial Park comprises four buildings and approximately 85,860 square feet of leasable space. This suite is located within a multi-tenant industrial park. Each building is a metal butler-style, insulated, pitched-roof structure with high interior ceilings and wide spans. SPACE DETAILS Rentable Area: 7,289 SF total (3,000 RSF first floor with 634 RSF of office + storage mezzanine) Building Type: Butler-style metal-skinned, insulated, pitched roof Office Build-Out: Attached office space with entry area on first floor Storage Mezzanine: Additional usable space Ceiling Clearance: High interior clearance Roll-Up Doors: One (1) at 14’ high Entry Doors: One (1) standard entry door Restroom: One (1) private restroom Heating: Gas heat Lighting: Ample throughout Power: Ample (20v 3-Phase power with 200A of breaker capacity) Parking: Assigned spaces included LEASE TERMS Base Rent: $11.36/SF/year ($3,440.19/month) NNN Charges: $2.75/SF/year ($832.79/month) All-In Rent: $4,272.98/month Annual Increase: 5% on Base Rent Security Deposit: $6,000 Minimum Term: 24 months (extensions available) Lease Type: NNN Available: 04/10/2-26 Tenant is responsible for electricity, gas, and garbage. HVAC maintenance and repair are the responsibility of the owner. MOVE-IN SPECIAL Limited-Time Offer — New Tenants Only Sign a lease of at least 24 months and receive FREE base rent in months 4 and 8. That’s a savings of $6,880.38 in Year 1. Effective All-In Rent for Year 1: $3,699.61/month. Standard all-in rent of $4,272.98/month applies in all months except months 4 and 8, when base rent is waived. The savings in those two months reduce your total annual cost, resulting in the effective monthly rate shown above. This offer may end at any time. KEY AMENTITIES Office build-out with entry area – work and manage from one location Storage mezzanine – extra usable space built in One private restroom 14’ high drive-in roll-up door High ceiling clearance warehouse Gas heat Assigned parking Minutes from both I-205 and I-84 INQUIRIES Serious inquiries only. Broker courtesy extended.
- Lease rate does not include utilities, property expenses or building services
- Private Restrooms
Available from Grid Property Management, LLC: Office Space Available - 1,153 RSF – Portland, OR Please visit the property's marketing website for full details: https://workspacenation.com/locations/whitaker-way-industrial-park/ The Whitaker Way Industrial Park in Portland, OR is made up of four buildings and comprises approximately 85,860 square feet of leasable space. ? Located right off of I-205 and I-84, the Whitaker Way Industrial Park is ideal for businesses that need a warehouse or light manufacturing/production space. ? Each building on site is a metal butler-style, insulated, pitched-roof structure with high interior ceilings and wide spans. Suite 12715 A is an office space with an entry/reception area, private offices, private restroom, and assigned parking. The suite is 1,153 RSF. Lease Highlights • Base Rent: $12.00/SF/year or $1,153.00/month • NNN Charges: $2.75/SF/year or $264.23/month • All-In Rent: $1,417.23/month • Annual Increase: 5% Increase in Base Rent Move-In Special Details • Sign a lease for at least 24 Months • Get FREE base rent for months 4 and 8 (save $2,306.00 in year one) • Effective All-In Rent for Year 1 is $1,225.06/month after we apply the 2 months FREE base rent • This is a limited-time offer for new tenants only and may end at any time. • Tenants will still pay the standard all-in rent of $1,417.23/month in all months except 4 and 8, when base rent is waived. The savings in those two months reduce your total annual cost—resulting in an average or effective monthly rent of $1,225.06 in Year 1. There are no additional costs to the Tenant under this lease other than Tenant-selected internet and phone service. Tenants will also pay for their own electricity and garbage. Serious inquiries only. Courtesy to brokers.
- Lease rate does not include utilities, property expenses or building services
- Private Restrooms
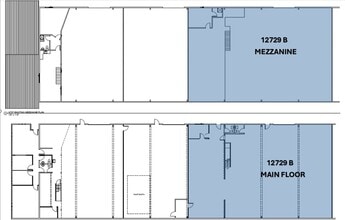
Industrial/Flex Warehouse w/ Mezzanine - NE Portland - 7,289 RSF - For Lease! Ideal for production, auto, warehousing, or manufacturing use. Industrial warehouse with office space available for lease in Portland, Oregon, right off of I-205 and I-84. This suite is located in an industrial park with several additional tenants. The suite is in a Butler-style metal-skinned insulated building with a pitched roof. The suite is has a first floor which is 6,000 rentable square feet which includes attached office space and entry area. An additional 1,289 rentable square feet is located in the mezzanine. The suite has two private restrooms. The suite has high interior clearance, one (1) 14’ high roll-up doors, and two (2) standard entry doors. The suite has ample power, ample lighting, and gas heat. Lease Highlights • Base Rent: $11.25/SF/year or $6,833.44/month • NNN Charges: $2.75/SF/year or $1,670.40/month • All-In Rent: $8,503.83/month • Annual Increase: 5% Increase in Base Rent Move-In Special Details • Sign a lease for at least 24 Months • Get FREE base rent for months 4 and 8 (save $13,666.88 in year one) • Effective All-In Rent for Year 1 is $7,364.93/month after we apply the 2 months FREE base rent • This is a limited-time offer for new tenants only and may end at any time. • Tenants will still pay the standard all-in rent of $8,503.83/month in all months except 4 and 8, when base rent is waived. The savings in those two months reduce your total annual cost—resulting in an average or effective monthly rent of $7,364.93 in Year 1. Tenants will also pay for their own electricity, gas, and garbage. Serious inquiries only. Courtesy to brokers.
- Lease rate does not include utilities, property expenses or building services
- Private Restrooms
| Space | Size | Term | Rental Rate | Space Use | Condition | Available |
| 1st Floor - 12685 | 3,972 SF | 2 Years | $10.21 /SF/YR $0.85 /SF/MO $40,554 /YR $3,380 /MO | Industrial | Partial Build-Out | Now |
| 1st Floor - 12687 | 3,634 SF | 2 Years | $9.47 /SF/YR $0.79 /SF/MO $34,414 /YR $2,868 /MO | Industrial | Partial Build-Out | April 10, 2026 |
| 1st Floor - 12715 A | 1,153 SF | 2 Years | $10.00 /SF/YR $0.83 /SF/MO $11,530 /YR $960.83 /MO | Industrial | Partial Build-Out | April 10, 2026 |
| 1st Floor - 12729 B | 7,289 SF | 2 Years | $9.38 /SF/YR $0.78 /SF/MO $68,371 /YR $5,698 /MO | Industrial | Partial Build-Out | Now |
12683-12689 NE Whitaker Way - 1st Floor - 12685
12683-12689 NE Whitaker Way - 1st Floor - 12687
12683-12689 NE Whitaker Way - 1st Floor - 12715 A
12683-12689 NE Whitaker Way - 1st Floor - 12729 B
12683-12689 NE Whitaker Way - 1st Floor - 12685
| Size | 3,972 SF |
| Term | 2 Years |
| Rental Rate | $10.21 /SF/YR |
| Space Use | Industrial |
| Condition | Partial Build-Out |
| Available | Now |
Warehouse w/ Office and Mezzanine Space – 3,972 Square Feet – Portland, OR Ideal for production, warehousing, or manufacturing use. Industrial warehouse with office space available for lease in Portland, Oregon, right off of I-205 and I-84. The property underwent recent site renovations. Renovations include a full exterior repaint, updated exterior lighting, and a parking lot repair/re-coat. This suite is located in an industrial park with several additional tenants. The suite is in a Butler-style metal-skinned insulated building with a pitched roof. The suite is 3,972 square feet in total. The main warehouse space is 3,000 sqft. with 972 sqft. of office and storage mezzanine build-out. The suite has high interior clearance, one (1) 14’ high roll-up door, and one (1) standard entry door. The mezzanine area is a finished space with a multiple-room build-out. The suite has ample power, ample lighting, and gas heat. Lease Highlights • Base Rent: $12.25/SF/year or $4,054.75/month • NNN Charges: $2.75/SF/year or $910.25/month • All-In Rent: $4,965.00/month • Annual Increase: 5% Increase in Base Rent Move-In Special Details • Sign a lease for at least 24 Months • Get FREE base rent for months 4 and 8 (save $8,109.50 in year one) • Effective All-In Rent for Year 1 is $4,289.21/month after we apply the 2 months FREE base rent • This is a limited-time offer for new tenants only and may end at any time. • Tenants will still pay the standard all-in rent of $4,965.00/month in all months except 4 and 8, when base rent is waived. The savings in those two months reduce your total annual cost—resulting in an average or effective monthly rent of $4,289.21 in Year 1. Tenants will also pay for their own electricity, gas, and garbage. Serious inquiries only. Courtesy to brokers.
- Lease rate does not include utilities, property expenses or building services
- Private Restrooms
12683-12689 NE Whitaker Way - 1st Floor - 12687
| Size | 3,634 SF |
| Term | 2 Years |
| Rental Rate | $9.47 /SF/YR |
| Space Use | Industrial |
| Condition | Partial Build-Out |
| Available | April 10, 2026 |
LOCATION 12683 NE Whitaker Way, Suite 12687, Portland, OR 97230 Located right off I-205 and I-84 in NE Portland, the Whitaker Way Industrial Park offers excellent freeway access and central positioning within the metro area. Ideal for production, automotive, warehousing, or manufacturing businesses that need both workspace and office under one roof. PROPERTY OVERVIEW The Whitaker Way Industrial Park comprises four buildings and approximately 85,860 square feet of leasable space. This suite is located within a multi-tenant industrial park. Each building is a metal butler-style, insulated, pitched-roof structure with high interior ceilings and wide spans. SPACE DETAILS Rentable Area: 7,289 SF total (3,000 RSF first floor with 634 RSF of office + storage mezzanine) Building Type: Butler-style metal-skinned, insulated, pitched roof Office Build-Out: Attached office space with entry area on first floor Storage Mezzanine: Additional usable space Ceiling Clearance: High interior clearance Roll-Up Doors: One (1) at 14’ high Entry Doors: One (1) standard entry door Restroom: One (1) private restroom Heating: Gas heat Lighting: Ample throughout Power: Ample (20v 3-Phase power with 200A of breaker capacity) Parking: Assigned spaces included LEASE TERMS Base Rent: $11.36/SF/year ($3,440.19/month) NNN Charges: $2.75/SF/year ($832.79/month) All-In Rent: $4,272.98/month Annual Increase: 5% on Base Rent Security Deposit: $6,000 Minimum Term: 24 months (extensions available) Lease Type: NNN Available: 04/10/2-26 Tenant is responsible for electricity, gas, and garbage. HVAC maintenance and repair are the responsibility of the owner. MOVE-IN SPECIAL Limited-Time Offer — New Tenants Only Sign a lease of at least 24 months and receive FREE base rent in months 4 and 8. That’s a savings of $6,880.38 in Year 1. Effective All-In Rent for Year 1: $3,699.61/month. Standard all-in rent of $4,272.98/month applies in all months except months 4 and 8, when base rent is waived. The savings in those two months reduce your total annual cost, resulting in the effective monthly rate shown above. This offer may end at any time. KEY AMENTITIES Office build-out with entry area – work and manage from one location Storage mezzanine – extra usable space built in One private restroom 14’ high drive-in roll-up door High ceiling clearance warehouse Gas heat Assigned parking Minutes from both I-205 and I-84 INQUIRIES Serious inquiries only. Broker courtesy extended.
- Lease rate does not include utilities, property expenses or building services
- Private Restrooms
12683-12689 NE Whitaker Way - 1st Floor - 12715 A
| Size | 1,153 SF |
| Term | 2 Years |
| Rental Rate | $10.00 /SF/YR |
| Space Use | Industrial |
| Condition | Partial Build-Out |
| Available | April 10, 2026 |
Available from Grid Property Management, LLC: Office Space Available - 1,153 RSF – Portland, OR Please visit the property's marketing website for full details: https://workspacenation.com/locations/whitaker-way-industrial-park/ The Whitaker Way Industrial Park in Portland, OR is made up of four buildings and comprises approximately 85,860 square feet of leasable space. ? Located right off of I-205 and I-84, the Whitaker Way Industrial Park is ideal for businesses that need a warehouse or light manufacturing/production space. ? Each building on site is a metal butler-style, insulated, pitched-roof structure with high interior ceilings and wide spans. Suite 12715 A is an office space with an entry/reception area, private offices, private restroom, and assigned parking. The suite is 1,153 RSF. Lease Highlights • Base Rent: $12.00/SF/year or $1,153.00/month • NNN Charges: $2.75/SF/year or $264.23/month • All-In Rent: $1,417.23/month • Annual Increase: 5% Increase in Base Rent Move-In Special Details • Sign a lease for at least 24 Months • Get FREE base rent for months 4 and 8 (save $2,306.00 in year one) • Effective All-In Rent for Year 1 is $1,225.06/month after we apply the 2 months FREE base rent • This is a limited-time offer for new tenants only and may end at any time. • Tenants will still pay the standard all-in rent of $1,417.23/month in all months except 4 and 8, when base rent is waived. The savings in those two months reduce your total annual cost—resulting in an average or effective monthly rent of $1,225.06 in Year 1. There are no additional costs to the Tenant under this lease other than Tenant-selected internet and phone service. Tenants will also pay for their own electricity and garbage. Serious inquiries only. Courtesy to brokers.
- Lease rate does not include utilities, property expenses or building services
- Private Restrooms
12683-12689 NE Whitaker Way - 1st Floor - 12729 B
| Size | 7,289 SF |
| Term | 2 Years |
| Rental Rate | $9.38 /SF/YR |
| Space Use | Industrial |
| Condition | Partial Build-Out |
| Available | Now |
Industrial/Flex Warehouse w/ Mezzanine - NE Portland - 7,289 RSF - For Lease! Ideal for production, auto, warehousing, or manufacturing use. Industrial warehouse with office space available for lease in Portland, Oregon, right off of I-205 and I-84. This suite is located in an industrial park with several additional tenants. The suite is in a Butler-style metal-skinned insulated building with a pitched roof. The suite is has a first floor which is 6,000 rentable square feet which includes attached office space and entry area. An additional 1,289 rentable square feet is located in the mezzanine. The suite has two private restrooms. The suite has high interior clearance, one (1) 14’ high roll-up doors, and two (2) standard entry doors. The suite has ample power, ample lighting, and gas heat. Lease Highlights • Base Rent: $11.25/SF/year or $6,833.44/month • NNN Charges: $2.75/SF/year or $1,670.40/month • All-In Rent: $8,503.83/month • Annual Increase: 5% Increase in Base Rent Move-In Special Details • Sign a lease for at least 24 Months • Get FREE base rent for months 4 and 8 (save $13,666.88 in year one) • Effective All-In Rent for Year 1 is $7,364.93/month after we apply the 2 months FREE base rent • This is a limited-time offer for new tenants only and may end at any time. • Tenants will still pay the standard all-in rent of $8,503.83/month in all months except 4 and 8, when base rent is waived. The savings in those two months reduce your total annual cost—resulting in an average or effective monthly rent of $7,364.93 in Year 1. Tenants will also pay for their own electricity, gas, and garbage. Serious inquiries only. Courtesy to brokers.
- Lease rate does not include utilities, property expenses or building services
- Private Restrooms
Select Tenants at This Property
- Floor
- Tenant Name
- Industry
- 1st
- Cars to Go
- Retailer
- 1st
- Collision Werks Ultd
- Services
- 1st
- Elite Towing & Recovery, LLC
- Services
- 1st
- JFV, LLC
- Services
- 1st
- JMD Logistics Import Export, Inc.
- Transportation and Warehousing
- 1st
- NW Line of Style Cabinet Design
- Services
- 1st
- PDX Auto Brokers / Carline
- Services
- 1st
- Roadrunner Protective Films & Graphics, LLC
- Services
- 1st
- Sendit Direct Mail & Fulfillment Inc
- Transportation and Warehousing
- 1st
- Wheelers
- Manufacturing
Park Overview
The Whitaker Way Industrial Park in Portland, OR is made up of four buildings and comprises approximately 85,860 square feet of leasable space. ? Located right off of I-205 and I-84, the Whitaker Way Industrial Park is ideal for businesses that need warehouse or light manufacturing/production space. ? Each building on site is a metal butler-style, insulated, pitched-roof structure with high interior ceilings and wide spans. ? The site recently underwent improvements including new exterior paint, updated exterior lighting, and parking lot repair and re-coat. Each suite has one or more roll-up doors, ample power, and ample water for your use. ? The Whitaker site has a site-wide digital camera security system with cloud storage.
Contact the Leasing Agent
Whitaker Way Industrial Park | Portland, OR 97230












