Log In/Sign Up
Your email has been sent.
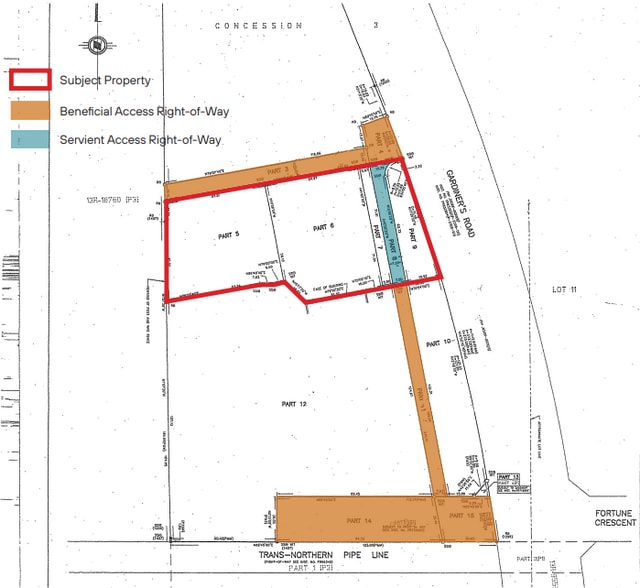
1301 Gardiners Rd
Kingston, ON K7M 7E6
Land For Lease


Highlights
- High Visibility
- Easily Accessible
- Great Frontage
Property Overview
Prime ± 2.3 acre development site boasting high visibility.
Property Facts
| Total Space Available | 2.30 AC | Property Subtype | Industrial |
| Property Type | Land | Proposed Use | Industrial |
| Total Space Available | 2.30 AC |
| Property Type | Land |
| Property Subtype | Industrial |
| Proposed Use | Industrial |
1 of 3
Videos
Matterport 3D Exterior
Matterport 3D Tour
Photos
Street View
Street
Map
