Enter your email to login or create a free account
This feature is unavailable at the moment.
We apologize, but the feature you are trying to access is currently unavailable. We are aware of this issue and our team is working hard to resolve the matter.
Please check back in a few minutes. We apologize for the inconvenience.
- LoopNet Team
1301 Municipal Way
Grapevine, TX 76051
Grapevine Business Center · Property For Lease

Highlights
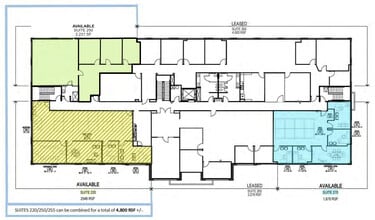
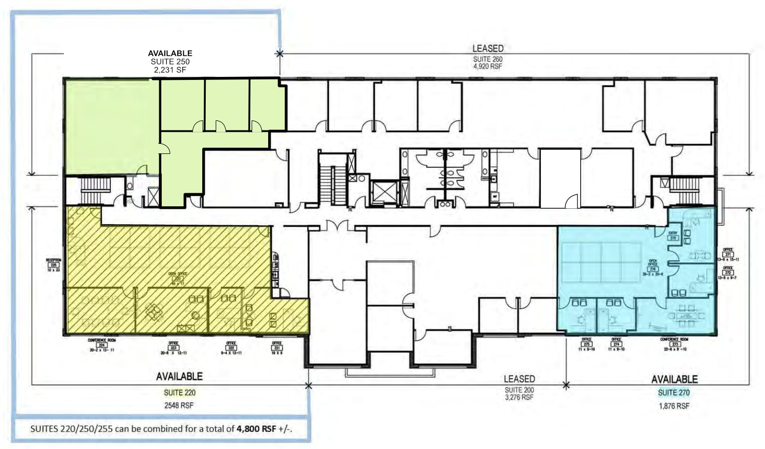
- ±2,231 SF Professional Office Space
- Covered Parking Available
- Easy access to SH 114, SH 121, SH 360 and I35 and located off Main Street and SH 114
- Class A Finishes with move-in ready suites
- Near DFW Int'l Airport and walkable to restaurants, and Spark by Hilton Hotel
Property Overview
Champions DFW Commercial Realty is pleased to present ±2,231 SF of professional office space for lease at 1301 Municipal Way, Grapevine, TX. This impeccably designed property offers move-in ready suites with class A finishes, and the option for covered parking. Its prime location near DFW International Airport and convenient access to major highways including SH 114, SH 121, SH 360, and I35 make it an ideal business hub. Situated off Main Street and SH 114, this property provides efficiency and accessibility for businesses of all sizes.
- 24 Hour Access
- Controlled Access
- Security System
- Central Heating
- Natural Light
- Partitioned Offices
- Reception
- Recessed Lighting
- Wi-Fi
- Air Conditioning
Property Facts
Attachments
| New 1301 MUNICIPAL WAY-LEASE BROCHURE |
Links
Listing ID: 34861621
Date on Market: 2/18/2025
Last Updated:
Address: 1301 Municipal Way, Grapevine, TX 76051
The Downtown Grapevine Office Property at 1301 Municipal Way, Grapevine, TX 76051 is no longer being advertised on LoopNet.com. Contact the broker for information on availability.
OFFICE PROPERTIES IN NEARBY NEIGHBORHOODS
- Hurst/Euless/Bedford Commercial Real Estate Properties
- North Arlington Commercial Real Estate Properties
- Cypress Waters Commercial Real Estate Properties
- Downtown Grapevine Commercial Real Estate Properties
- West Carrollton Commercial Real Estate Properties
- Downtown Keller Commercial Real Estate Properties
- Urban Center Irving Commercial Real Estate Properties
- Mosier Valley Commercial Real Estate Properties
- Valley Ranch Commercial Real Estate Properties
- Stonewood/Stone Creek Commercial Real Estate Properties
- Las Colinas Commercial Real Estate Properties
- Far North Dallas Commercial Real Estate Properties
- West Dallas Commercial Real Estate Properties
- Uptown/Park Cities Commercial Real Estate Properties
- Oak Cliff Commercial Real Estate Properties
NEARBY LISTINGS
- 777 International Pky, Flower Mound TX
- 756 Port America Pl, Grapevine TX
- 451 International Pky, Flower Mound TX
- 8400 Esters Blvd, Irving TX
- 129 S Main St, Grapevine TX
- 550 Reserve St, Southlake TX
- 129 S Main St, Grapevine TX
- 1560 E Southlake Blvd, Southlake TX
- 431 E State Highway 114, Southlake TX
- 558 Silicon Dr, Southlake TX
- 1000 Texan Trl, Grapevine TX
- 731 E Southlake Blvd, Southlake TX
- 1040 Texan Trl, Grapevine TX
- 120 S Main St, Grapevine TX
- 1695 E Southlake Blvd, Southlake TX
