Log In/Sign Up
Your email has been sent.
Executive Summary
The subject property is located in a prime retail corridor in Vacaville, CA, with strong visibility and accessibility. The surrounding area includes major national
retailers, shopping centers, and high-traffic commercial developments. The location benefits from strong consumer demand and a growing regional economy.
retailers, shopping centers, and high-traffic commercial developments. The location benefits from strong consumer demand and a growing regional economy.
Property Facts
Sale Type
Investment
Property Type
Retail
Property Subtype
Freestanding
Building Size
12,940 SF
Building Class
C
Year Built
1951
Tenancy
Single
Building Height
1 Story
Building FAR
0.28
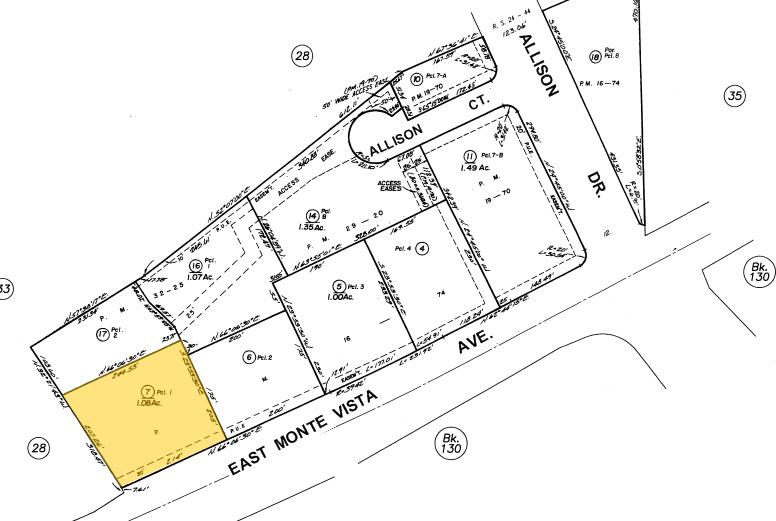
Lot Size
1.08 AC
Frontage
288’ on Monte Vista Ave
Nearby Major Retailers
Property Taxes
| Parcel Number | 0129-340-070 | Improvements Assessment | $1,607,085 |
| Land Assessment | $803,313 | Total Assessment | $2,410,398 |
Property Taxes
Parcel Number
0129-340-070
Land Assessment
$803,313
Improvements Assessment
$1,607,085
Total Assessment
$2,410,398
1 of 5
Videos
Matterport 3D Exterior
Matterport 3D Tour
Photos
Street View
Street
Map
Presented by
1307 E Monte Vista Ave
Already a member? Log In
Hmm, there seems to have been an error sending your message. Please try again.
Thanks! Your message was sent.
Your message has been sent!
Activate your LoopNet account now to track properties, get real-time alerts, save time on future inquiries, and more.



