Log In/Sign Up
Your email has been sent.
HIGHLIGHTS
- Parking ratio of 3.8/1,000 SF
- Located in the FreeMoreWest Neighborhood surrounded by plenty of great restaurants
- Easy access to Uptown Charlotte, Southend, the Interstate, and Charlotte Douglas International Airport
ALL AVAILABLE SPACE(1)
Display Rental Rate as
- SPACE
- SIZE
- TERM
- RENTAL RATE
- SPACE USE
- CONDITION
- AVAILABLE
- Listed rate may not include certain utilities, building services and property expenses
| Space | Size | Term | Rental Rate | Space Use | Condition | Available |
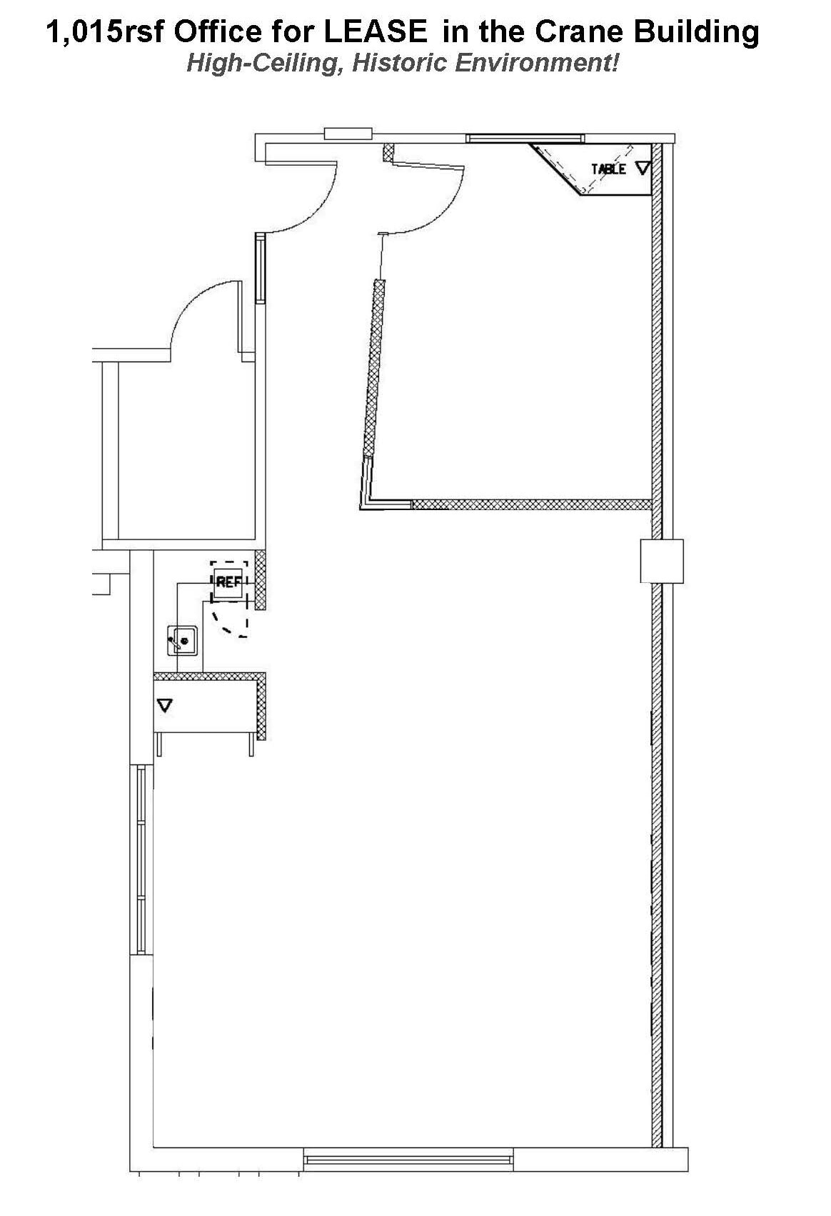
| 1st Floor, Ste 101 | 1,015 SF | Negotiable | $33.00 /SF/YR $2.75 /SF/MO $33,495 /YR $2,791 /MO | Office | - | January 01, 2026 |
1st Floor, Ste 101
| Size |
| 1,015 SF |
| Term |
| Negotiable |
| Rental Rate |
| $33.00 /SF/YR $2.75 /SF/MO $33,495 /YR $2,791 /MO |
| Space Use |
| Office |
| Condition |
| - |
| Available |
| January 01, 2026 |
1 of 1
VIDEOS
MATTERPORT 3D EXTERIOR
MATTERPORT 3D TOUR
PHOTOS
STREET VIEW
STREET
MAP
1st Floor, Ste 101
| Size | 1,015 SF |
| Term | Negotiable |
| Rental Rate | $33.00 /SF/YR |
| Space Use | Office |
| Condition | - |
| Available | January 01, 2026 |
- Listed rate may not include certain utilities, building services and property expenses
PROPERTY OVERVIEW
The Crane Building is a beautifully redeveloped 1930’s era property on the historic register with high-ceiling heights & open feel.
PROPERTY FACTS
Building Type
Office
Year Built/Renovated
1928/2003
Building Height
2 Stories
Building Size
29,310 SF
Building Class
B
Typical Floor Size
13,054 SF
Unfinished Ceiling Height
15’
Parking
Surface Parking
SELECT TENANTS
- FLOOR
- TENANT NAME
- INDUSTRY
- 2nd
- AC&M Group
- Professional, Scientific, and Technical Services
- 2nd
- Affinity Plus Corporation
- Information
- 1st
- Atypic
- Professional, Scientific, and Technical Services
- 2nd
- Bayrock Investment Co.
- Construction
- 2nd
- Centralina Development Corporation
- Construction
- 1st
- Health Management Group LLC
- Services
- 1st
- McMillam Padan Smith
- Professional, Scientific, and Technical Services
- Unknown
- Meeting Professional International
- Services
- 1st
- Myron Greer Garden Design
- Professional, Scientific, and Technical Services
- 1st
- Watson Tate Savory Arch Inc
- Professional, Scientific, and Technical Services
1 1
Bike Score®
Very Bikeable (76)
1 of 45
VIDEOS
MATTERPORT 3D EXTERIOR
MATTERPORT 3D TOUR
PHOTOS
STREET VIEW
STREET
MAP
1 of 1





