Your email has been sent.
1308-1312 High Rd 6,060 SF of Retail Space Available in London N20 9HJ


Highlights
- Located within Totteridge & Whetstone Town Centre
- High Footfal
- Close to the junction with Athenaeum Road
Space Availability (1)
Display Rental Rate as
- Space
- Size
- Term
- Rental Rate
- Type
| Space | Size | Term | Rental Rate | Rent Type | ||
| Ground | 6,060 SF | Negotiable | $39.51 /SF/YR $3.29 /SF/MO $239,416 /YR $19,951 /MO | Fully Repairing & Insuring |
Ground
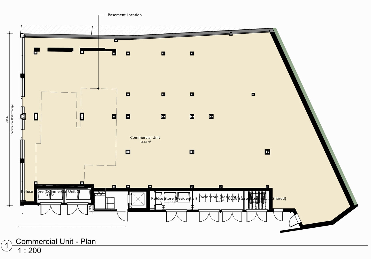
Comprises a ground floor shop and Class E unit within this mixed-use development. The premises is being left in shell condition, ready for a purchaser / tenant to fit out, benefiting from a 60’ Frontage. Lease: A new full repairing and insuring lease to be granted for a term by arrangement subject to upward only rent reviews at 5 yearly intervals if applicable.
- Use Class: E
- Located in-line with other retail
- Security System
- High Ceilings
- Exposed Ceiling
- Secure Storage
- Basement
- Smoke Detector
- Ground floor shop
- Premises is being left in shell condition
- Benefiting from a 60’ Frontage
Service Types
The rent amount and service type that the tenant (lessee) will be responsible to pay to the landlord (lessor) throughout the lease term is negotiated prior to both parties signing a lease agreement. The service type will vary depending upon the services provided. Contact the listing broker for a full understanding of any associated costs or additional expenses for each service type.
1. Fully Repairing & Insuring: All obligations for repairing and insuring the property (or their share of the property) both internally and externally.
2. Internal Repairing Only: The tenant is responsible for internal repairs only. The landlord is responsible for structural and external repairs.
3. Internal Repairing & Insuring: The tenant is responsible for internal repairs and insurance for internal parts of the property only. The landlord is responsible for structural and external repairs.
4. Negotiable or TBD: This is used when the leasing contact does not provide the service type.
Site Plan
Property Facts
| Total Space Available | 6,060 SF | Gross Leasable Area | 6,060 SF |
| Property Type | Retail | Year Built/Renovated | 1863/2026 |
| Property Subtype | Storefront Retail/Residential |
| Total Space Available | 6,060 SF |
| Property Type | Retail |
| Property Subtype | Storefront Retail/Residential |
| Gross Leasable Area | 6,060 SF |
| Year Built/Renovated | 1863/2026 |
About the Property
The property comprises a three storey building of masonry construction, offering retail and office accommodation. The premises are located within Totteridge & Whetstone Town Centre close to the junction with Athenaeum Road and directly opposite Waitrose Supermarket. Other nearby multiples include Asda Local, Marks & Spencer, Boots the Chemist, Subway, Ladbrokes, Post Office and Costa Coffee.
- 24 Hour Access
- Bus Line
- Commuter Rail
- Security System
- Signage
- Storage Space
- Smoke Detector
Nearby Major Retailers
Presented by
1308-1312 High Rd
Hmm, there seems to have been an error sending your message. Please try again.
Thanks! Your message was sent.
