Your email has been sent.
Oxmoor Center/Snow Drive 131 W Oxmoor Rd 5,950 - 18,050 SF of Flex Space Available in Birmingham, AL 35209



Highlights
- Variety of Floor Plans
- Grade and Dock High Loading
Features
All Available Spaces(3)
Display Rental Rate as
- Space
- Size
- Term
- Rental Rate
- Space Use
- Build-Out
- Available
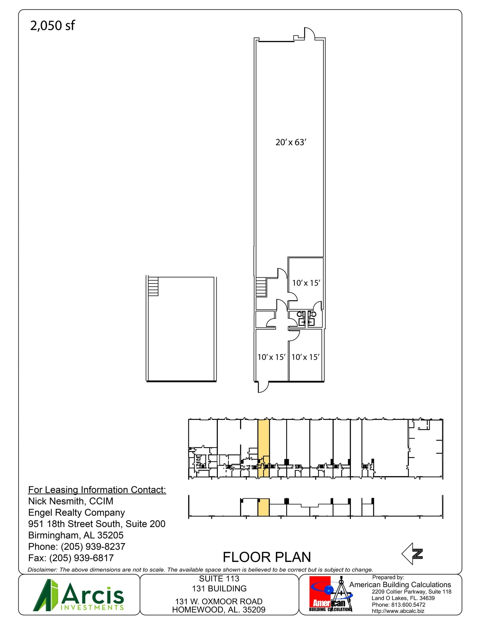
Space contains 3 private offices, reception, 1 dock door. Open warehouse space.
- Listed rate may not include certain utilities, building services and property expenses
- 1 Loading Dock
- 18' clear height
- Includes 1,000 SF of dedicated office space
- 18' clear height
- 3 private offices
- Listed rate may not include certain utilities, building services and property expenses
- Listed rate may not include certain utilities, building services and property expenses
- 1 Drive Bay
- Includes 1,000 SF of dedicated office space
| Space | Size | Term | Rental Rate | Space Use | Build-Out | Available |
| 1st Floor - 301 | 6,050 SF | 5 Years | $12.00 /SF/YR $1.00 /SF/MO $72,600 /YR $6,050 /MO | Flex | Full Build-Out | Now |
| 1st Floor - 343 | 6,050 SF | Negotiable | $12.00 /SF/YR $1.00 /SF/MO $72,600 /YR $6,050 /MO | Flex | - | Now |
| 1st Floor - 5 | 5,950 SF | 5 Years | $12.00 /SF/YR $1.00 /SF/MO $71,400 /YR $5,950 /MO | Flex | Full Build-Out | Now |
1st Floor - 301
| Size |
| 6,050 SF |
| Term |
| 5 Years |
| Rental Rate |
| $12.00 /SF/YR $1.00 /SF/MO $72,600 /YR $6,050 /MO |
| Space Use |
| Flex |
| Build-Out |
| Full Build-Out |
| Available |
| Now |
1st Floor - 343
| Size |
| 6,050 SF |
| Term |
| Negotiable |
| Rental Rate |
| $12.00 /SF/YR $1.00 /SF/MO $72,600 /YR $6,050 /MO |
| Space Use |
| Flex |
| Build-Out |
| - |
| Available |
| Now |
1st Floor - 5
| Size |
| 5,950 SF |
| Term |
| 5 Years |
| Rental Rate |
| $12.00 /SF/YR $1.00 /SF/MO $71,400 /YR $5,950 /MO |
| Space Use |
| Flex |
| Build-Out |
| Full Build-Out |
| Available |
| Now |
1st Floor - 301
| Size | 6,050 SF |
| Term | 5 Years |
| Rental Rate | $12.00 /SF/YR |
| Space Use | Flex |
| Build-Out | Full Build-Out |
| Available | Now |
Space contains 3 private offices, reception, 1 dock door. Open warehouse space.
- Listed rate may not include certain utilities, building services and property expenses
- Includes 1,000 SF of dedicated office space
- 1 Loading Dock
- 18' clear height
- 18' clear height
- 3 private offices
1st Floor - 343
| Size | 6,050 SF |
| Term | Negotiable |
| Rental Rate | $12.00 /SF/YR |
| Space Use | Flex |
| Build-Out | - |
| Available | Now |
- Listed rate may not include certain utilities, building services and property expenses
1st Floor - 5
| Size | 5,950 SF |
| Term | 5 Years |
| Rental Rate | $12.00 /SF/YR |
| Space Use | Flex |
| Build-Out | Full Build-Out |
| Available | Now |
- Listed rate may not include certain utilities, building services and property expenses
- Includes 1,000 SF of dedicated office space
- 1 Drive Bay
Property Overview
Oxmoor Center is a recently renovated professional multi-tenant office/warehouse facility with great access & visibility. Various size units are available for immediate occupancy. Custom configurations are also available. Located in close proximity to Interstate 65 and within minutes of Interstates 20/59, 22 & 459. It is located just North of Lakeshore Parkway (Homewood).
Property Facts
Presented by
Oxmoor Center/Snow Drive | 131 W Oxmoor Rd
Hmm, there seems to have been an error sending your message. Please try again.
Thanks! Your message was sent.









