Log In/Sign Up
Your email has been sent.
1348-1368 Rollins Rd
Burlingame, CA 94010
Industrial Property For Lease
·
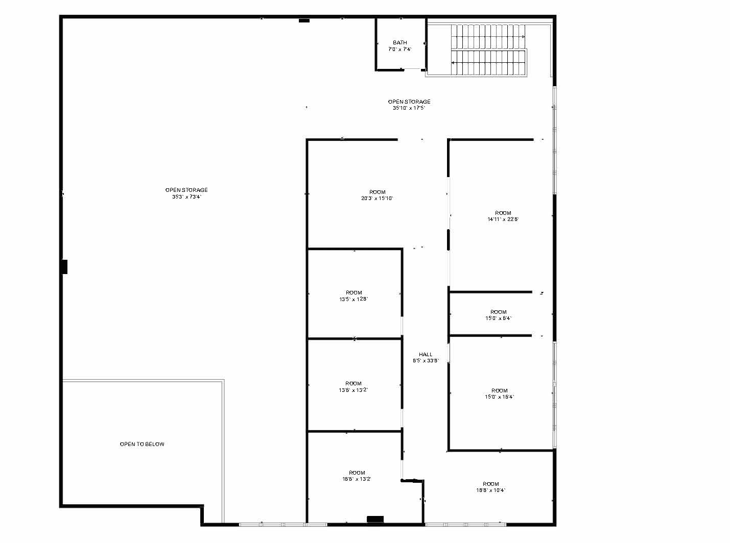
9,500 SF


Features
Clear Height
12’1”
Drive In Bays
4
Standard Parking Spaces
20
Warehouse Facility Facts
Building Size
33,000 SF
Lot Size
1.11 AC
Year Built
2006
Power Supply
Amps: 400 Volts: 208
Zoning
M-1
1 of 4
Videos
Matterport 3D Exterior
Matterport 3D Tour
Photos
Street View
Street
Map
