Your email has been sent.
135 Laurier Av W
Ottawa, ON K1P 5J2
Spaces Laurier · Retail Property For Lease
·
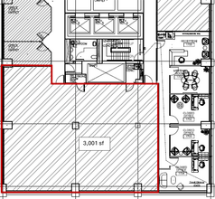
41,097 SF


Highlights
- LEED-EB (existing building) gold designation 2016.
- Bus service at the door, steps from future O-Train LRT.
- Tower serviced by six elevators for quick transport.
Property Overview
66 Slater Street is a 22 storey office building located in the heart of Ottawa’s central business district on the corner of Slater Street and Elgin Street. LEED-EB (existing building) Platinum designation 2021 Tower serviced by six elevators Bus service at the door, steps from O-Train LRT Steps from Parliament Hill Underground parking available Restaurant conveniently located in the building Close to banking, shopping and restaurants
- Bus Line
- Concierge
- Air Conditioning
Property Facts
Sustainability
Sustainability
LEED Certification Led by the Canada Green Building Council (CAGBC), the Leadership in Energy and Environmental Design (LEED) is a green building certification program focused on the design, construction, operation, and maintenance of green buildings, homes, and neighborhoods, which aims to help building owners and operators be environmentally responsible and use resources efficiently. LEED certification is a globally recognized symbol of sustainability achievement and leadership. To achieve LEED certification, a project earns points by adhering to prerequisites and credits that address carbon, energy, water, waste, transportation, materials, health and indoor environmental quality. Projects go through a verification and review process and are awarded points that correspond to a level of LEED certification: Platinum (80+ points) Gold (60-79 points) Silver (50-59 points) Certified (40-49 points)
