Your email has been sent.
136 Collins Ave 112 - 25,537 SF of Space Available in Norwood, NC 28128



HIGHLIGHTS
- Full Time Facility Manager
- Near Railway
- Fenced
FEATURES
Display Rental Rate as
- SPACE
- SIZE
- TERM
- RENTAL RATE
- SPACE USE
- CONDITION
- AVAILABLE
Private Office Suites | 112–353 SF | Affordable private office suites now available in Norwood, NC. Ranging from 112 sq. ft. to 353 sq. ft., these offices are ideal for small businesses, entrepreneurs, or remote workers looking for a simple, professional space. Property Highlights: Suites from 112–353 sq. ft. A mix of remodeled offices and basic suites to fit different needs and budgets. Each suite is fully enclosed for a quiet work environment. No central HVAC – portable options may be arranged with Landlord in advance. Great for individual offices, small teams, or light storage. Opportunity: These suites are a cost-effective option for professionals who want a dedicated workspace without the overhead of larger commercial offices. Perfect for those seeking privacy, affordability, and flexibility in a convenient Norwood location.
- Lease rate does not include utilities, property expenses or building services
- 8 Private Offices
| Space | Size | Term | Rental Rate | Space Use | Condition | Available |
| 1st Floor | 112-353 SF | Negotiable | Upon Request Upon Request Upon Request Upon Request | Office | - | Now |
1st Floor
| Size |
| 112-353 SF |
| Term |
| Negotiable |
| Rental Rate |
| Upon Request Upon Request Upon Request Upon Request |
| Space Use |
| Office |
| Condition |
| - |
| Available |
| Now |
- SPACE
- SIZE
- TERM
- RENTAL RATE
- SPACE USE
- CONDITION
- AVAILABLE
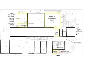
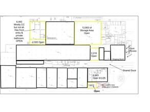
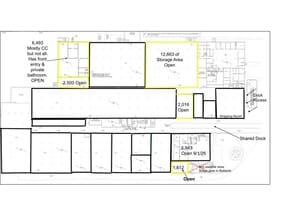
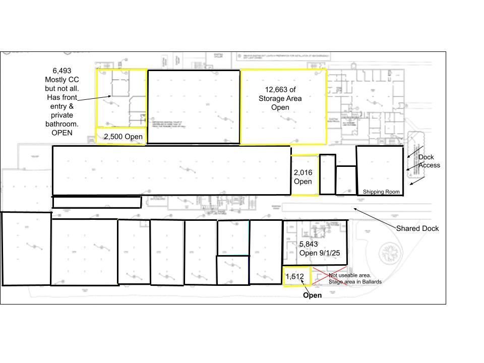
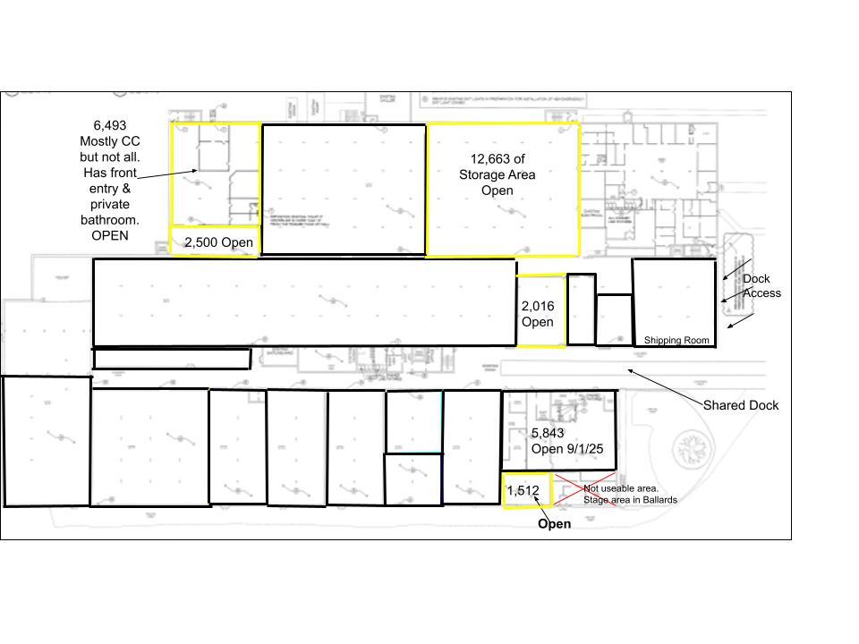
500–12,663 SF Warehouse | Dry Storage / Common Space | 136 Collins Ave, Norwood, NC Available now: flexible warehouse storage from 500 sq. ft. up to 12,663 sq. ft. at 136 Collins Ave in Norwood, NC. This property offers dry storage in an open warehouse setting, available as shared/common space or the entire 12,663 sq. ft. unit can be rented to the right tenant. Property Highlights 500–12,663 sq. ft. available Open warehouse layout with columns Shared dock access for shipping, receiving, and deliveries Durable concrete floor suitable for heavy loads High ceilings with overhead lighting Ideal for dry storage, palletized inventory, or light industrial use Opportunity This warehouse provides a scalable storage solution in a convenient Norwood location. Tenants can lease only the space they need now, with the flexibility to expand.
- Lease rate does not include utilities, property expenses or building services
- 6 Loading Docks
- 5 Drive Ins
- Lease rate does not include utilities, property expenses or building services
- Lease rate does not include utilities, property expenses or building services
6,493 SF renovated flex space featuring: * Separate entry, private bathroom, and reception area * Climate-controlled office space available * Separate dock access * 3-phase power and new LED lighting throughout * Recently updated interior; some cosmetic improvements (e.g. paint) could enhance the space further * Functional layout ideal well suited for light industrial, commercial printing, e-commerce operations, brewing company, light manufacturing, or distribution
- Lease rate does not include utilities, property expenses or building services
- Private Restrooms
- 1 Loading Dock
This 2,016 sq. ft. flex suite at 136 Collins Ave offers practical functionality with the convenience of a private entrance and shared dock access for shipping and receiving. The open floor plan, overhead lighting, and high ceilings with exposed beams create a versatile layout that can easily adapt to a variety of business needs. Key Features: 2,016 sq. ft. of open floor area Private entrance with direct suite access Shared dock for shipping, receiving, and deliveries High ceilings with exposed beams Overhead lighting throughout Functional, no-frills design—ready for immediate occupancy Ideal For: Inventory and equipment storage Light industrial or assembly use Service-based businesses Contractors and trade operations Businesses seeking affordable, flexible space This space is designed for companies that value simplicity, accessibility, and cost-effectiveness. Whether you need reliable storage, staging, or a home base for operations, this suite provides the essentials to keep your business moving efficiently.
- 1 Drive Bay
- 2 Loading Docks
Private Office Suites | 112–353 SF | Affordable private office suites now available in Norwood, NC. Ranging from 112 sq. ft. to 353 sq. ft., these offices are ideal for small businesses, entrepreneurs, or remote workers looking for a simple, professional space. Property Highlights: Suites from 112–353 sq. ft. A mix of remodeled offices and basic suites to fit different needs and budgets. Each suite is fully enclosed for a quiet work environment. No central HVAC – portable options may be arranged with Landlord in advance. Great for individual offices, small teams, or light storage. Opportunity: These suites are a cost-effective option for professionals who want a dedicated workspace without the overhead of larger commercial offices. Perfect for those seeking privacy, affordability, and flexibility in a convenient Norwood location.
- Lease rate does not include utilities, property expenses or building services
- 8 Private Offices
| Space | Size | Term | Rental Rate | Space Use | Condition | Available |
| 1st Floor | 500-12,663 SF | Negotiable | Upon Request Upon Request Upon Request Upon Request | Industrial | Partial Build-Out | 30 Days |
| 1st Floor | 2,500 SF | Negotiable | Upon Request Upon Request Upon Request Upon Request | Industrial | Partial Build-Out | Now |
| 1st Floor | 1,512 SF | Negotiable | Upon Request Upon Request Upon Request Upon Request | Industrial | - | 30 Days |
| 1st Floor | 6,493 SF | Negotiable | Upon Request Upon Request Upon Request Upon Request | Flex | - | Now |
| 1st Floor | 2,016 SF | Negotiable | Upon Request Upon Request Upon Request Upon Request | Industrial | Full Build-Out | Now |
| 1st Floor | 112-353 SF | Negotiable | Upon Request Upon Request Upon Request Upon Request | Office | - | Now |
1st Floor
| Size |
| 500-12,663 SF |
| Term |
| Negotiable |
| Rental Rate |
| Upon Request Upon Request Upon Request Upon Request |
| Space Use |
| Industrial |
| Condition |
| Partial Build-Out |
| Available |
| 30 Days |
1st Floor
| Size |
| 2,500 SF |
| Term |
| Negotiable |
| Rental Rate |
| Upon Request Upon Request Upon Request Upon Request |
| Space Use |
| Industrial |
| Condition |
| Partial Build-Out |
| Available |
| Now |
1st Floor
| Size |
| 1,512 SF |
| Term |
| Negotiable |
| Rental Rate |
| Upon Request Upon Request Upon Request Upon Request |
| Space Use |
| Industrial |
| Condition |
| - |
| Available |
| 30 Days |
1st Floor
| Size |
| 6,493 SF |
| Term |
| Negotiable |
| Rental Rate |
| Upon Request Upon Request Upon Request Upon Request |
| Space Use |
| Flex |
| Condition |
| - |
| Available |
| Now |
1st Floor
| Size |
| 2,016 SF |
| Term |
| Negotiable |
| Rental Rate |
| Upon Request Upon Request Upon Request Upon Request |
| Space Use |
| Industrial |
| Condition |
| Full Build-Out |
| Available |
| Now |
1st Floor
| Size |
| 112-353 SF |
| Term |
| Negotiable |
| Rental Rate |
| Upon Request Upon Request Upon Request Upon Request |
| Space Use |
| Office |
| Condition |
| - |
| Available |
| Now |
1st Floor
| Size | 500-12,663 SF |
| Term | Negotiable |
| Rental Rate | Upon Request |
| Space Use | Industrial |
| Condition | Partial Build-Out |
| Available | 30 Days |
500–12,663 SF Warehouse | Dry Storage / Common Space | 136 Collins Ave, Norwood, NC Available now: flexible warehouse storage from 500 sq. ft. up to 12,663 sq. ft. at 136 Collins Ave in Norwood, NC. This property offers dry storage in an open warehouse setting, available as shared/common space or the entire 12,663 sq. ft. unit can be rented to the right tenant. Property Highlights 500–12,663 sq. ft. available Open warehouse layout with columns Shared dock access for shipping, receiving, and deliveries Durable concrete floor suitable for heavy loads High ceilings with overhead lighting Ideal for dry storage, palletized inventory, or light industrial use Opportunity This warehouse provides a scalable storage solution in a convenient Norwood location. Tenants can lease only the space they need now, with the flexibility to expand.
- Lease rate does not include utilities, property expenses or building services
- 5 Drive Ins
- 6 Loading Docks
1st Floor
| Size | 2,500 SF |
| Term | Negotiable |
| Rental Rate | Upon Request |
| Space Use | Industrial |
| Condition | Partial Build-Out |
| Available | Now |
- Lease rate does not include utilities, property expenses or building services
1st Floor
| Size | 1,512 SF |
| Term | Negotiable |
| Rental Rate | Upon Request |
| Space Use | Industrial |
| Condition | - |
| Available | 30 Days |
- Lease rate does not include utilities, property expenses or building services
1st Floor
| Size | 6,493 SF |
| Term | Negotiable |
| Rental Rate | Upon Request |
| Space Use | Flex |
| Condition | - |
| Available | Now |
6,493 SF renovated flex space featuring: * Separate entry, private bathroom, and reception area * Climate-controlled office space available * Separate dock access * 3-phase power and new LED lighting throughout * Recently updated interior; some cosmetic improvements (e.g. paint) could enhance the space further * Functional layout ideal well suited for light industrial, commercial printing, e-commerce operations, brewing company, light manufacturing, or distribution
- Lease rate does not include utilities, property expenses or building services
- 1 Loading Dock
- Private Restrooms
1st Floor
| Size | 2,016 SF |
| Term | Negotiable |
| Rental Rate | Upon Request |
| Space Use | Industrial |
| Condition | Full Build-Out |
| Available | Now |
This 2,016 sq. ft. flex suite at 136 Collins Ave offers practical functionality with the convenience of a private entrance and shared dock access for shipping and receiving. The open floor plan, overhead lighting, and high ceilings with exposed beams create a versatile layout that can easily adapt to a variety of business needs. Key Features: 2,016 sq. ft. of open floor area Private entrance with direct suite access Shared dock for shipping, receiving, and deliveries High ceilings with exposed beams Overhead lighting throughout Functional, no-frills design—ready for immediate occupancy Ideal For: Inventory and equipment storage Light industrial or assembly use Service-based businesses Contractors and trade operations Businesses seeking affordable, flexible space This space is designed for companies that value simplicity, accessibility, and cost-effectiveness. Whether you need reliable storage, staging, or a home base for operations, this suite provides the essentials to keep your business moving efficiently.
- 1 Drive Bay
- 2 Loading Docks
1st Floor
| Size | 112-353 SF |
| Term | Negotiable |
| Rental Rate | Upon Request |
| Space Use | Office |
| Condition | - |
| Available | Now |
Private Office Suites | 112–353 SF | Affordable private office suites now available in Norwood, NC. Ranging from 112 sq. ft. to 353 sq. ft., these offices are ideal for small businesses, entrepreneurs, or remote workers looking for a simple, professional space. Property Highlights: Suites from 112–353 sq. ft. A mix of remodeled offices and basic suites to fit different needs and budgets. Each suite is fully enclosed for a quiet work environment. No central HVAC – portable options may be arranged with Landlord in advance. Great for individual offices, small teams, or light storage. Opportunity: These suites are a cost-effective option for professionals who want a dedicated workspace without the overhead of larger commercial offices. Perfect for those seeking privacy, affordability, and flexibility in a convenient Norwood location.
- Lease rate does not include utilities, property expenses or building services
- 8 Private Offices
PROPERTY OVERVIEW
An additional 92,000 SF on the 2nd floor will be available in 2024.
MANUFACTURING FACILITY FACTS
Presented by
Diversified Investing Group
136 Collins Ave
Hmm, there seems to have been an error sending your message. Please try again.
Thanks! Your message was sent.















