Your email has been sent.
HIGHLIGHTS
- At the base of a fully sold out luxury condo development.
- Heavy Foot Traffic.
- Baruch College directly across the street.
- White Boxed Condition.
- Fully vented black iron to the roof.
ALL AVAILABLE SPACES(2)
Display Rental Rate as
- SPACE
- SIZE
- TERM
- RENTAL RATE
- SPACE USE
- CONDITION
- AVAILABLE
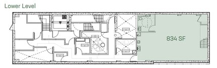
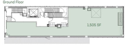
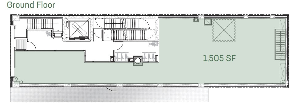
Ground Floor: 1,505 SF with 10’7 ceilings Lower Level 834 SF with 9’0 ceilings Possession: Immediate Frontage: 14’ Term: Negotiable
- Partially Built-Out as Standard Retail Space
- Space is in Excellent Condition
- Private Restrooms
- Ventilation - Venting
- Located in-line with other retail
- Can be combined with additional space(s) for up to 2,339 SF of adjacent space
- Finished Ceilings: 10’7”
Ground Floor: 1,505 SF with 10’7 ceilings Lower Level 834 SF with 9’0 ceilings Possession: Immediate Frontage: 14’ Term: Negotiable
- Partially Built-Out as Standard Retail Space
- Space is in Excellent Condition
- Private Restrooms
- Ventilation - Venting
- Located in-line with other retail
- Can be combined with additional space(s) for up to 2,339 SF of adjacent space
- Finished Ceilings: 10’7”
| Space | Size | Term | Rental Rate | Space Use | Condition | Available |
| Basement, Ste LL | 834 SF | Negotiable | Upon Request Upon Request Upon Request Upon Request | Retail | Partial Build-Out | Now |
| Ground | 1,505 SF | Negotiable | Upon Request Upon Request Upon Request Upon Request | Retail | Partial Build-Out | Now |
Basement, Ste LL
| Size |
| 834 SF |
| Term |
| Negotiable |
| Rental Rate |
| Upon Request Upon Request Upon Request Upon Request |
| Space Use |
| Retail |
| Condition |
| Partial Build-Out |
| Available |
| Now |
Ground
| Size |
| 1,505 SF |
| Term |
| Negotiable |
| Rental Rate |
| Upon Request Upon Request Upon Request Upon Request |
| Space Use |
| Retail |
| Condition |
| Partial Build-Out |
| Available |
| Now |
Basement, Ste LL
| Size | 834 SF |
| Term | Negotiable |
| Rental Rate | Upon Request |
| Space Use | Retail |
| Condition | Partial Build-Out |
| Available | Now |
Ground Floor: 1,505 SF with 10’7 ceilings Lower Level 834 SF with 9’0 ceilings Possession: Immediate Frontage: 14’ Term: Negotiable
- Partially Built-Out as Standard Retail Space
- Located in-line with other retail
- Space is in Excellent Condition
- Can be combined with additional space(s) for up to 2,339 SF of adjacent space
- Private Restrooms
- Finished Ceilings: 10’7”
- Ventilation - Venting
Ground
| Size | 1,505 SF |
| Term | Negotiable |
| Rental Rate | Upon Request |
| Space Use | Retail |
| Condition | Partial Build-Out |
| Available | Now |
Ground Floor: 1,505 SF with 10’7 ceilings Lower Level 834 SF with 9’0 ceilings Possession: Immediate Frontage: 14’ Term: Negotiable
- Partially Built-Out as Standard Retail Space
- Located in-line with other retail
- Space is in Excellent Condition
- Can be combined with additional space(s) for up to 2,339 SF of adjacent space
- Private Restrooms
- Finished Ceilings: 10’7”
- Ventilation - Venting
PROPERTY FACTS
| Total Space Available | 2,339 SF | Apartment Style | Hi-Rise |
| No. Units | 14 | Building Size | 29,500 SF |
| Property Type | Multifamily | Year Built/Renovated | 1910/2020 |
| Property Subtype | Apartment |
| Total Space Available | 2,339 SF |
| No. Units | 14 |
| Property Type | Multifamily |
| Property Subtype | Apartment |
| Apartment Style | Hi-Rise |
| Building Size | 29,500 SF |
| Year Built/Renovated | 1910/2020 |
ABOUT THE PROPERTY
Neighbors include: Baruch College, Freehand New York Hotel, Chipotle, Juice Generation, Blank Street Coffee, Gramercy Theatre, The Friends Experience, Housing Works, NYU Student housing, Starbucks, Bis Bas, The Globe Bar - White Boxed Condition - Heavy Foot Traffic - Fully vented black iron to the roof - Baruch College directly across the street
NEARBY MAJOR RETAILERS
Presented by
139 E 23rd St
Hmm, there seems to have been an error sending your message. Please try again.
Thanks! Your message was sent.







