Your email has been sent.
Retail/Restaurant/Lite Industrial 1393-1395 Us Highway 46 5,000 - 10,000 SF of Retail Space Available in Ledgewood, NJ 07852



HIGHLIGHTS
- Heavy Traffic location - 44K cars per day. 100' of street frontage. Property is divisible.
SPACE AVAILABILITY (2)
Display Rental Rate as
- SPACE
- SIZE
- CEILING
- TERM
- RENTAL RATE
- RENT TYPE
| Space | Size | Ceiling | Term | Rental Rate | Rent Type | |
| Lower Level | 5,000 SF | 10’ | Negotiable | $20.00 /SF/YR $1.67 /SF/MO $100,000 /YR $8,333 /MO | Triple Net (NNN) | |
| 1st Floor | 5,000 SF | 10’ | Negotiable | $18.00 /SF/YR $1.50 /SF/MO $90,000 /YR $7,500 /MO | Triple Net (NNN) |
Lower Level
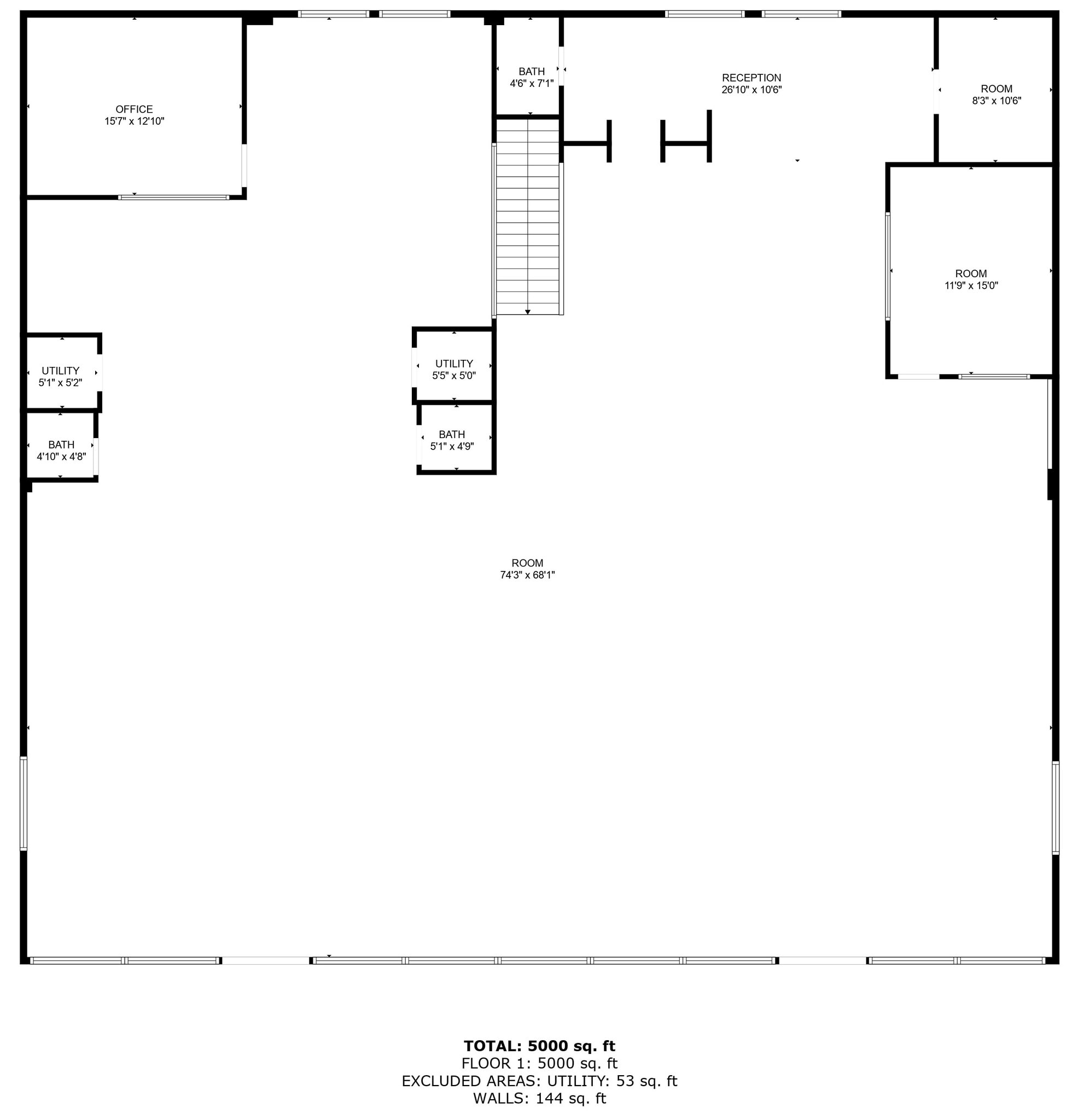
LOWER LEVEL OF BUILDING NEW PAINT HIGH CEILINGS CAN BE JOINED WITH SPACE NEXT TO IT DOUBLE DOORS AND GARAGE DOOR AVAILABLE SEE FLOOR PLANS FOR LAYOUT
- Lease rate does not include utilities, property expenses or building services
- Can be combined with additional space(s) for up to 10,000 SF of adjacent space
- Central Air and Heating
- Private Restrooms
- Drop Ceilings
- Finished Ceilings: 10’
- Wheelchair Accessible
1st Floor
5,000 SQFT AVAILABLE WITH SERVICE COUNTER WILL DIVIDE 2 BATHROOMS STAIRS TO LOWER LEVEL - (Can be closed) GREAT FOR A SHOWROOM FAST FOOD FRANCHISE POTENTIAL B-1 HIGHWAY ZONE (See Zoning info attached0
- Lease rate does not include utilities, property expenses or building services
- Can be combined with additional space(s) for up to 10,000 SF of adjacent space
- Central Air Conditioning
- Security System
- Exposed Ceiling
- Finished Ceilings: 10’
- Wheelchair Accessible
Rent Types
The rent amount and type that the tenant (lessee) will be responsible to pay to the landlord (lessor) throughout the lease term is negotiated prior to both parties signing a lease agreement. The rent type will vary depending upon the services provided. For example, triple net rents are typically lower than full service rents due to additional expenses the tenant is required to pay in addition to the base rent. Contact the listing broker for a full understanding of any associated costs or additional expenses for each rent type.
1. Full Service: A rental rate that includes normal building standard services as provided by the landlord within a base year rental.
2. Double Net (NN): Tenant pays for only two of the building expenses; the landlord and tenant determine the specific expenses prior to signing the lease agreement.
3. Triple Net (NNN): A lease in which the tenant is responsible for all expenses associated with their proportional share of occupancy of the building.
4. Modified Gross: Modified Gross is a general type of lease rate where typically the tenant will be responsible for their proportional share of one or more of the expenses. The landlord will pay the remaining expenses. See the below list of common Modified Gross rental rate structures: 4. Plus All Utilities: A type of Modified Gross Lease where the tenant is responsible for their proportional share of utilities in addition to the rent. 4. Plus Cleaning: A type of Modified Gross Lease where the tenant is responsible for their proportional share of cleaning in addition to the rent. 4. Plus Electric: A type of Modified Gross Lease where the tenant is responsible for their proportional share of the electrical cost in addition to the rent. 4. Plus Electric & Cleaning: A type of Modified Gross Lease where the tenant is responsible for their proportional share of the electrical and cleaning cost in addition to the rent. 4. Plus Utilities and Char: A type of Modified Gross Lease where the tenant is responsible for their proportional share of the utilities and cleaning cost in addition to the rent. 4. Industrial Gross: A type of Modified Gross lease where the tenant pays one or more of the expenses in addition to the rent. The landlord and tenant determine these prior to signing the lease agreement.
5. Tenant Electric: The landlord pays for all services and the tenant is responsible for their usage of lights and electrical outlets in the space they occupy.
6. Negotiable or Upon Request: Used when the leasing contact does not provide the rent or service type.
7. TBD: To be determined; used for buildings for which no rent or service type is known, commonly utilized when the buildings are not yet built.
SELECT TENANTS AT RETAIL/RESTAURANT/LITE INDUSTRIAL
- TENANT
- DESCRIPTION
- US LOCATIONS
- REACH
- Cyle Exchange
- Retailer
- 2
- -
| TENANT | DESCRIPTION | US LOCATIONS | REACH |
| Cyle Exchange | Retailer | 2 | - |
PROPERTY FACTS
| Total Space Available | 10,000 SF | Total Land Area | 0.29 AC |
| Property Type | Retail | Year Built/Renovated | 1968/2005 |
| Property Subtype | Freestanding | Parking Ratio | 3.71/1,000 SF |
| Gross Leasable Area | 10,792 SF |
| Total Space Available | 10,000 SF |
| Property Type | Retail |
| Property Subtype | Freestanding |
| Gross Leasable Area | 10,792 SF |
| Total Land Area | 0.29 AC |
| Year Built/Renovated | 1968/2005 |
| Parking Ratio | 3.71/1,000 SF |
ABOUT THE PROPERTY
Multi level property that can be divided into 4 areas. Main level is highly visible to RT 46 with 100' of frontage 44K Cars per day pass this location Shop area with garage access Additional lower level next to shop Building is recently painted New paved parking New landscaping
- Freeway Visibility
- Restaurant
- Security System
- Signage
- Tenant Controlled HVAC
NEARBY MAJOR RETAILERS
Presented by
Retail/Restaurant/Lite Industrial | 1393-1395 Us Highway 46
Hmm, there seems to have been an error sending your message. Please try again.
Thanks! Your message was sent.






