Your email has been sent.
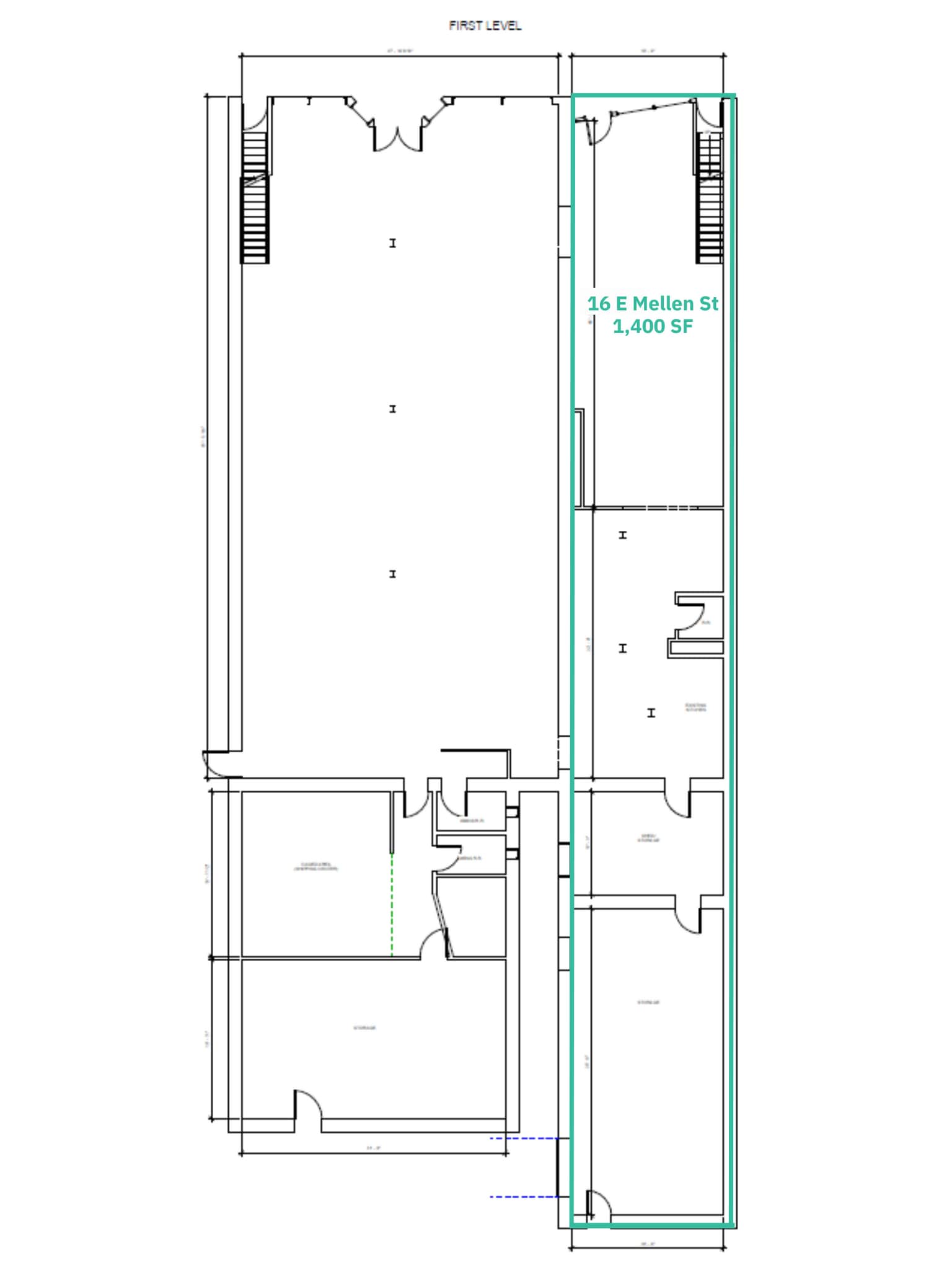
14-18 E Mellen St
Hampton, VA 23663
Retail Property For Lease
·
5,900 SF

Highlights
- First-floor retail space available
- Undergoing full renovation with modern upgrades while preserving historic character
- Strong mix of neighboring businesses including restaurants, boutiques, breweries, and cultural attractions
- Flexible layout: can be divided into two suites, each with front and rear access
- Ample street parking available, plus a free municipal parking lot located in the rear
Property Facts
| Total Space Available | 5,900 SF | Gross Leasable Area | 12,144 SF |
| Property Type | Retail | Year Built | 1906 |
| Property Subtype | Freestanding | Parking Ratio | 0.37/1,000 SF |
| Total Space Available | 5,900 SF |
| Property Type | Retail |
| Property Subtype | Freestanding |
| Gross Leasable Area | 12,144 SF |
| Year Built | 1906 |
| Parking Ratio | 0.37/1,000 SF |
About the Property
Be part of the exciting revitalization of Historic Phoebus. Under new ownership and currently undergoing a complete renovation, this property offers prime retail space on the first floor in the heart of Phoebus’ thriving commercial district. Perfectly situated on Mellen Street, this high-visibility location places your business at the center of a dynamic and growing community known for its unique shops, restaurants, and local culture. The space is versatile and ideal for a variety of retail concepts eager to join Phoebus’ ongoing transformation. Don’t miss this rare opportunity to establish your business in one of Hampton’s most sought-after neighborhoods and secure a cornerstone presence in this vibrant district.
- Bus Line
- Signage
