Log In/Sign Up
Your email has been sent.
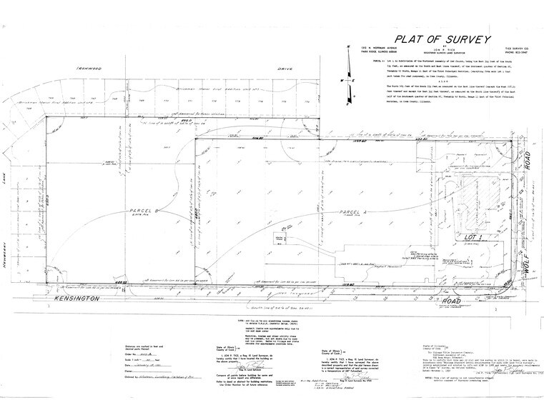
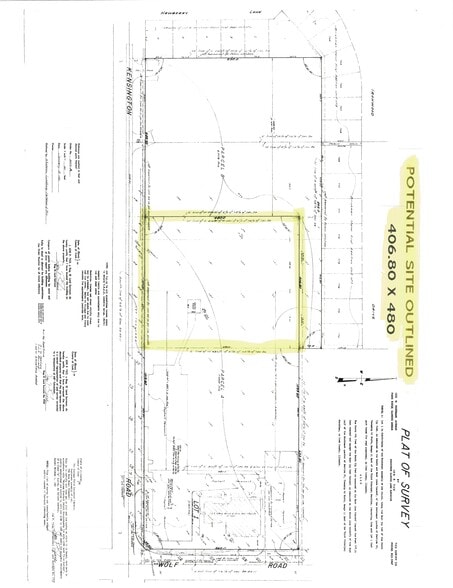
1400-1500 E. Kensington Rd. - 1400-1500 E. Kensington Rd., Mount Prospect, 4.48 Acres of Residential Land Offered at $2,240,000 in Mount Prospect, IL 60056



INVESTMENT HIGHLIGHTS
- 400 FEET OF FRONTAGE ON KENSINGTON
- CLOSE PROXIMITY TO SHOPPING, SCHOOLS, ETC....
- ADJACENT TO RESIDENTIAL PROPERTY & PARK
EXECUTIVE SUMMARY
Prime development opportunity zoned RX, Single Family Residential. There is approximately 400 feet of frontage on Kensington Rd. In addition to the 2 parcels (see P.I.N. #'s) there will be additional land added to create a total available parcel of almost 4.5 acres. This land is adjacent to a park, single family homes and a church.
PROPERTY FACTS
1 LOT AVAILABLE
Lot
| Price | $2,240,000 | Lot Size | 4.48 AC |
| Price Per AC | $500,000.00 |
| Price | $2,240,000 |
| Price Per AC | $500,000.00 |
| Lot Size | 4.48 AC |
1 1
1 of 4
VIDEOS
MATTERPORT 3D EXTERIOR
MATTERPORT 3D TOUR
PHOTOS
STREET VIEW
STREET
MAP
1 of 1
Presented by
1400-1500 E. Kensington Rd. - 1400-1500 E. Kensington Rd., Mount Prospect,
Already a member? Log In
Hmm, there seems to have been an error sending your message. Please try again.
Thanks! Your message was sent.
