Your email has been sent.
PARK HIGHLIGHTS
- Beautiful Lake Views
- Controlled Access
- Conferencing Facilities
- Two Stories
PARK FACTS
| Total Space Available | 16,377 SF | Park Type | Office Park |
| Total Space Available | 16,377 SF |
| Park Type | Office Park |
ALL AVAILABLE SPACES(6)
Display Rental Rate as
- SPACE
- SIZE
- TERM
- RENTAL RATE
- SPACE USE
- CONDITION
- AVAILABLE
- Rate includes utilities, building services and property expenses
- Space is in Excellent Condition
- Fits 3 - 10 People
- Rate includes utilities, building services and property expenses
- Fits 8 - 24 People
- Office intensive layout
- Space is in Excellent Condition
Beautiful 7,262 square foot space available 12/1/25. Call today to tour. Ross Miller (832) 465-5443 or Ryan Burnaman (713) 292-3485
- Rate includes utilities, building services and property expenses
- Fits 19 - 59 People
- Conference Rooms
- Space is in Excellent Condition
- Reception Area
- High Ceilings
- Mostly Open Floor Plan Layout
- 6 Private Offices
- 1 Workstation
- Plug & Play
- Corner Space
- Natural Light
Beautiful office space coming available 6/1/2025. Reception area with 3 to 4 offices, one nice size conference room, a break room, and a storage room. Call today if you would like to tour. 713-292-3485.
- Rate includes utilities, building services and property expenses
- 4 Private Offices
- Space is in Excellent Condition
- Fits 5 - 15 People
- 1 Conference Room
| Space | Size | Term | Rental Rate | Space Use | Condition | Available |
| 1st Floor, Ste 100 | 1,140 SF | Negotiable | $17.00 /SF/YR $1.42 /SF/MO $19,380 /YR $1,615 /MO | Office | - | Now |
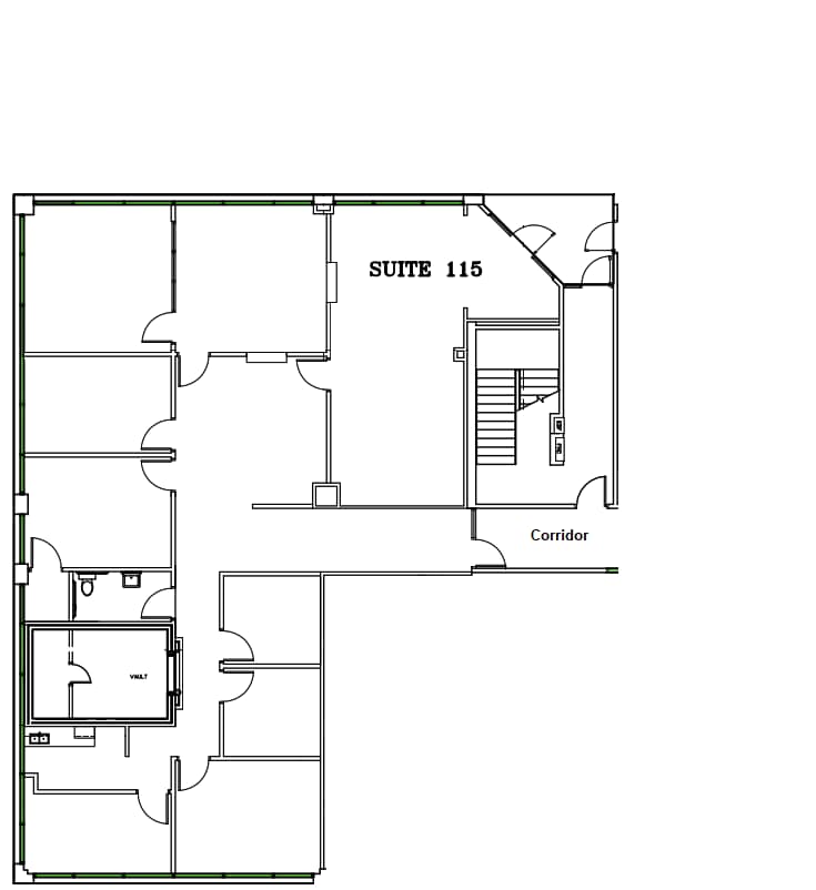
| 1st Floor, Ste 115 | 3,000 SF | 3-7 Years | $17.00 /SF/YR $1.42 /SF/MO $51,000 /YR $4,250 /MO | Office | Full Build-Out | Now |
| 1st Floor, Ste 201 | 7,262 SF | 2-10 Years | $17.00 /SF/YR $1.42 /SF/MO $123,454 /YR $10,288 /MO | Office | - | Now |
| 2nd Floor, Ste 228 | 1,873 SF | 3-7 Years | $17.00 /SF/YR $1.42 /SF/MO $31,841 /YR $2,653 /MO | Office | Full Build-Out | Now |
14011 Park Dr - 1st Floor - Ste 100
14011 Park Dr - 1st Floor - Ste 115
14011 Park Dr - 1st Floor - Ste 201
14011 Park Dr - 2nd Floor - Ste 228
- SPACE
- SIZE
- TERM
- RENTAL RATE
- SPACE USE
- CONDITION
- AVAILABLE
- Rate includes utilities, building services and property expenses
- Fits 4 - 13 People
- Rate includes utilities, building services and property expenses
- Space is in Excellent Condition
- Fits 4 - 13 People
| Space | Size | Term | Rental Rate | Space Use | Condition | Available |
| 1st Floor, Ste 117 | 1,594 SF | Negotiable | $17.00 /SF/YR $1.42 /SF/MO $27,098 /YR $2,258 /MO | Office | - | Now |
| 2nd Floor, Ste 217 | 1,508 SF | 3-5 Years | $17.00 /SF/YR $1.42 /SF/MO $25,636 /YR $2,136 /MO | Office | - | Now |
14015 Park Dr - 1st Floor - Ste 117
14015 Park Dr - 2nd Floor - Ste 217
14011 Park Dr - 1st Floor - Ste 100
| Size | 1,140 SF |
| Term | Negotiable |
| Rental Rate | $17.00 /SF/YR |
| Space Use | Office |
| Condition | - |
| Available | Now |
- Rate includes utilities, building services and property expenses
- Fits 3 - 10 People
- Space is in Excellent Condition
14011 Park Dr - 1st Floor - Ste 115
| Size | 3,000 SF |
| Term | 3-7 Years |
| Rental Rate | $17.00 /SF/YR |
| Space Use | Office |
| Condition | Full Build-Out |
| Available | Now |
- Rate includes utilities, building services and property expenses
- Office intensive layout
- Fits 8 - 24 People
- Space is in Excellent Condition
14011 Park Dr - 1st Floor - Ste 201
| Size | 7,262 SF |
| Term | 2-10 Years |
| Rental Rate | $17.00 /SF/YR |
| Space Use | Office |
| Condition | - |
| Available | Now |
Beautiful 7,262 square foot space available 12/1/25. Call today to tour. Ross Miller (832) 465-5443 or Ryan Burnaman (713) 292-3485
- Rate includes utilities, building services and property expenses
- Mostly Open Floor Plan Layout
- Fits 19 - 59 People
- 6 Private Offices
- Conference Rooms
- 1 Workstation
- Space is in Excellent Condition
- Plug & Play
- Reception Area
- Corner Space
- High Ceilings
- Natural Light
14011 Park Dr - 2nd Floor - Ste 228
| Size | 1,873 SF |
| Term | 3-7 Years |
| Rental Rate | $17.00 /SF/YR |
| Space Use | Office |
| Condition | Full Build-Out |
| Available | Now |
Beautiful office space coming available 6/1/2025. Reception area with 3 to 4 offices, one nice size conference room, a break room, and a storage room. Call today if you would like to tour. 713-292-3485.
- Rate includes utilities, building services and property expenses
- Fits 5 - 15 People
- 4 Private Offices
- 1 Conference Room
- Space is in Excellent Condition
14015 Park Dr - 1st Floor - Ste 117
| Size | 1,594 SF |
| Term | Negotiable |
| Rental Rate | $17.00 /SF/YR |
| Space Use | Office |
| Condition | - |
| Available | Now |
- Rate includes utilities, building services and property expenses
- Fits 4 - 13 People
14015 Park Dr - 2nd Floor - Ste 217
| Size | 1,508 SF |
| Term | 3-5 Years |
| Rental Rate | $17.00 /SF/YR |
| Space Use | Office |
| Condition | - |
| Available | Now |
- Rate includes utilities, building services and property expenses
- Fits 4 - 13 People
- Space is in Excellent Condition
PARK OVERVIEW
Beautiful office building located in Tomball.
Presented by
Tomball Park at Four Corners | Tomball, TX 77377
Hmm, there seems to have been an error sending your message. Please try again.
Thanks! Your message was sent.












