Your email has been sent.
Eastland Plaza 1405 E Main St 5,000 - 5,170 SF of Retail Space Available in Eastland, TX 76448



Highlights
- Anchored by National Retailers including O’Reilly Auto Parts, Aaron’s, and Burkes Outlet
- Frontage on High-Traffic Local Road with an additional 14,000+ VPD
- Strategically Positioned Along I-20 with 27,000+ Vehicles Per Day (VPD)
Space Availability (1)
Display Rental Rate as
- Space
- Size
- Term
- Rental Rate
- Rent Type
| Space | Size | Term | Rental Rate | Rent Type | ||
| 1st Floor, Ste 120 | 5,000-5,170 SF | Negotiable | $10.50 /SF/YR $0.88 /SF/MO $54,285 /YR $4,524 /MO | Triple Net (NNN) |
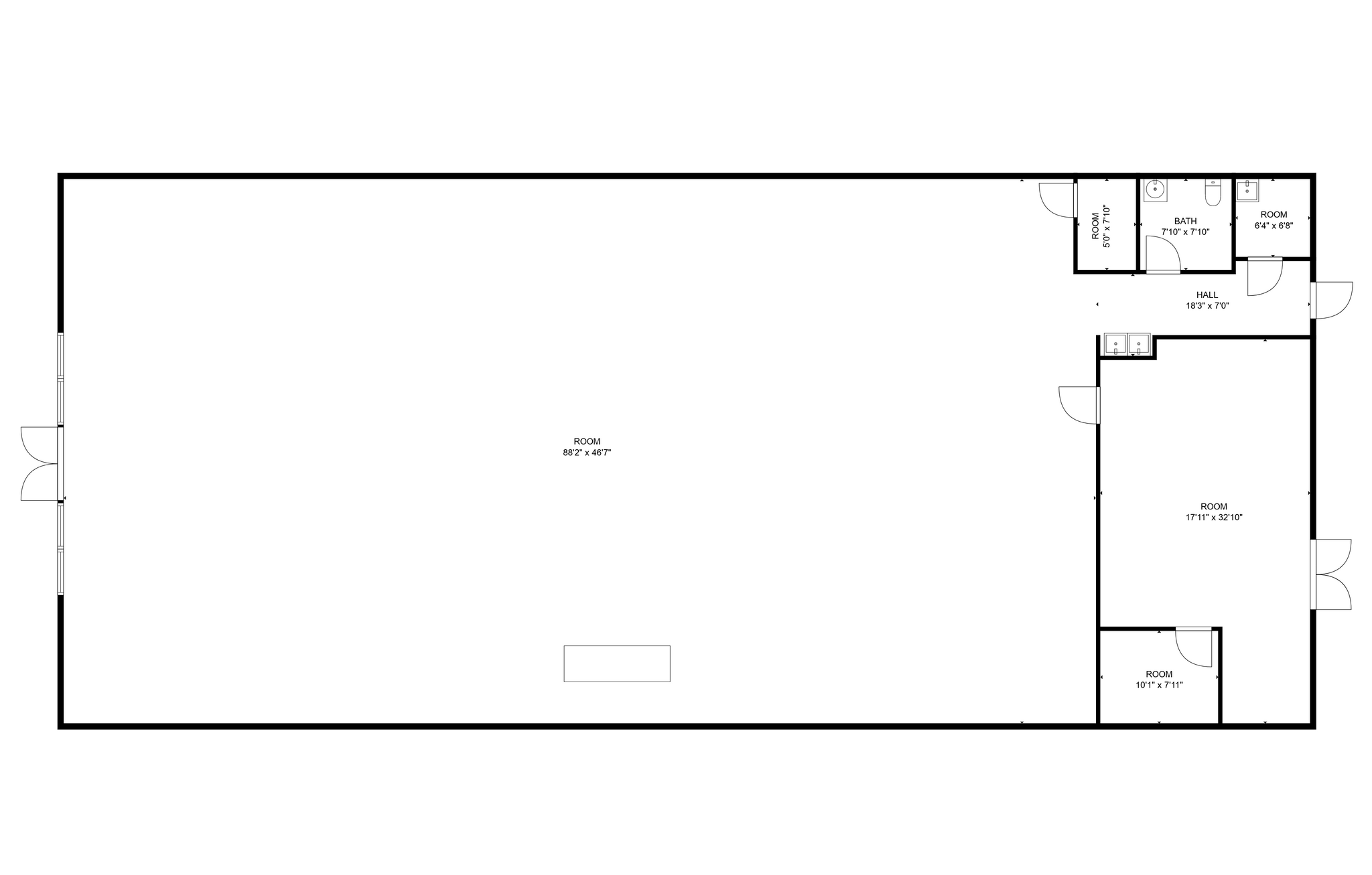
1st Floor, Ste 120
Former Rugged Outfitters
- Lease rate does not include utilities, property expenses or building services
- Fully Built-Out as Standard Retail Space
- Space is in Excellent Condition
Rent Types
The rent amount and type that the tenant (lessee) will be responsible to pay to the landlord (lessor) throughout the lease term is negotiated prior to both parties signing a lease agreement. The rent type will vary depending upon the services provided. For example, triple net rents are typically lower than full service rents due to additional expenses the tenant is required to pay in addition to the base rent. Contact the listing broker for a full understanding of any associated costs or additional expenses for each rent type.
1. Full Service: A rental rate that includes normal building standard services as provided by the landlord within a base year rental.
2. Double Net (NN): Tenant pays for only two of the building expenses; the landlord and tenant determine the specific expenses prior to signing the lease agreement.
3. Triple Net (NNN): A lease in which the tenant is responsible for all expenses associated with their proportional share of occupancy of the building.
4. Modified Gross: Modified Gross is a general type of lease rate where typically the tenant will be responsible for their proportional share of one or more of the expenses. The landlord will pay the remaining expenses. See the below list of common Modified Gross rental rate structures: 4. Plus All Utilities: A type of Modified Gross Lease where the tenant is responsible for their proportional share of utilities in addition to the rent. 4. Plus Cleaning: A type of Modified Gross Lease where the tenant is responsible for their proportional share of cleaning in addition to the rent. 4. Plus Electric: A type of Modified Gross Lease where the tenant is responsible for their proportional share of the electrical cost in addition to the rent. 4. Plus Electric & Cleaning: A type of Modified Gross Lease where the tenant is responsible for their proportional share of the electrical and cleaning cost in addition to the rent. 4. Plus Utilities and Char: A type of Modified Gross Lease where the tenant is responsible for their proportional share of the utilities and cleaning cost in addition to the rent. 4. Industrial Gross: A type of Modified Gross lease where the tenant pays one or more of the expenses in addition to the rent. The landlord and tenant determine these prior to signing the lease agreement.
5. Tenant Electric: The landlord pays for all services and the tenant is responsible for their usage of lights and electrical outlets in the space they occupy.
6. Negotiable or Upon Request: Used when the leasing contact does not provide the rent or service type.
7. TBD: To be determined; used for buildings for which no rent or service type is known, commonly utilized when the buildings are not yet built.
Select Tenants at Eastland Plaza
- Tenant
- Description
- US Locations
- Reach
- Aaron's
- Furniture/Mattress
- 1,811
- International
- Bealls
- Dept Store
- 848
- National
- Cricket
- Wireless Communications
- 5,992
- National
- O'Reilly Auto Parts
- Automotive
- 7,324
- International
- Rugged Earth Outfitters
- Unisex Apparel
- -
- -
| Tenant | Description | US Locations | Reach |
| Aaron's | Furniture/Mattress | 1,811 | International |
| Bealls | Dept Store | 848 | National |
| Cricket | Wireless Communications | 5,992 | National |
| O'Reilly Auto Parts | Automotive | 7,324 | International |
| Rugged Earth Outfitters | Unisex Apparel | - | - |
Property Facts
| Total Space Available | 5,170 SF | Property Subtype | Storefront |
| Min. Divisible | 5,000 SF | Gross Leasable Area | 52,540 SF |
| Property Type | Retail | Year Built/Renovated | 1978/1996 |
| Total Space Available | 5,170 SF |
| Min. Divisible | 5,000 SF |
| Property Type | Retail |
| Property Subtype | Storefront |
| Gross Leasable Area | 52,540 SF |
| Year Built/Renovated | 1978/1996 |
About the Property
Eastland Plaza is a 48,317-square-foot, value-add, multi-tenant retail center located directly west of Interstate 20 in Eastland, Texas. The center features a strong lineup of national retailers including Burkes Outlet, Burkes Outfitters, Aaron’s Rents, O’Reilly Auto Parts, and Cricket Wireless. Positioned along I-20 with exposure to approximately 27,000+ vehicles per day and an additional 14,000+ vehicles per day on the adjacent frontage road, Eastland Plaza offers exceptional visibility and access for both local and regional traffic.
Presented by
Meredith Ray Real Estate LLC
Eastland Plaza | 1405 E Main St
Hmm, there seems to have been an error sending your message. Please try again.
Thanks! Your message was sent.



