Your email has been sent.
Highlights
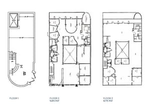
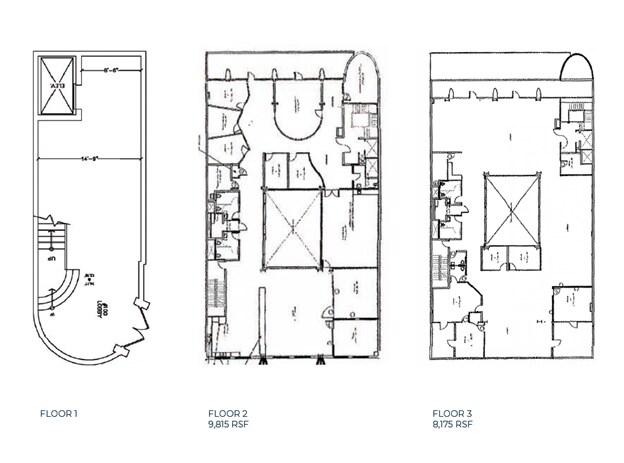
- Move operations into a two-level, 17,990-square-foot office space with an intuitive open layout of 10 private offices and two conference rooms.
- Availabilities include a screening room, private courtyard, big outdoor decks, polished concrete floors, and tall exposed ceilings.
- Valuable on-site parking with four parking spaces, 25 spaces at a nearby city lot, as well as easy commuting from the Downtown Santa Monica Expo Line.
- Downtown Studios has a prominent location right by Santa Monica beach, beloved local restaurants, and everything else downtown.
All Available Spaces(2)
Display Rental Rate as
- Space
- Size
- Term
- Rental Rate
- Space Use
- Build-Out
- Available
- Lease rate does not include utilities, property expenses or building services
- Mostly Open Floor Plan Layout
- Conference Rooms
- Can be combined with additional space(s) for up to 17,990 SF of adjacent space
- Private Restrooms
- Exposed Ceiling
- After Hours HVAC Available
- Open-Plan
- Large Private Courtyard
- Private Decks
- Large Server Room
- Fully Built-Out as Standard Office
- Fits 23 - 72 People
- Space is in Excellent Condition
- Central Air and Heating
- High Ceilings
- Natural Light
- Demised WC facilities
- Separate Secured Entry
- Onsite Parking
- Large Custom Kitchen
- Lease rate does not include utilities, property expenses or building services
- Mostly Open Floor Plan Layout
- Conference Rooms
- Can be combined with additional space(s) for up to 17,990 SF of adjacent space
- Private Restrooms
- Exposed Ceiling
- After Hours HVAC Available
- Open-Plan
- Large Private Courtyard
- Private Decks
- Large Server Room
- Fully Built-Out as Standard Office
- Fits 23 - 72 People
- Space is in Excellent Condition
- Central Air and Heating
- High Ceilings
- Natural Light
- Demised WC facilities
- Separate Secured Entry
- Onsite Parking
- Large Custom Kitchen
| Space | Size | Term | Rental Rate | Space Use | Build-Out | Available |
| 2nd Floor, Ste 200 | 8,995 SF | Negotiable | $54.00 /SF/YR $4.50 /SF/MO $485,730 /YR $40,478 /MO | Office | Full Build-Out | Now |
| 3rd Floor, Ste 300 | 8,995 SF | Negotiable | $54.00 /SF/YR $4.50 /SF/MO $485,730 /YR $40,478 /MO | Office | Full Build-Out | Now |
2nd Floor, Ste 200
| Size |
| 8,995 SF |
| Term |
| Negotiable |
| Rental Rate |
| $54.00 /SF/YR $4.50 /SF/MO $485,730 /YR $40,478 /MO |
| Space Use |
| Office |
| Build-Out |
| Full Build-Out |
| Available |
| Now |
3rd Floor, Ste 300
| Size |
| 8,995 SF |
| Term |
| Negotiable |
| Rental Rate |
| $54.00 /SF/YR $4.50 /SF/MO $485,730 /YR $40,478 /MO |
| Space Use |
| Office |
| Build-Out |
| Full Build-Out |
| Available |
| Now |
2nd Floor, Ste 200
| Size | 8,995 SF |
| Term | Negotiable |
| Rental Rate | $54.00 /SF/YR |
| Space Use | Office |
| Build-Out | Full Build-Out |
| Available | Now |
- Lease rate does not include utilities, property expenses or building services
- Fully Built-Out as Standard Office
- Mostly Open Floor Plan Layout
- Fits 23 - 72 People
- Conference Rooms
- Space is in Excellent Condition
- Can be combined with additional space(s) for up to 17,990 SF of adjacent space
- Central Air and Heating
- Private Restrooms
- High Ceilings
- Exposed Ceiling
- Natural Light
- After Hours HVAC Available
- Demised WC facilities
- Open-Plan
- Separate Secured Entry
- Large Private Courtyard
- Onsite Parking
- Private Decks
- Large Custom Kitchen
- Large Server Room
3rd Floor, Ste 300
| Size | 8,995 SF |
| Term | Negotiable |
| Rental Rate | $54.00 /SF/YR |
| Space Use | Office |
| Build-Out | Full Build-Out |
| Available | Now |
- Lease rate does not include utilities, property expenses or building services
- Fully Built-Out as Standard Office
- Mostly Open Floor Plan Layout
- Fits 23 - 72 People
- Conference Rooms
- Space is in Excellent Condition
- Can be combined with additional space(s) for up to 17,990 SF of adjacent space
- Central Air and Heating
- Private Restrooms
- High Ceilings
- Exposed Ceiling
- Natural Light
- After Hours HVAC Available
- Demised WC facilities
- Open-Plan
- Separate Secured Entry
- Large Private Courtyard
- Onsite Parking
- Private Decks
- Large Custom Kitchen
- Large Server Room
Matterport 3D Tour
Property Overview
Downtown Studios at 1424 2nd Street in Santa Monica, California, just hit the market, offering 17,990 square feet of office space across the second and third floors, available separately or together. The offering features a clean, creative setup with 10 private offices, two conference rooms, a screening room, a private courtyard, big outdoor decks, and tall exposed ceilings. Seek exposed high ceilings that emphasize acoustics and aesthetics, complemented by polished concrete floors and generous window lines that flood the space with natural light and fresh air at the Downtown Studios. Offices are designed with glass doors and sidelites, adjourned by an open floor plan that includes a large custom kitchen and conference rooms with sliding glass doors. Tenants benefit from controlled HVAC systems, a spacious private courtyard, and abundant decks for outdoor access. Additional highlights include a separate secured entry, a dedicated screening room, and a sizable server room on the ground floor equipped with ample electrical capacity. For those commuting via car, the suite comes with four on-site parking spaces at $250 each, and 25 more spots available nearby. This prime location offers the perfect blend of a beachside workplace and urban convenience. Situated just blocks away from the iconic Santa Monica Pier, tenants have easy access to a variety of restaurants and downtown attractions. The proximity to Interstate 10 ensures quick and convenient travel throughout the greater Los Angeles area. The nearby Expo Line at Downtown Santa Monica provides seamless public transit connections to Culver City, just a short 0.5-mile walk away. Additionally, Los Angeles International Airport (LAX) is only a 20-minute drive, making travel a breeze. Discover the ideal setting to inspire creativity and productivity at Downtown Studios in the heart of Santa Monica.
- Atrium
- Controlled Access
- Security System
- Signage
- Wheelchair Accessible
- Smoke Detector
Property Facts
Presented by
Downtown Studios | 1424 2nd St
Hmm, there seems to have been an error sending your message. Please try again.
Thanks! Your message was sent.









